Варочная панель Miele CS 1221 I - инструкция пользователя по применению, эксплуатации и установке на русском языке. Мы надеемся, она поможет вам решить возникшие у вас вопросы при эксплуатации техники.
Если остались вопросы, задайте их в комментариях после инструкции.
"Загружаем инструкцию", означает, что нужно подождать пока файл загрузится и можно будет его читать онлайн. Некоторые инструкции очень большие и время их появления зависит от вашей скорости интернета.

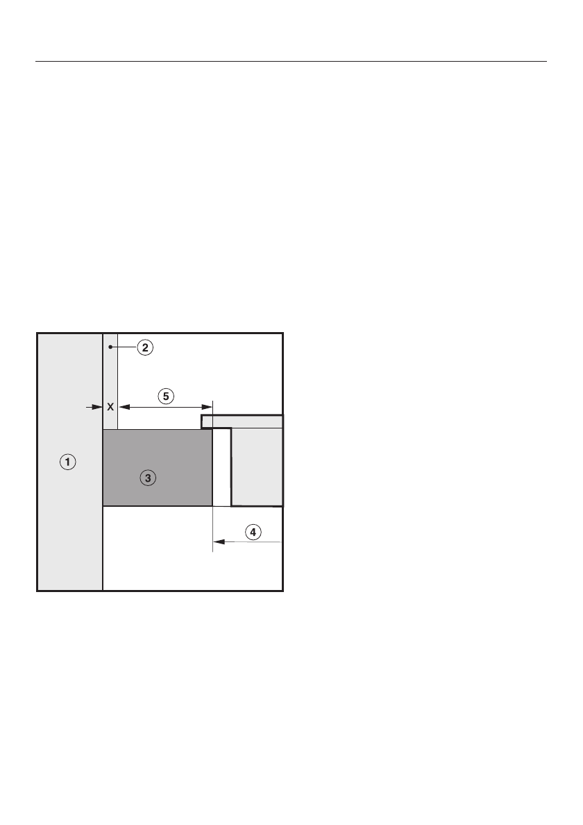
Áåçîïàñíîå ðàññòîÿíèå äî îáøèâêè íèøè
Åñëè óñòàíîâëåíà îáøèâêà íèøè, òî äîëæíî áûòü ñîáëþäåíî ìèíèìàëüíîå
ðàññòîÿíèå ìåæäó âûðåçîì â ñòîëåøíèöå è îáøèâêîé, ò.ê. âûñîêèå òåìïåðà-
òóðû ìîãóò èçìåíÿòü èëè ðàçðóøàòü ìàòåðèàë.
Ïðè èñïîëüçîâàíèè îáøèâêè èç
ãîðþ÷åãî ìàòåðèàëà
(íàïð ., äåðåâî) ìèíè-
ìàëüíîå ðàññòîÿíèå
e
ìåæäó âûðåçîì â ñòîëåøíèöå è îáøèâêîé äîëæíî
ñîñòàâëÿòü 50 ìì.
Ïðè èñïîëüçîâàíèè îáøèâêè èç
íåãîðþ÷åãî ìàòåðèàëà
(íàïð ., ìåòàëë, ïðè-
ðîäíûé êàìåíü, êåðàìè÷åñêèå ïëèòêè) ìèíèìàëüíîå ðàññòîÿíèå
e
ìåæäó
âûðåçîì â ñòîëåøíèöå è îáøèâêîé äîëæíî ñîñòàâëÿòü 50 ìì ìèíóñ òîëùèíà
îáøèâêè.
Ïðèìåð: òîëùèíà îáøèâêè íèøè 15 ìì
50 ìì - 15 ìì = ìèíèìàëüíîå ðàññòîÿíèå 35 ìì
a
Êèðïè÷íàÿ èëè êàìåííàÿ êëàäêà
b
Îáøèâêà íèøè
Ðàçìåð x = òîëùèíà îáøèâêè íèøè
c
Ñòîëåøíèöà
d
Âûðåç â ñòîëåøíèöå
e
Ìèíèìàëüíîå ðàññòîÿíèå
ïðè
ãîðþ÷èõ
ìàòåðèàëàõ 50 ìì
ïðè
íåãîðþ÷èõ
ìàòåðèàëàõ 50 ìì - ðàçìåð x
Óêàçàíèÿ ïî âñòðàèâàíèþ ïðèáîðà
38
Характеристики
Остались вопросы?Не нашли свой ответ в руководстве или возникли другие проблемы? Задайте свой вопрос в форме ниже с подробным описанием вашей ситуации, чтобы другие люди и специалисты смогли дать на него ответ. Если вы знаете как решить проблему другого человека, пожалуйста, подскажите ему :)