Варочная панель Maunfeld MVI31.2HZ.2BT-BK/WH/XX - инструкция пользователя по применению, эксплуатации и установке на русском языке. Мы надеемся, она поможет вам решить возникшие у вас вопросы при эксплуатации техники.
Если остались вопросы, задайте их в комментариях после инструкции.
"Загружаем инструкцию", означает, что нужно подождать пока файл загрузится и можно будет его читать онлайн. Некоторые инструкции очень большие и время их появления зависит от вашей скорости интернета.

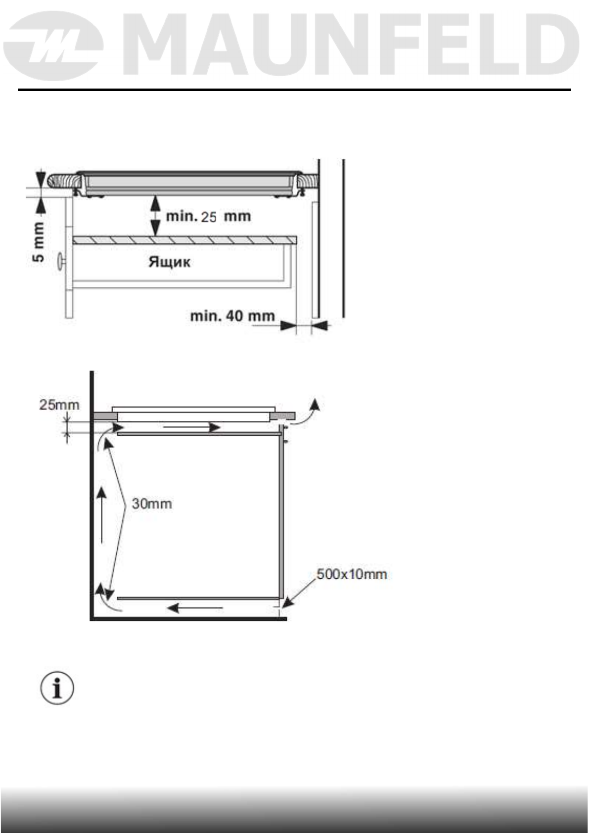
Под низом столешницы надо оставить не менее 25 мм
свободной поверхности – это необходимо для обеспечения
циркуляции воздуха и во избежание перегрева поверхности вокруг
кухонной плиты.
УСТАНОВКА ВАРОЧНОЙ ПАНЕЛИ
-35-
www.maunfeld.ru
ОБЕСПЕЧЕНИЕ ЗАЗОРОВ ПРИ УСТАНОВКЕ НАД
КУХОННЫМ ЯЩИКОМ
Содержание
- 3 СОДЕРЖАНИЕ
- 4 МЕРЫ БЕЗОПАСНОСТИ; ВНИМАТЕЛЬНО ОЗНАКОМЬТЕСЬ С ИНСТРУКЦИЕЙ И
- 6 Опасность поражения электрическим током
- 7 Несоблюдение данного требования может приводить к; ОПАСНОСТЬ ДЛЯ ЗДОРОВЬЯ; Важная информация для пациентов с
- 8 ОПАСНОСТЬ ГОРЯЧИХ ПОВЕРХНОСТЕЙ
- 10 ВНИМАНИЕ
- 11 ЗАЩИТА ОТ ПЕРЕГРЕВА; будьте осторожны
- 12 ТЕХНИЧЕСКИЕ ДАННЫЕ; РАСШИФРОВКА АББРЕВИАТУР; WH; BK
- 13 ЭКОЛОГИЧЕСКОЕ ПРЕДУПРЕЖДЕНИЕ
- 14 ДАННЫЕ ПО ЭНЕРГОПОТРЕБЛЕНИЮ; ХАРАКТЕРИСТИКА; Для снижения воздействия на окружающую среду при приготовлении
- 16 СЕНСОРНАЯ ПАНЕЛЬ УПРАВЛЕНИЯ; ДИСПЛЕЙ
- 17 ИСПОЛЬЗОВАНИЕ СЕНСОРНОЙ ПАНЕЛИ; Органы управления реагируют на касание, нет необходимости
- 18 ВЫБОР ПОСУДЫ; ВЫБОР ПОСУДЫ ДЛЯ ИНДУКЦИОННОЙ ВАРОЧНОЙ
- 21 ИСПОЛЬЗОВАНИЕ ПРИБОРА; ПЕРЕД ПЕРВЫМ ВКЛЮЧЕНИЕМ; При использовании оборудования в обычном режиме, не
- 22 ОБНАРУЖЕНИЕ ПОСУДЫ КОНФОРКОЙ
- 23 ИСПОЛЬЗОВАНИЕ ПРИБОРА; НАЧАЛО ПРОЦЕССА ПРИГОТОВЛЕНИЯ
- 24 ВЫКЛЮЧЕНИЕ ВАРОЧНОЙ ПАНЕЛИ; Будьте осторожны с горячими; ИНДИКАТОР ОСТАТОЧНОГО ТЕПЛА
- 25 БЛОКИРОВКА ПАНЕЛИ УПРАВЛЕНИЯ
- 26 ТАЙМЕР
- 27 Автоматическая остановка по окончании времени
- 28 УРОВНИ МОЩНОСТИ; Уровень
- 29 СОВЕТЫ ПО ПРИГОТОВЛЕНИЮ
- 30 УСТРАНЕНИЕ НЕПОЛАДОК; РЕШЕНИЕ ПРОБЛЕМ; Варочная панель или конфорка не включается:
- 31 На дисплее панели управления отображается символ [ E2 ] или
- 32 УХОД ЗА ВАРОЧНОЙ ПАНЕЛЬЮ; ЧИСТКА ПОСЛЕ КАЖДОГО ПОЛЬЗОВАНИЯ
- 33 УСТАНОВКА ВАРОЧНОЙ ПАНЕЛИ; ПОДГОТОВКА ДЛЯ МОНТАЖА И УСТАНОВКИ ВАРОЧНОЙ; Приклеивание уплотнительной прокладки:
- 34 Убедитесь, что расстояние между панелью и стеной или
- 36 ОБЕСПЕЧЕНИЕ ЗАЗОРОВ ПРИ УСТАНОВКЕ НАД
- 38 ПОДКЛЮЧЕНИЕ К ЭЛЕКТРОСЕТИ
- 39 Внимание! Необходимо убедиться, что провода правильно
- 40 ТЕХНИЧЕСКОЕ ОБСЛУЖИВАНИЕ; ИНФОРМАЦИЯ О ТРАНСПОРТИРОВКЕ
- 41 СЕРВИСНОЕ ОБСЛУЖИВАНИЕ; СЕРВИСНОЕ ОБСЛУЖИВАНИЕ ПОСЛЕ ПРОДАЖИ; Просим вас придерживаться следующих мер:
- 42 ИНФОРМАЦИЯ ОТ ПРОИЗВОДИТЕЛЯ; XXXXXXXXXXX