Варочная панель Maunfeld EVSI292BK/XX - инструкция пользователя по применению, эксплуатации и установке на русском языке. Мы надеемся, она поможет вам решить возникшие у вас вопросы при эксплуатации техники.
Если остались вопросы, задайте их в комментариях после инструкции.
"Загружаем инструкцию", означает, что нужно подождать пока файл загрузится и можно будет его читать онлайн. Некоторые инструкции очень большие и время их появления зависит от вашей скорости интернета.

УСТАНОВКА ВАРОЧНОЙ ПАНЕЛИ
-38-
www.maunfeld.ru
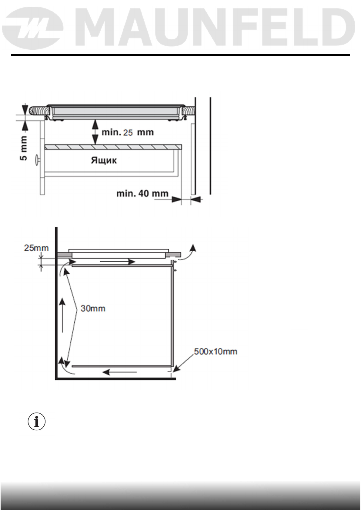
Под низом столешницы надо оставить не менее 25 мм
свободной поверхности – это необходимо для обеспечения
циркуляции воздуха и во избежание перегрева поверхности вокруг
кухонной плиты.
ОБЕСПЕЧЕНИЕ ЗАЗОРОВ ПРИ УСТАНОВКЕ НАД
КУХОННЫМ ЯЩИКОМ
Содержание
- 2 БЛАГОДАРИМ ВАС
- 3 СОДЕРЖАНИЕ
- 4 МЕРЫ БЕЗОПАСНОСТИ; ВНИМАТЕЛЬНО ОЗНАКОМЬТЕСЬ С ИНСТРУКЦИЕЙ И
- 6 Опасность поражения электрическим током
- 7 Несоблюдение данного требования может приводить к; ОПАСНОСТЬ ДЛЯ ЗДОРОВЬЯ; Важная информация для пациентов с
- 8 ОПАСНОСТЬ ГОРЯЧИХ ПОВЕРХНОСТЕЙ
- 10 ВНИМАНИЕ
- 11 ЗАЩИТА ОТ ПЕРЕГРЕВА; будьте осторожны
- 12 ТЕХНИЧЕСКИЕ ДАННЫЕ; РАСШИФРОВКА АББРЕВИАТУР; BK; WH
- 13 ЭКОЛОГИЧЕСКОЕ ПРЕДУПРЕЖДЕНИЕ
- 14 ДАННЫЕ ПО ЭНЕРГОПОТРЕБЛЕНИЮ; Для снижения воздействия на окружающую среду при
- 15 ОПИСАНИЕ ПРИБОРА; Металлическая рамка вокруг панели только для EVSI594
- 16 Выбор и активация варочной зоны нагрева.; СЕНСОРНАЯ ПАНЕЛЬ УПРАВЛЕНИЯ EVI.594EVSI594
- 17 ВАРОЧНАЯ ПАНЕЛЬ EVI.453
- 18 Выбор и активация варочной зоны нагрева.; СЕНСОРНАЯ ПАНЕЛЬ УПРАВЛЕНИЯ EVI.453
- 19 Металлическая рамка вокруг панели только для EVSI292
- 20 СЕНСОРНАЯ ПАНЕЛЬ УПРАВЛЕНИЯ EVI.292 EVSI292
- 21 ИСПОЛЬЗОВАНИЕ СЕНСОРНОЙ ПАНЕЛИ; Органы управления реагируют на касание, нет необходимости
- 22 ВЫБОР ПОСУДЫ; ВЫБОР ПОСУДЫ ДЛЯ ИНДУКЦИОННОЙ ВАРОЧНОЙ
- 25 ИСПОЛЬЗОВАНИЕ ПРИБОРА; ПЕРЕД ПЕРВЫМ ВКЛЮЧЕНИЕМ
- 26 ИСПОЛЬЗОВАНИЕ ПРИБОРА; НАЧАЛО ПРОЦЕССА ПРИГОТОВЛЕНИЯ
- 27 ВЫКЛЮЧЕНИЕ ВАРОЧНОЙ ПАНЕЛИ; Будьте осторожны с горячими
- 28 БЛОКИРОВКА ПАНЕЛИ УПРАВЛЕНИЯ; Чтобы заблокировать панель управления:
- 29 ТАЙМЕР
- 30 Для отмены таймера нажмите на кнопку выбора варочной зоны,
- 31 УСТАНОВКА ВРЕМЕНИ РАБОТЫ ОДНОЙ ВАРОЧНОЙ ЗОНЫ
- 33 УРОВНИ МОЩНОСТИ; Уровень
- 34 СОВЕТЫ ПО ПРИГОТОВЛЕНИЮ
- 35 УСТРАНЕНИЕ НЕПОЛАДОК; РЕШЕНИЕ ПРОБЛЕМ; Проблема
- 36 УХОД ЗА ВАРОЧНОЙ ПАНЕЛЬЮ; ЧИСТКА ПОСЛЕ КАЖДОГО ПОЛЬЗОВАНИЯ
- 37 УСТАНОВКА ВАРОЧНОЙ ПАНЕЛИ; ПОДГОТОВКА ДЛЯ МОНТАЖА И УСТАНОВКИ ВАРОЧНОЙ
- 38 ПОРЯДОК КРЕПЛЕНИЯ И УСТАНОВКИ СКОБ
- 39 Под низом столешницы надо оставить не менее 25 мм; ОБЕСПЕЧЕНИЕ ЗАЗОРОВ ПРИ УСТАНОВКЕ НАД
- 42 ПОДКЛЮЧЕНИЕ К ЭЛЕКТРОСЕТИ
- 43 Схема подключения для
- 44 ТЕХНИЧЕСКОЕ ОБСЛУЖИВАНИЕ; ИНФОРМАЦИЯ О ТРАНСПОРТИРОВКЕ
- 45 СЕРВИСНОЕ ОБСЛУЖИВАНИЕ; СЕРВИСНОЕ ОБСЛУЖИВАНИЕ ПОСЛЕ ПРОДАЖИ; Просим вас придерживаться следующих мер:
- 46 ИНФОРМАЦИЯ ОТ ПРОИЗВОДИТЕЛЯ; XXXXXXXXXXXX