Варочная панель Maunfeld EVI.594F-BK - инструкция пользователя по применению, эксплуатации и установке на русском языке. Мы надеемся, она поможет вам решить возникшие у вас вопросы при эксплуатации техники.
Если остались вопросы, задайте их в комментариях после инструкции.
"Загружаем инструкцию", означает, что нужно подождать пока файл загрузится и можно будет его читать онлайн. Некоторые инструкции очень большие и время их появления зависит от вашей скорости интернета.

УСТАНОВКА ВАРОЧНОЙ ПАНЕЛИ
-36-
www.maunfeld.ru
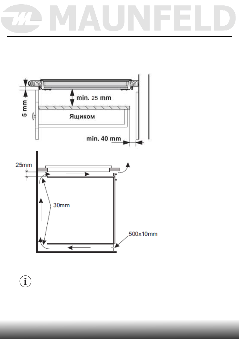
Под низом столешницы надо оставить не менее 25 мм
свободной поверхности – это необходимо для обеспечения
циркуляции воздуха и во избежание перегрева поверхности вокруг
кухонной плиты.
ОБЕСПЕЧЕНИЕ ЗАЗОРОВ ПРИ УСТАНОВКЕ НАД
КУХОННЫМ ЯЩИКОМ
Содержание
- 3 СОДЕРЖАНИЕ
- 4 МЕРЫ БЕЗОПАСНОСТИ; ВНИМАТЕЛЬНО ОЗНАКОМЬТЕСЬ С ИНСТРУКЦИЕЙ И
- 5 Важный момент: применяйте только металлическую посуду,
- 6 Опасность поражения электрическим током
- 7 ОПАСНОСТЬ ДЛЯ ЗДОРОВЬЯ; Важная информация для пациентов с
- 8 ОПАСНОСТЬ ГОРЯЧИХ ПОВЕРХНОСТЕЙ; ВНИМАНИЕ! Прибор и его доступные части сильно
- 10 ВНИМАНИЕ! Неконтролируемый процесс приготовления на
- 11 ЗАЩИТА ОТ ПЕРЕГРЕВА
- 12 ОПИСАНИЕ ПРИБОРА; ВАРОЧНАЯ ПАНЕЛЬ EVI.594F
- 13 ВАРОЧНАЯ ПАНЕЛЬ EVI.292F
- 14 СЕНСОРНАЯ ПАНЕЛЬ УПРАВЛЕНИЯ EVI.594F
- 15 СЕНСОРНАЯ ПАНЕЛЬ УПРАВЛЕНИЯ EVI.292F
- 16 ИСПОЛЬЗОВАНИЕ СЕНСОРНОЙ ПАНЕЛИ
- 17 ВЫБОР ПОСУДЫ; ВЫБОР ПОСУДЫ ДЛЯ ИНДУКЦИОННОЙ ВАРОЧНОЙ
- 20 ИСПОЛЬЗОВАНИЕ ПРИБОРА; ПЕРЕД ПЕРВЫМ ВКЛЮЧЕНИЕМ
- 21 ИСПОЛЬЗОВАНИЕ ПРИБОРА; НАЧАЛО ПРОЦЕССА ПРИГОТОВЛЕНИЯ
- 22 ВЫКЛЮЧЕНИЕ ВАРОЧНОЙ ПАНЕЛИ; Будьте осторожны с горячими
- 23 БЛОКИРОВКА ПАНЕЛИ УПРАВЛЕНИЯ; Чтобы заблокировать панель управления:
- 24 ТАЙМЕР
- 26 УСТАНОВКА ВРЕМЕНИ РАБОТЫ ОДНОЙ ВАРОЧНОЙ ЗОНЫ
- 28 УРОВНИ МОЩНОСТИ; Уровень
- 29 СОВЕТЫ ПО ПРИГОТОВЛЕНИЮ
- 30 УСТРАНЕНИЕ НЕПОЛАДОК; РЕШЕНИЕ ПРОБЛЕМ; Проблема
- 31 ТЕХНИЧЕСКИЕ ДАННЫЕ; РАСШИФРОВКА АББРЕВИАТУР
- 32 ХАРАКТЕРИСТИКИ
- 33 ДАННЫЕ ПО ЭНЕРГОПОТРЕБЛЕНИЮ
- 34 УХОД ЗА ВАРОЧНОЙ ПАНЕЛЬЮ; ЧИСТКА ПОСЛЕ КАЖ ДОГО ПОЛЬЗОВАНИЯ
- 35 УСТАНОВКА ВАРОЧНОЙ ПАНЕЛЬЮ; ПОДГОТОВКА ДЛЯ МОНТАЖА И УСТАНОВКИ ВАРОЧНОЙ
- 36 УСТАНОВКА ВАРОЧНОЙ ПАНЕЛИ; ПОРЯДОК КРЕПЛЕНИЯ И УСТАНОВКИ СКОБ
- 37 ОБЕСПЕЧЕНИЕ ЗАЗОРОВ ПРИ УСТАНОВКЕ НАД
- 40 ПОДКЛЮЧЕНИЕ К ЭЛЕКТРОСЕТИ
- 42 ТЕХНИЧЕСКОЕ ОБСЛУЖИВАНИЕ; ИНФОРМАЦИЯ О ТРАНСПОРТИРОВКЕ
- 43 СЕРВИСНОЕ ОБСЛУЖИВАНИЕ; СЕРВИСНОЕ ОБСЛУЖИВАНИЕ ПОСЛЕ ПРОДАЖИ
- 44 ИНФОРМАЦИЯ ОТ ПРОИЗВОДИТЕЛЯ













