Варочная панель LEX EVI 640 F BLACK - инструкция пользователя по применению, эксплуатации и установке на русском языке. Мы надеемся, она поможет вам решить возникшие у вас вопросы при эксплуатации техники.
Если остались вопросы, задайте их в комментариях после инструкции.
"Загружаем инструкцию", означает, что нужно подождать пока файл загрузится и можно будет его читать онлайн. Некоторые инструкции очень большие и время их появления зависит от вашей скорости интернета.

9
Поздравляем Вас
с приобретением новой индукционной варочной
панели!
Рекомендуем Вам потратить некоторое время на изучение настоящего
Руководства по установке и эксплуатации, чтобы в полной мере понять, как
именно следует правильно устанавливать и эксплуатировать прибор.
По вопросам, связанным с установкой, ознакомьтесь с разделом «Установка».
Внимательно изучите все указания по технике безопасности перед
использованием прибора и сохраните настоящее Руководство по установке и
эксплуатации для использования в будущем.
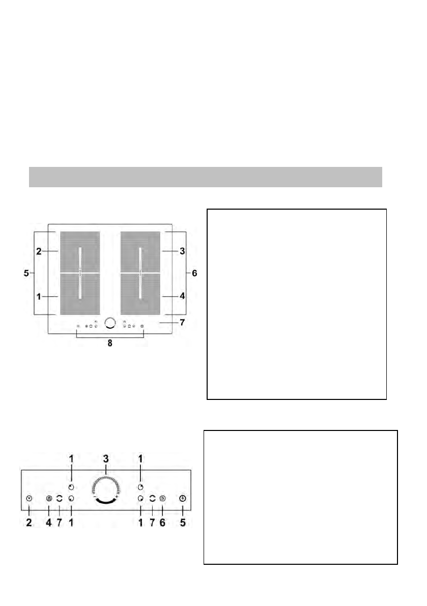
Обзор прибора
Вид сверху
1. Зона нагрева, 2000 Вт. С
функцией Boost, 2
6
00 Вт
2. Зона нагрева, макс. 1500 Вт
функцией Boost, 1800 Вт
3. Зона нагрева, 2000 Вт. С
функцией Boost, 2600 Вт
4. Зона нагрева, макс. 1500 Вт
функцией Boost, 1800 Вт
7
. Стеклокерамическая основа
8
. Панель управления
5&6
.
Flex
зона
.
2
500 Вт
функцией Boost,
2
800 Вт
Панель управления
1. Кнопки выбора зон нагрева
2.Таймер
3
. Кнопки выбора режима мощности
нагрева/управления таймером
4
. Кнопка блокировки
5
. Кнопка включения/выключения
6. Функция Boost
7.
Управление
flex
зоной