Варочная панель Kuppersbusch EKID 9940.0 RL - инструкция пользователя по применению, эксплуатации и установке на русском языке. Мы надеемся, она поможет вам решить возникшие у вас вопросы при эксплуатации техники.
Если остались вопросы, задайте их в комментариях после инструкции.
"Загружаем инструкцию", означает, что нужно подождать пока файл загрузится и можно будет его читать онлайн. Некоторые инструкции очень большие и время их появления зависит от вашей скорости интернета.

118
Instruções de montagem
P
Instalação do ventilador da placa de
cozinhar
• O produto só pode ser conectado por um técnico autorizado
sob consideração dos regulamentos locais vigentes; o mesmo
é válido para as conexões para o ar extraído. O instalador é
responsável pelo funcionamento perfeito no local de
instalação!
• Observe para a instalação as normas pertinentes dos
regulamentos de construção dos países e das empresas de
distribuição elétrica.
• O ventilador de placas de cozinhar pode funcionar no modo de
extração ou de circulação de ar.
• O ar extraído tem de ser conduzido para o exterior num canal
de ventilação previsto para esta finalidade ou através da
parede da casa.
• O ar extraído não pode ser conduzido para uma chaminé de
descarga de fumo ou gás de escape em uso. Em caso de
dúvida, consulte um mestre especializado em limpeza de
chaminés.
• Se nas imediações do ventilador da placa de cozinhar for
operado um sistema de aquecimento dependente de
chaminés (aquecimento com carvão, madeira, óleo ou gás), é
preciso garantir uma entrada de ar suficiente; caso contrário
corre-se perigo de intoxicação. Uma operação sem riscos do
ventilador da placa de cozinhar está garantida se a depressão
de 0,04 mbar (4 Pa), provocada pelo ventilador da placa de
cozinhar, não for ultrapassada e puder entrar ar suficiente na
divisão.
• Os tubos de extração têm de corresponder à classe de reação
ao fogo B 1 DIN 4102. Por favor assegure que o diâmetro
nominal mínimo do bocal de ligação do aparelho não seja
reduzido.
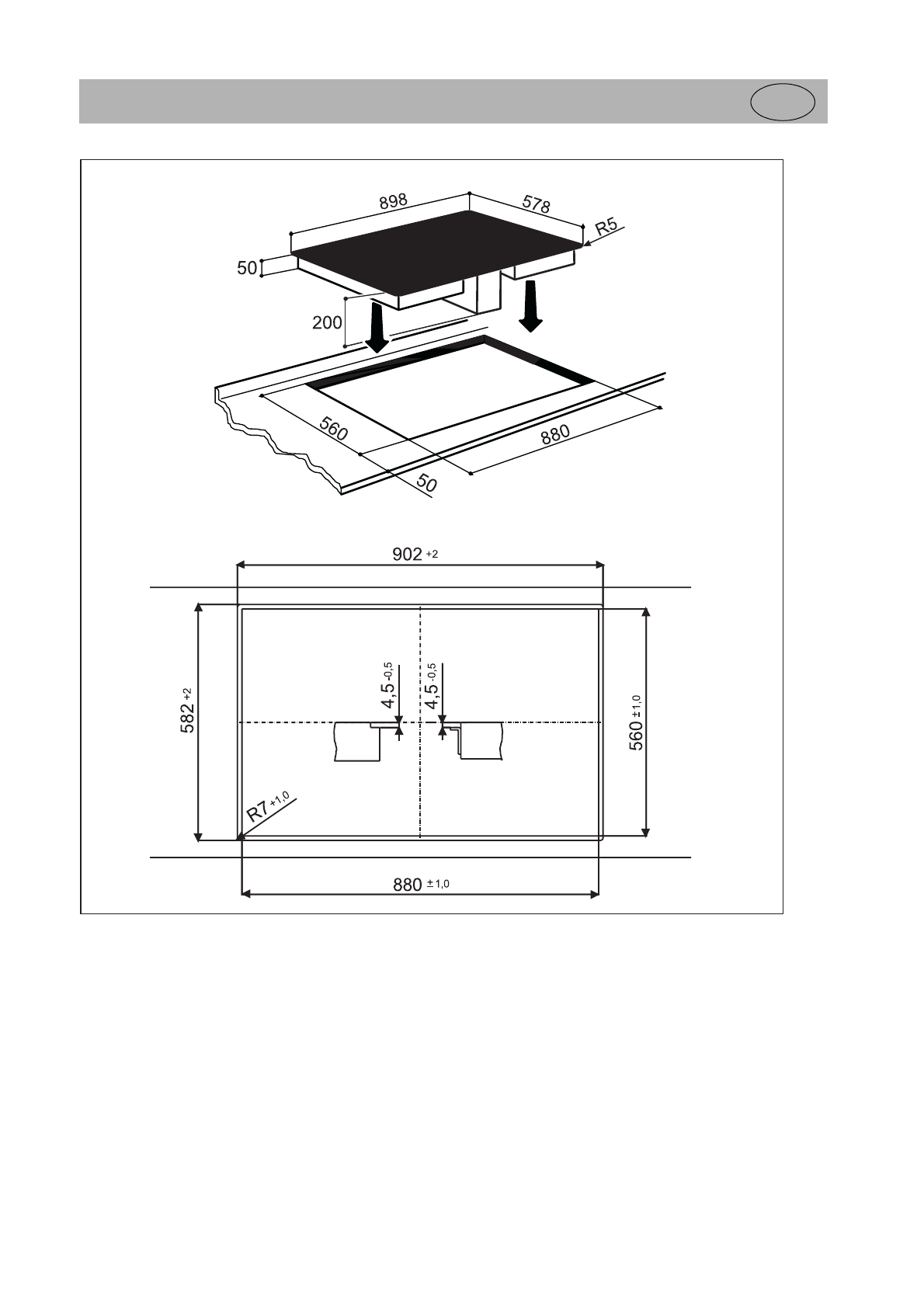
Medidas em mm
Характеристики
Остались вопросы?Не нашли свой ответ в руководстве или возникли другие проблемы? Задайте свой вопрос в форме ниже с подробным описанием вашей ситуации, чтобы другие люди и специалисты смогли дать на него ответ. Если вы знаете как решить проблему другого человека, пожалуйста, подскажите ему :)












