Варочная панель HOMSAir HVY43BK - инструкция пользователя по применению, эксплуатации и установке на русском языке. Мы надеемся, она поможет вам решить возникшие у вас вопросы при эксплуатации техники.
Если остались вопросы, задайте их в комментариях после инструкции.
"Загружаем инструкцию", означает, что нужно подождать пока файл загрузится и можно будет его читать онлайн. Некоторые инструкции очень большие и время их появления зависит от вашей скорости интернета.

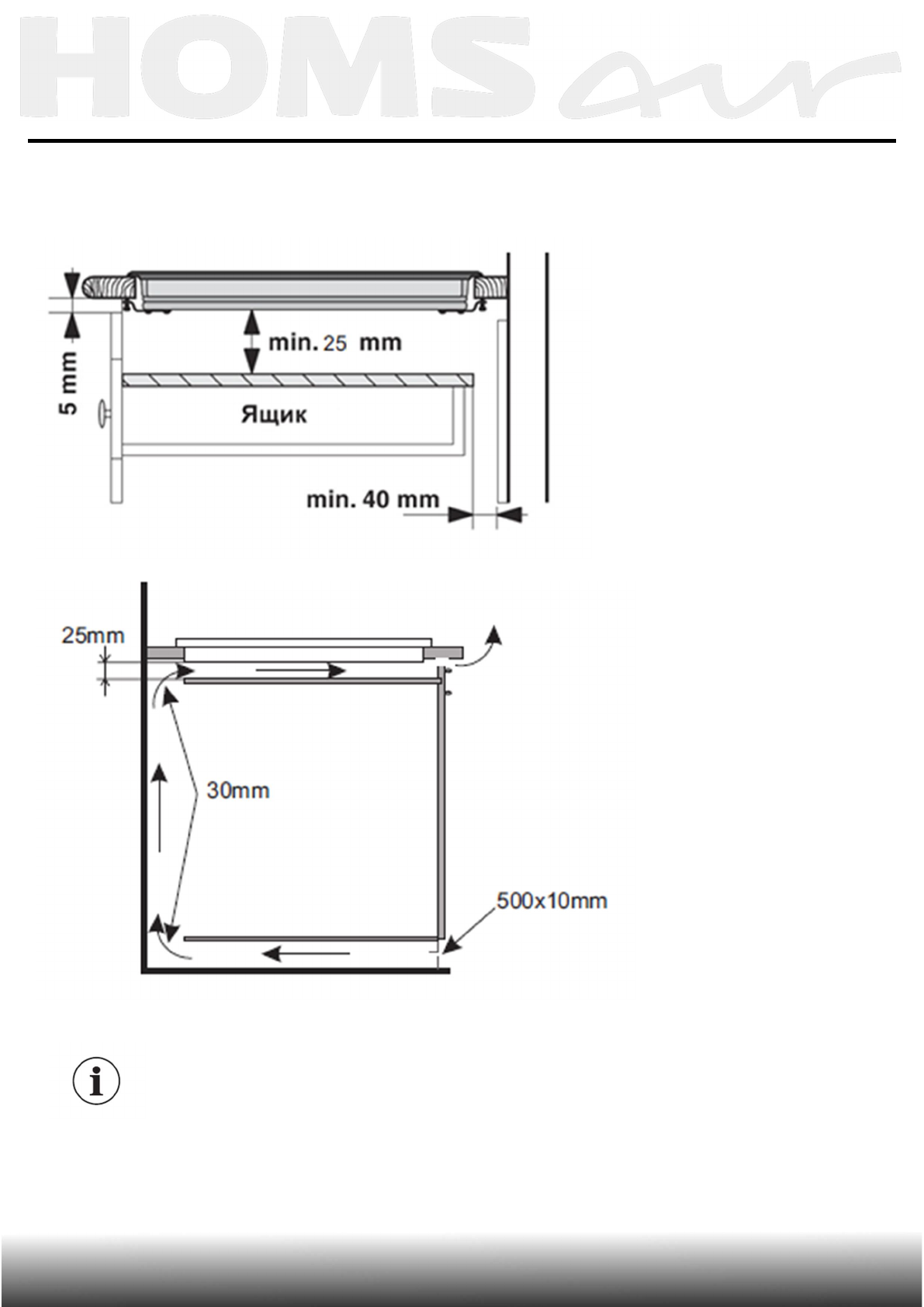
Под низом столешницы надо оставить не менее 25 мм
свободной поверхности – это необходимо для обеспечения
циркуляции воздуха и во избежание перегрева поверхности вокруг
кухонной плиты.
УСТАНОВКА ВАРОЧНОЙ ПАНЕЛИ
-38-
ОБЕСПЕЧЕНИЕ ЗАЗОРОВ ПРИ УСТАНОВКЕ НАД
КУХОННЫМ ЯЩИКОМ
www.homsair.ru
Содержание
- 3 СОДЕРЖАНИЕ
- 4 МЕРЫ БЕЗОПАСНОСТИ; ВНИМАТЕЛЬНО ОЗНАКОМЬТЕСЬ С ИНСТРУКЦИЕЙ И
- 6 Опасность поражения электрическим током.
- 7 ОПАСНОСТЬ ГОРЯЧИХ ПОВЕРХНОСТЕЙ
- 9 ЗАПРЕЩАЕТСЯ
- 10 РАБОТА С ВАРОЧНОЙ ПАНЕЛЬЮ
- 11 МЕРЫ ПО ПРЕДОТВРАЩЕНИЮ ПОВРЕЖ ДЕНИЯ
- 12 ЗАЩИТА ОТ ПЕРЕГРЕВА; будьте осторожны
- 13 ТЕХНИЧЕСКИЕ ДАННЫЕ; РАСШИФРОВКА АББРЕВИАТУР
- 14 ЭКОЛОГИЧЕСКОЕ ПРЕДУПРЕЖДЕНИЕ
- 15 ДАННЫЕ ПО ЭНЕРГОПОТРЕБЛЕНИЮ; Для снижения воздействия на окружающую среду при
- 16 Варочная зона Ø 200 мм; ОПИСАНИЕ ПРИБОРА; ВАРОЧНАЯ ПАНЕЛЬ HVY43DBK
- 17 Сенсор настройки мощности / Настройка таймера; СЕНСОРНАЯ ПАНЕЛЬ УПРАВЛЕНИЯ HVY43DBK
- 18 ВАРОЧНАЯ ПАНЕЛЬ HVY43BK
- 19 Сенсор выбора зоны нагрева; СЕНСОРНАЯ ПАНЕЛЬ УПРАВЛЕНИЯ HVY43BK
- 20 ИСПОЛЬЗОВАНИЕ СЕНСОРНОЙ ПАНЕЛИ
- 21 СИМВОЛЫ ДИСПЛЕЯ; СИМВОЛ
- 22 ВЫБОР ПОСУДЫ; ВЫБОР ПОСУДЫ ДЛЯ СТЕКЛОКЕРАМИЧЕСКОЙ ВАРОЧНОЙ
- 23 ИНФОРМАЦИЯ; ПЕРЕД ПЕРВЫМ ВКЛЮЧЕНИЕМ
- 24 ИСПОЛЬЗОВАНИЕ ПРИБОРА; НАЧАЛО ПРОЦЕССА ПРИГОТОВЛЕНИЯ
- 25 ИСПОЛЬЗОВАНИЕ ПРИБОРА; ВЫКЛЮЧЕНИЕ ВАРОЧНОЙ ПАНЕЛИ; Опасность ожога и пожара!
- 26 БЛОКИРОВКА ПАНЕЛИ УПРАВЛЕНИЯ; Чтобы заблокировать панель управления:
- 27 ИСПОЛЬЗОВАНИЕ ДВОЙНЫХ ЗОН РАСШИРЕНИЯ
- 28 ТАЙМЕР
- 30 УСТАНОВКА ВРЕМЕНИ РАБОТЫ НЕСКОЛЬКИХ ВАРОЧНЫХ
- 31 УСТАНОВКА ВРЕМЕНИ РАБОТЫ ОДНОЙ ВАРОЧНОЙ ЗОНЫ
- 32 УРОВНИ МОЩНОСТИ; Уровень
- 33 СОВЕТЫ ПО ПРИГОТОВЛЕНИЮ
- 34 УСТРАНЕНИЕ НЕПОЛАДОК; РЕШЕНИЕ ПРОБЛЕМ; Проблема
- 36 УХОД ЗА ВАРОЧНОЙ ПАНЕЛЬЮ; ЧИСТКА ПОСЛЕ КАЖДОГО ПОЛЬЗОВАНИЯ; существует опасность ожога.
- 37 УСТАНОВКА ВАРОЧНОЙ ПАНЕЛИ; ПОДГОТОВКА ДЛЯ МОНТАЖА И УСТАНОВКИ ВАРОЧНОЙ
- 38 ПОРЯДОК КРЕПЛЕНИЯ И УСТАНОВКИ СКОБ
- 39 ОБЕСПЕЧЕНИЕ ЗАЗОРОВ ПРИ УСТАНОВКЕ НАД
- 42 Убедитесь, что расстояние между панелью и стеной или
- 43 ПОДКЛЮЧЕНИЕ К ЭЛЕКТРОСЕТИ
- 46 ТЕХНИЧЕСКОЕ ОБСЛУЖИВАНИЕ; ИНФОРМАЦИЯ О ТРАНСПОРТИРОВКЕ
- 47 СЕРВИСНОЕ ОБСЛУЖИВАНИЕ; СЕРВИСНОЕ ОБСЛУЖИВАНИЕ ПОСЛЕ ПРОДАЖИ; Просим вас придерживаться следующих мер:
- 48 ИНФОРМАЦИЯ ОТ ПРОИЗВОДИТЕЛЯ; XXXXXXXXXXXX