Варочная панель HOMSAir HV64BK - инструкция пользователя по применению, эксплуатации и установке на русском языке. Мы надеемся, она поможет вам решить возникшие у вас вопросы при эксплуатации техники.
Если остались вопросы, задайте их в комментариях после инструкции.
"Загружаем инструкцию", означает, что нужно подождать пока файл загрузится и можно будет его читать онлайн. Некоторые инструкции очень большие и время их появления зависит от вашей скорости интернета.

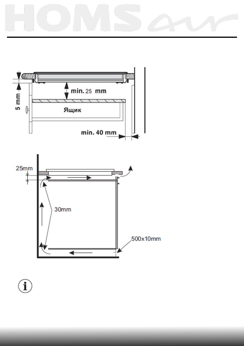
Под низом столешницы надо оставить не менее 25 мм
свободной поверхности – это необходимо для обеспечения
циркуляции воздуха и во избежание перегрева поверхности вокруг
кухонной плиты.
УСТАНОВКА ВАРОЧНОЙ ПАНЕЛИ
-40-
ОБЕСПЕЧЕНИЕ ЗАЗОРОВ ПРИ УСТАНОВКЕ НАД
КУХОННЫМ ЯЩИКОМ
www.homsair.ru
Содержание
- 3 СОДЕРЖАНИЕ
- 4 МЕРЫ БЕЗОПАСНОСТИ; ВНИМАТЕЛЬНО ОЗНАКОМЬТЕСЬ С ИНСТРУКЦИЕЙ И
- 6 Опасность поражения электрическим током.
- 7 ОПАСНОСТЬ ГОРЯЧИХ ПОВЕРХНОСТЕЙ
- 9 ЗАПРЕЩАЕТСЯ
- 10 РАБОТА С ВАРОЧНОЙ ПАНЕЛЬЮ
- 11 МЕРЫ ПО ПРЕДОТВРАЩЕНИЮ ПОВРЕЖДЕНИЯ
- 12 ЗАЩИТА ОТ ПЕРЕГРЕВА; будьте осторожны; Уровень мощности
- 13 ТЕХНИЧЕСКИЕ ДАННЫЕ; РАСШИФРОВКА АББРЕВИАТУР; BK; SM
- 14 ЭКОЛОГИЧЕСКОЕ ПРЕДУПРЕЖДЕНИЕ; ХАРАКТЕРИСТИКИ
- 15 ДАННЫЕ ПО ЭНЕРГОПОТРЕБЛЕНИЮ; ТИП КОНФОРОК; Для снижения воздействия на окружающую среду при
- 16 ОПИСАНИЕ ПРИБОРА; ВАРОЧНАЯ ПАНЕЛЬ
- 18 Выбор зоны расширения.; СЕНСОРНАЯ ПАНЕЛЬ УПРАВЛЕНИЯ
- 21 ИСПОЛЬЗОВАНИЕ СЕНСОРНОЙ ПАНЕЛИ
- 22 СИМВОЛЫ ДИСПЛЕЯ; СИМВОЛ
- 23 ВЫБОР ПОСУДЫ; ВЫБОР ПОСУДЫ ДЛЯ СТЕКЛОКЕРАМИЧЕСКОЙ ВАРОЧНОЙ
- 24 ИНФОРМАЦИЯ; ПЕРЕД ПЕРВЫМ ВКЛЮЧЕНИЕМ
- 25 ИСПОЛЬЗОВАНИЕ ПРИБОРА; НАЧАЛО ПРОЦЕССА ПРИГОТОВЛЕНИЯ
- 26 ИСПОЛЬЗОВАНИЕ ПРИБОРА; ВЫКЛЮЧЕНИЕ ВАРОЧНОЙ ПАНЕЛИ; Опасность ожога и пожара!
- 27 ИСПОЛЬЗОВАНИЕ ДВОЙНЫХ ЗОН РАСШИРЕНИЯ
- 28 ФУНКЦИЯ БЫСТРОГО НАГРЕВА; Пример
- 29 БЛОКИРОВКА ПАНЕЛИ УПРАВЛЕНИЯ; Чтобы заблокировать панель управления:
- 30 ТАЙМЕР
- 32 УСТАНОВКА ВРЕМЕНИ РАБОТЫ НЕСКОЛЬКИХ ВАРОЧНЫХ
- 33 УСТАНОВКА ВРЕМЕНИ РАБОТЫ ОДНОЙ ВАРОЧНОЙ ЗОНЫ
- 34 УРОВНИ МОЩНОСТИ
- 35 СОВЕТЫ ПО ПРИГОТОВЛЕНИЮ
- 36 УСТРАНЕНИЕ НЕПОЛАДОК; РЕШЕНИЕ ПРОБЛЕМ; Проблема
- 38 УХОД ЗА ВАРОЧНОЙ ПАНЕЛЬЮ; ЧИСТКА ПОСЛЕ КАЖ ДОГО ПОЛЬЗОВАНИЯ; существует опасность ожога.
- 39 УСТАНОВКА ВАРОЧНОЙ ПАНЕЛИ; ПОДГОТОВКА ДЛЯ МОНТАЖА И УСТАНОВКИ ВАРОЧНОЙ
- 40 ПОРЯДОК КРЕПЛЕНИЯ И УСТАНОВКИ СКОБ
- 41 ОБЕСПЕЧЕНИЕ ЗАЗОРОВ ПРИ УСТАНОВКЕ НАД
- 45 ПОДКЛЮЧЕНИЕ К ЭЛЕКТРОСЕТИ
- 47 Для модели; ЗАМЕНА СЕТЕВОГО КАБЕЛЯ
- 50 ТЕХНИЧЕСКОЕ ОБСЛУЖИВАНИЕ; ИНФОРМАЦИЯ О ТРАНСПОРТИРОВКЕ
- 51 СЕРВИСНОЕ ОБСЛУЖИВАНИЕ; СЕРВИСНОЕ ОБСЛУЖИВАНИЕ ПОСЛЕ ПРОДАЖИ; Просим вас придерживаться следующих мер:
- 52 ИНФОРМАЦИЯ ОТ ПРОИЗВОДИТЕЛЯ; XXXXXXXXXXXX













