Варочная панель Hansa BHIW 68308 - инструкция пользователя по применению, эксплуатации и установке на русском языке. Мы надеемся, она поможет вам решить возникшие у вас вопросы при эксплуатации техники.
Если остались вопросы, задайте их в комментариях после инструкции.
"Загружаем инструкцию", означает, что нужно подождать пока файл загрузится и можно будет его читать онлайн. Некоторые инструкции очень большие и время их появления зависит от вашей скорости интернета.

39
INSTALLATION
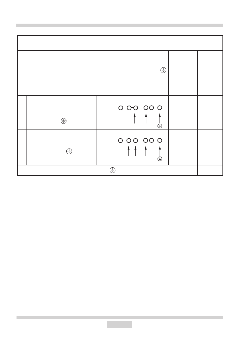
SCHEMA VON MÖGLICHEN VERBINDUNGEN
Hinweis! Die Heizelemente sind für eine Spannung von 230 V ausgelegt.
Hinweis! Bei jeder Verbindungsart muss der Schutzleiter an die mit
gekennzeichnete Klemme angeschlossen sein.
Typ /
Quer
-
schnitt des
Anschluss
-
kabels
Sicherung
1
Bei einem Netz mit Spannung von
230 V einphasiger Anschluss mit
Nullleiter, die Brücke verbindet die
Klemmen L1, L2, Nullleiter bis N,
Schutzleiter bis
1N~
HO5VV-FG
3X 4 mm
2
mind.30 A
2*
Bei einem Netz mit Spannung
von 230/400 V zweiphasiger An
-
schluss mit Nullleiter, Nullleiter bis
N, Schutzleiter bis
2N~
HO5VV-FG
4X2,5mm
2
mind.16 A
L1=R, L2=S, L3=T, N= Klemme des Nullleiter, = Klemme des Schutzleiters
* Im Falle einer hauseigenen dreiphasigen Netz mit Spannung von 230/400 V ist die übrige
Leitung an die Klemme: L3 anzuschließen, die an die internen Installation des Kochfeldes
nicht angeschlossen ist.
* Die Klemmen N-N sind intern verbunden und müssen daher nicht mehr überbrückt werden.
L1
N
L1
L2
N
Содержание
- 2 СОДЕРЖАНИЕ
- 3 УКАЗАНИЯ ПО БЕЗОПАСНОСТИ ЭКСПЛУАТАЦИИ
- 4 Если на поверхности имеется трещина,
- 6 или пластик острым скребком. Берегите руки от ожёгов и травм!; привести к некорректной работе сенсорного управления.
- 8 ОПИСАНИЕ ИЗДЕЛИЯ; Описание варочной поверхности; Индукционная конфорка
- 9 УСТАНОВКА И МОНТАЖ; Подготовка столешницы мебели для монтажа; и предохранить столешницу от попадания влаги со стороны стены.
- 10 УСТНОВКА И МОНТАЖ; Установка варочной поверхности BHIW6*
- 11 УСТАНОВКА И МОНТАЖ; Подключение варочной поверхности к электросети
- 12 СХЕМА ВОЗМОЖНЫХ ЭЛЕКТРИЧЕСКИХ СОЕДИНЕНИЙ; Внимание! Напряжение конфорок 230В
- 13 ЭКСПЛУАТАЦИЯ; Перед первым включением плиты
- 14 Детектор присутствия кастрюли в индукционном поле; Защитное оборудование:
- 15 Характеристика посуды.; Выбор посуды для приготовления пищи на индукционных конфор-
- 17 Панель управления; поверхность выключается.
- 18 Выключение всей варочной поверхности; ключается. Зона нагрева возвращается к номинальной мощности.
- 19 Управление функцией Booster; включения детьми, а ее включение возможно после разблокировки.; Функция блокировки; выпол; Индикатор остаточного тепла
- 20 Ограничение времени работы
- 21 ного с помощью часов времени.; Функция таймера
- 22 Выключение часов; Функция таймера выключается в момент активации функции часов.
- 23 Функция подогрева; Включение зоны нагрева
- 24 ЧИСТКА И КОНСЕРВАЦИЯ; Скребок для чистки плиты; Чистка пятен
- 25 Периодический контроль; В случае неправильных действий с
- 26 ДЕЙСТВИЯ В АВАРИЙНЫХ СИТУАЦИЯХ; ПРОБЛЕМА
- 27 ПРОБЛЕМЫ
- 28 ТЕХНИЧЕСКИЕ ДАННЫЕ; Производитель свидетельствует