Варочная панель Hansa BHGW6515506 - инструкция пользователя по применению, эксплуатации и установке на русском языке. Мы надеемся, она поможет вам решить возникшие у вас вопросы при эксплуатации техники.
Если остались вопросы, задайте их в комментариях после инструкции.
"Загружаем инструкцию", означает, что нужно подождать пока файл загрузится и можно будет его читать онлайн. Некоторые инструкции очень большие и время их появления зависит от вашей скорости интернета.

12
УСТАНОВКА
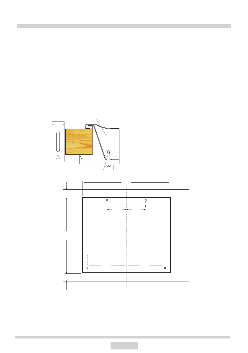
● Подготовить место (нишу) в сегменте мебели согласно с монтажной схемой,
● Произвести подключение плиты к газовой и электрической системе согласно
с инструкцией по эксплуатации плиты
●
слегка затянуть зажимы с нижней части плиты,
● Протереть мебельный сегмент от пыли, вставить плиту в нишу и до упора прижать
к мебели,
● Установить крепежные зажимы (рис.) перпендикулярно краю плиты и закрутить до
упора,
● После монтажа плиты в мебельный сегмент необходимо проверить ее
функциональность, а особенно противоутечную систему и зажигание.
1 - Столешница
2 - Шуруп
3 - Крепежный зажим
4 - Плита
●
Плита имеет постоянно подключенный кабель с защитным соединением и может быть
подключена только в штепсельное гнездо с заземлением 230 V ~ 50 Гц. Система
электропитания, подающая ток в штепсельное гнездо, должна быть оборудована в
защиту от превышения напряжения 16А.
490
mi
n
40
mi
n
70
145
259
145
257
560
4
3
2
1
Содержание
- 2 УВАЖАЕМЫЕ ПОЛЬЗОВАТЕЛИ; Подключение плиты к газовому баллону ПРОПАН - БУТАН или к; Производитель свидетельствует
- 3 СОДЕРЖАНИЕ; Общая информация
- 4 УКАЗАНИЯ ПО ТЕХНИКЕ БЕЗОПАСНОСТИ; Внимание
- 5 П р и м е ч а н и е .
- 6 УКАЗАНИЯ ПО БЕЗОПАСНОСТИ; ПРИ ПОДОЗРЕНИИ УТЕЧКИ ГАЗА ЗАПРЕЩАЕТСЯ:
- 7 КАК ЭКОНОМИТЬ ЭНЕРГИЮ
- 9 ОПИСАНИЕ ИЗДЕЛИЯ; Газовая плита; ТЕХНИЧЕСКИЕ ПАРАМЕТРЫ
- 10 УСТАНОВКА; Установка плиты
- 13 Указания для монтажника
- 15 Регулировка вентилей на замедленную подачу газа.; wok
- 16 Регулировка вентилей
- 17 ЭКСПЛУАТАЦИЯ; Подбор посуды; Эксплуатация варочных поверх-; Ручка регулировки работы конфорок «Zs»
- 19 Подбор пламени «Zs»; Подбор пламени «Zt»
- 20 Действия на случай угрозы утечки несгоревшего газа; КОНФОРКА не зажигается, чувствуется утекающий газ
- 21 ОЧИСТКА И КОНСЕРВАЦИЯ; Конфорки
- 22 ПРАВИЛА ПОВЕДЕНИЯ ПРИ ПОЛОМКАХ; ПРОБЛЕМА
- 61 Alegerea flăcării „Zs”; Alegerea flăcării „Zt”
- 68 Компания изготовитель; Претензии по качеству
Характеристики
Остались вопросы?Не нашли свой ответ в руководстве или возникли другие проблемы? Задайте свой вопрос в форме ниже с подробным описанием вашей ситуации, чтобы другие люди и специалисты смогли дать на него ответ. Если вы знаете как решить проблему другого человека, пожалуйста, подскажите ему :)












