Варочная панель Graude GS 60.3 G - инструкция пользователя по применению, эксплуатации и установке на русском языке. Мы надеемся, она поможет вам решить возникшие у вас вопросы при эксплуатации техники.
Если остались вопросы, задайте их в комментариях после инструкции.
"Загружаем инструкцию", означает, что нужно подождать пока файл загрузится и можно будет его читать онлайн. Некоторые инструкции очень большие и время их появления зависит от вашей скорости интернета.

17
В
АРИАНТЫ УСТАНОВКИ
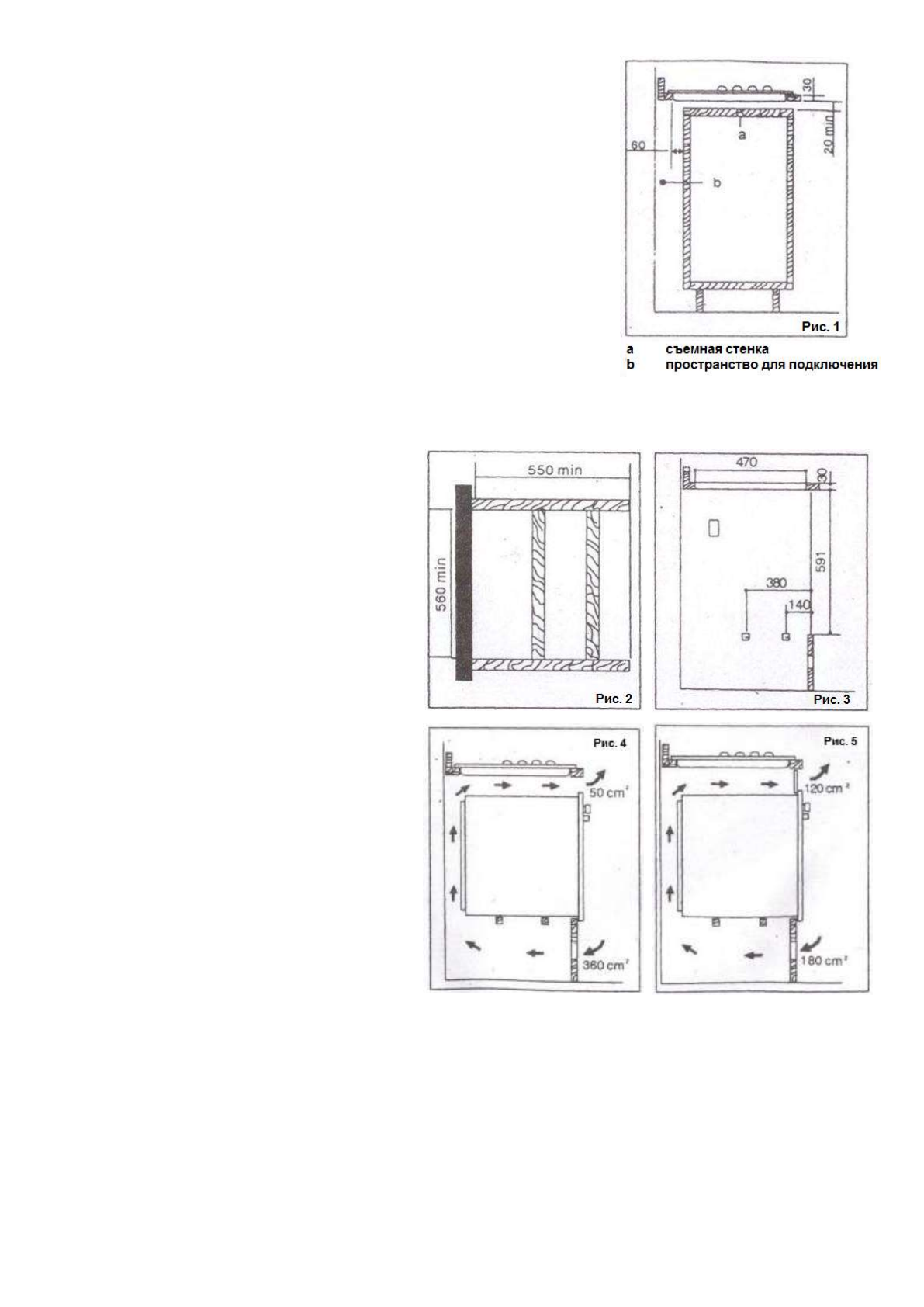
В напольный шкаф с дверцей
При установке в шкаф соблюдайте меры предосторожности
для предотвращения контакта с корпусом варочной панели, ко-
торый при эксплуатации сильно нагревается. Рекомендуемый
метод преодоления этой проблемы показан на рисунке справа.
Полка под варочной панелью должна легко сниматься, чтобы
облегчить монтаж и демонтаж прибора в случае проведения
работ по техническому обслуживанию прибора.
В напольный шкаф с духовым шкафом
Ниша для установки должна иметь раз-
меры, показанные на рисунках 2 и 3, а
также в ней должны быть предусмот-
рены опоры для обеспечения достаточ-
ной вентиляции. Два метода для предот-
вращения перегрева представлены на
рисунках 4 и 5. Подключение варочной
панели и духового шкафа к электросети
должно осуществляться раздельно в це-
лях безопасности и возможности удале-
ния духового шкафа через переднюю
часть шкафа.
Настенный шкаф или кухонную вытяжку
необходимо устанавливать на высоте не
менее 650 мм над варочной панелью.