Варочная панель Gorenje IT643BSC7 - инструкция пользователя по применению, эксплуатации и установке на русском языке. Мы надеемся, она поможет вам решить возникшие у вас вопросы при эксплуатации техники.
Если остались вопросы, задайте их в комментариях после инструкции.
"Загружаем инструкцию", означает, что нужно подождать пока файл загрузится и можно будет его читать онлайн. Некоторые инструкции очень большие и время их появления зависит от вашей скорости интернета.

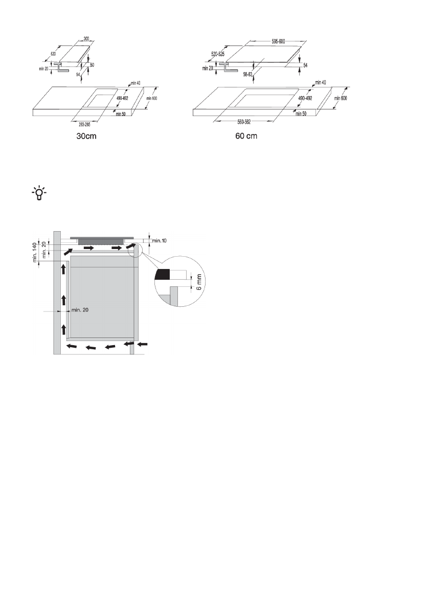
Вентиляционные отверстия в кухонном шкафу
ИНФОРМАЦИЯ!
Для надежной работы электронных компонентов индукционной варочной панели необходимо
обеспечить достаточную вентиляцию.
Кухонный шкаф с ящиком
•
В верхней части задней стенки шкафа
должно быть вентиляционное отверстие
высотой не менее 140 миллиметров по
всей ширине шкафа. В верхней части
передней стенки шкафа должно быть
вентиляционное отверстие высотой не
менее 6 миллиметров по всей ширине
шкафа.
•
Под варочной панелью должна быть
установлена горизонтальная
перегородка по всей ее длине. Между
нижней точкой прибора и перегородкой
должно быть расстояние не менее
20 миллиметров.
С задней стороны должна быть
обеспечена достаточная вентиляция.
•
В нижней части варочной панели установлен охлаждающий вентилятор. В ящике под варочной
панелью запрещается хранить мелкие предметы и бумагу, так как их может затянуть в
работающий вентилятор, что приведет к поломке системы охлаждения. Не храните в ящике
алюминиевую фольгу и легковоспламеняющиеся предметы, например, чистящие средства
и аэрозоли, и держите их вдали от варочной панели. Опасность взрыва!
•
Обеспечьте расстояние не менее 20 миллиметров между воздухозаборными отверстиями
вентилятора и содержимым ящика.
28













