Варочная панель Gorenje IT 641-ORA - инструкция пользователя по применению, эксплуатации и установке на русском языке. Мы надеемся, она поможет вам решить возникшие у вас вопросы при эксплуатации техники.
Если остались вопросы, задайте их в комментариях после инструкции.
"Загружаем инструкцию", означает, что нужно подождать пока файл загрузится и можно будет его читать онлайн. Некоторые инструкции очень большие и время их появления зависит от вашей скорости интернета.

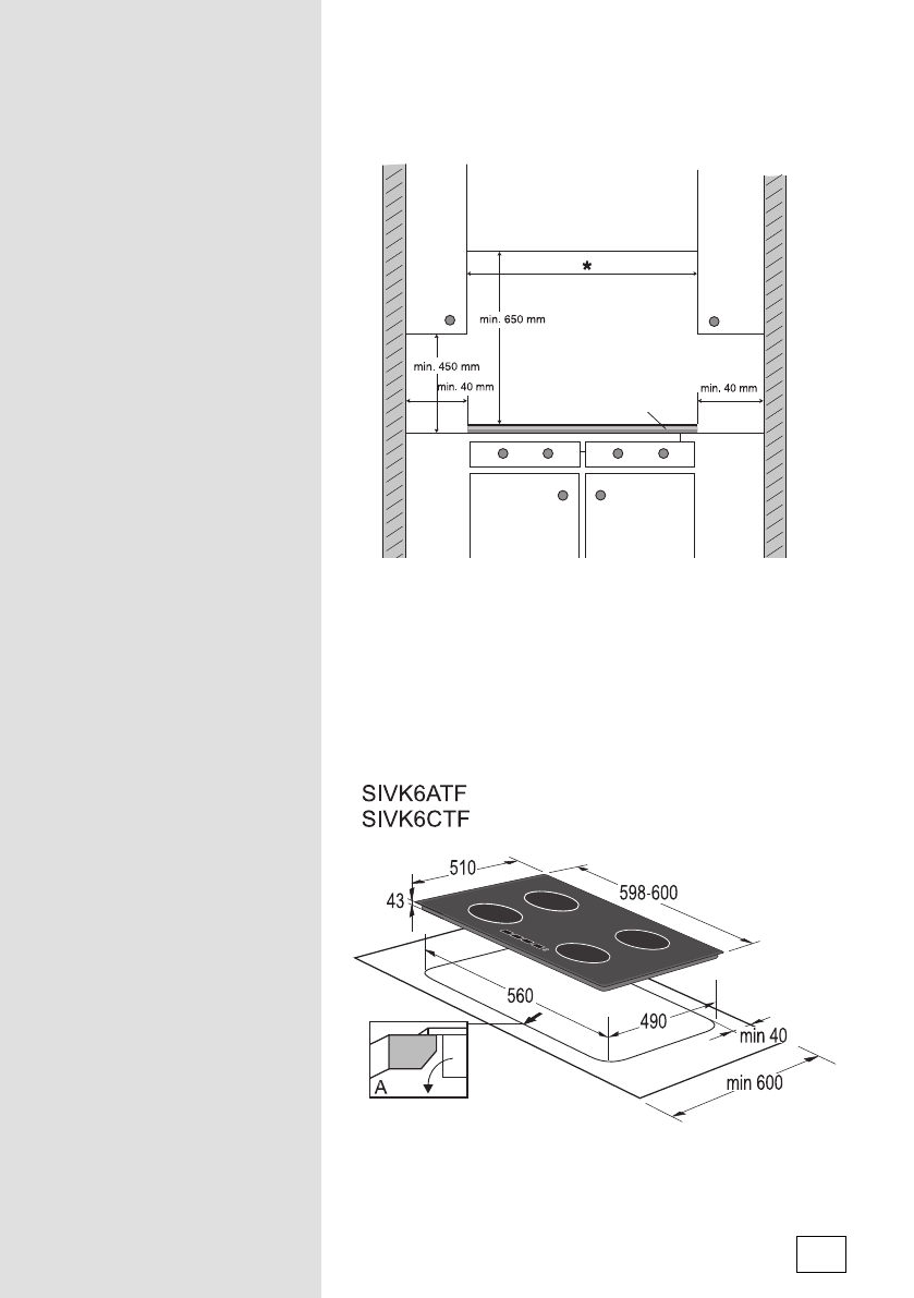
кухонная
вытяжка
навесной
шкафчик
стена
варочная
панель
31
285823
*SIVK 6 ... 61
см
*SIVK 7 ... 78
см
*SIVK 9 ... 91
см
*SIVK 1 ... 112
см
Размеры
монтажного
проема
Размеры
прибора
и
монтажного
проема
указаны
на
схемах
ниже
.
Минимальные
расстояния
Для
безопасной
работы
прибора
необходимо
соблюдать
минимальные
расстояния
.
 
  
  
  
  
  
  
  
  
  
  
  
  
  
  
  
  
  
  
  
  
  
  
  
  
  
  
  
  
  
  
  
  
  
  
  
  
  
  
  
 











