Варочная панель Gorenje IT 641 ORA W - инструкция пользователя по применению, эксплуатации и установке на русском языке. Мы надеемся, она поможет вам решить возникшие у вас вопросы при эксплуатации техники.
Если остались вопросы, задайте их в комментариях после инструкции.
"Загружаем инструкцию", означает, что нужно подождать пока файл загрузится и можно будет его читать онлайн. Некоторые инструкции очень большие и время их появления зависит от вашей скорости интернета.

кухонная
вытяжка
навесной
шкафчик
стена
варочная
панель
31
285823
*SIVK 6 ... 61
см
*SIVK 7 ... 78
см
*SIVK 9 ... 91
см
*SIVK 1 ... 112
см
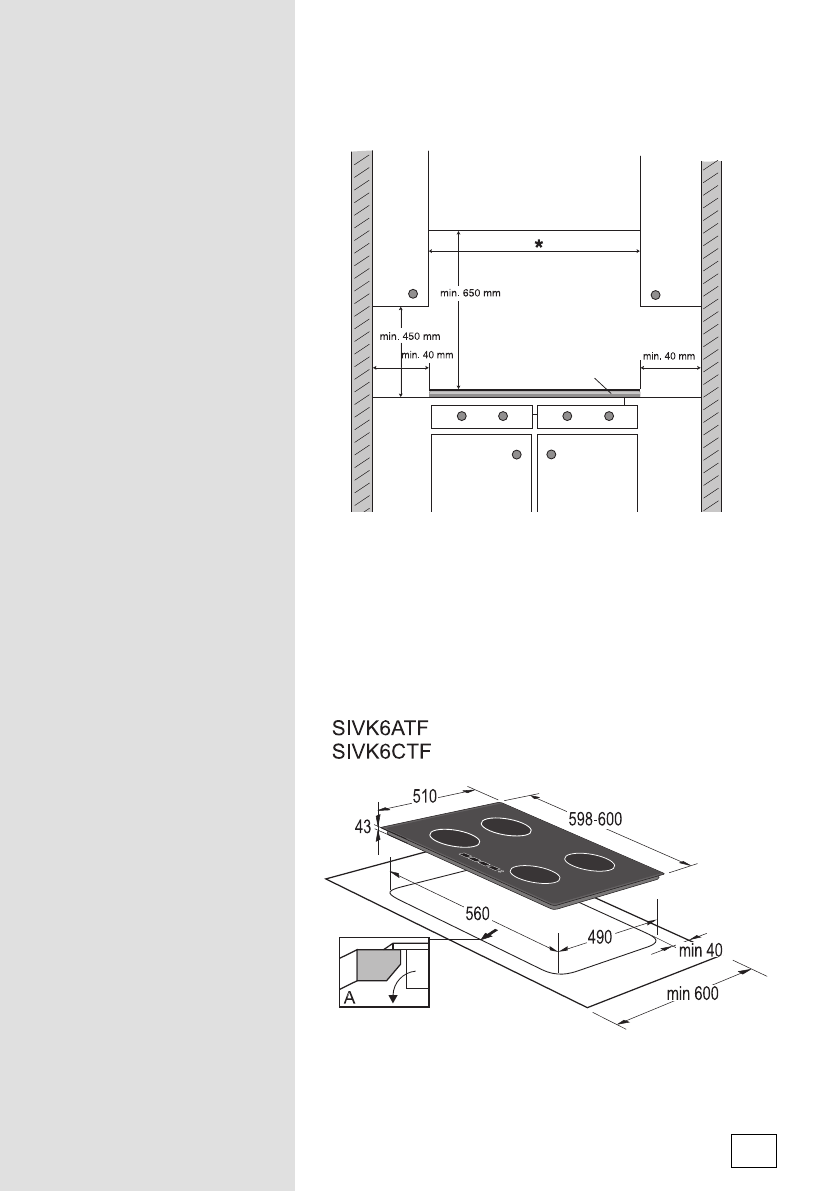
Размеры
монтажного
проема
Размеры
прибора
и
монтажного
проема
указаны
на
схемах
ниже
.
Минимальные
расстояния
Для
безопасной
работы
прибора
необходимо
соблюдать
минимальные
расстояния
.
Характеристики
Остались вопросы?Не нашли свой ответ в руководстве или возникли другие проблемы? Задайте свой вопрос в форме ниже с подробным описанием вашей ситуации, чтобы другие люди и специалисты смогли дать на него ответ. Если вы знаете как решить проблему другого человека, пожалуйста, подскажите ему :)