Варочная панель Gorenje GT641KB - инструкция пользователя по применению, эксплуатации и установке на русском языке. Мы надеемся, она поможет вам решить возникшие у вас вопросы при эксплуатации техники.
Если остались вопросы, задайте их в комментариях после инструкции.
"Загружаем инструкцию", означает, что нужно подождать пока файл загрузится и можно будет его читать онлайн. Некоторые инструкции очень большие и время их появления зависит от вашей скорости интернета.

RU
9
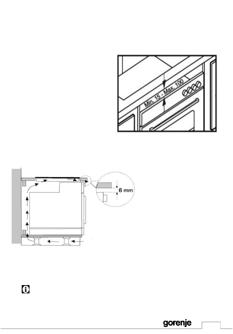
Для размещения вашей варочной поверхности на Рис. 7указаны размеры для срезания
столешницы. Поместите варочную поверхность, которую вы предварительно подготовили, в
вырезанное отверстие в столешнице. Если вы будете использовать плиту на встроенном
духовом шкафу, соблюдайте требования, касающиеся циркуляции воздуха между духовкой
и плитой, указанные на рисунках 8 и 9.
После удаления защитной пленки с inox поверхности можете приступить к
использованию плиты.
Рис
.
8
Рис. 9













