Варочная панель Gorenje ECT 330 KR - инструкция пользователя по применению, эксплуатации и установке на русском языке. Мы надеемся, она поможет вам решить возникшие у вас вопросы при эксплуатации техники.
Если остались вопросы, задайте их в комментариях после инструкции.
"Загружаем инструкцию", означает, что нужно подождать пока файл загрузится и можно будет его читать онлайн. Некоторые инструкции очень большие и время их появления зависит от вашей скорости интернета.

24
LOCATION OF THE HOB
МЕСТОПОЛОЖЕНИЕ НА
ПЛОТА
POLOŽAJ GREJNE PLOČE
УСТАНОВКА ПЛИТЫ
1.
Sealing
2.
Fastening element
3.
Rear wall
4.
Side walls
1.
Уплътнение
2.
Закрепващи скоби
3.
Задна стена
4.
Cтена от ляво или дясно
1.
Tesnjenje
2.
Pritrdlina objemka
3.
Zadnja stena
4.
Stranske stene
1.
Уплътнение
2.
Cоединение
3.
Задние стенка
4.
Боковoe стенки
The appliance must be installed in
accordance
with
valid
local
regulations.
All
installation,
servicing
and
maintenance work should be carried
out by competent personnel, and
should comply with above mentioned
standards.
Appliance is suppose to be install in
openning in working desk of minimum
thickness of 30 mm with temperature
resistant coating on the top.
Working plate should be in horisontal
position and its part near the wall
must be sealed against penetration of
liquids.
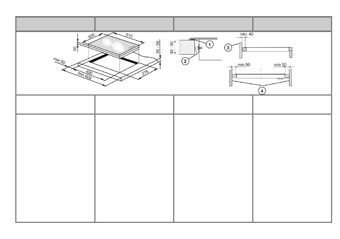
Dimensions of opening are on fig.
Safety dimensions of hob from walls
and furniture as well as placing of
partition under hob are mentioned on
fig.
Surface after cutting of opening
protect
by
silicon
glue
against
Уредът трябва да бъде инсталиран
в съответствие с действащите в
страната стандарти.
Уреда трябва да се инсталира в
отвора на кухненски плот с
минимална дебелина 30мм, с
топлоустойчивото покритие отгоре.
Работната повърхност трябва да е
в хоризонтална позиция и тези
части, които са в близост до стени
трябва да се уплътнят против
проникване на течности.
Размерите на отвора са показани
на Фиг.
Размерите за поставяне на плота в
близост до стени или мебели, както
и за преградата под плота са
показани на фиг.
След изрязване уплътнете отвора
със силикон, против влага.
Ако има фурна под плота не е
необходимо да поставяте преграда.
Фурни, които имат вертикално
Instalaciju može obavljati samo firma
za isto ovlašćena i mora biti izvedena
u skladu sa nacionalnim normama i
propisima.
Vsa opravila v zvez iz namestitvijo,
servisiranjem ter vzdrževanjem naj
opravi za to pristojno osebje, ki naj pri
tem
upošteva
zgoraj
navedene
standarde.
Aparat namestite v odprtino na
delovni površini; debelina delovne
površine naj znaša vsaj 30mm, na
vrhu pa naj bo prevlečena s plastjo,
odporno na visoke temperature.
Delovna površina naj bo nameščena
povsem vodoravno, na robu oz.
robovih, ki se stika(jo) s steno, mora
biti zatesnjena, da se ne bi med rob
plošče in steno zlivala tekočina.
Dimenzije odprtine so navedene na
sliki.
Varnostna razdalja štedilnika in
pohištva so navedeni na sliki.
Все
работы,
связанные
с
установкой,
сервисом
и
обслуживанием
должны
выполнять,
компетентны
лица,
которые при этом соблюдают
вышеуказанные стандарты.
Аппарат установите в отверстие на
рабочей
поверхности;
толщина
рабочей поверхности пусть будет
хотя бы 30 мм, сверху пусть будет
защищена
слоем,
стойким
к
высоким температурам.
Рабочая поверхность должна быть
установлена горизонтально, края,
при стыковке со стеной должны
быть уплотнены, для того, чтобы в
промежуток между краем плиты и
стеной не выливалась жидкость.
Размеры отверстия указаны на Рис.
Безопасное расстояние плиты и
мебели находящегося под плитой
указано на Рис..
После
того
как
разрежете
Характеристики
Остались вопросы?Не нашли свой ответ в руководстве или возникли другие проблемы? Задайте свой вопрос в форме ниже с подробным описанием вашей ситуации, чтобы другие люди и специалисты смогли дать на него ответ. Если вы знаете как решить проблему другого человека, пожалуйста, подскажите ему :)