Варочная панель Elica NIKOLATESLA LIBRA WH/F/83 - инструкция пользователя по применению, эксплуатации и установке на русском языке. Мы надеемся, она поможет вам решить возникшие у вас вопросы при эксплуатации техники.
Если остались вопросы, задайте их в комментариях после инструкции.
"Загружаем инструкцию", означает, что нужно подождать пока файл загрузится и можно будет его читать онлайн. Некоторые инструкции очень большие и время их появления зависит от вашей скорости интернета.
Загружаем инструкцию

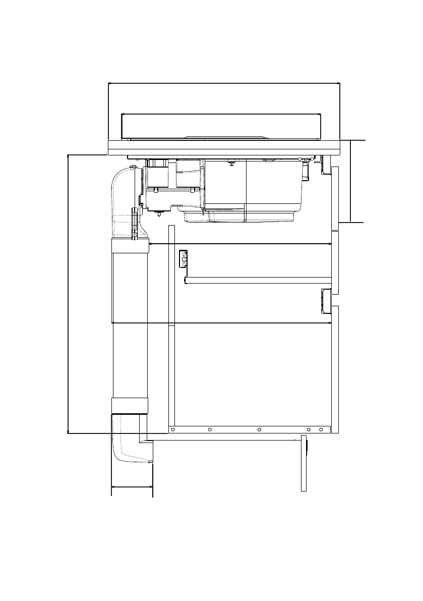
13a
210
600
515
720
570
107
473
Содержание
- 182 RU - Инструкция по монтажу у эксплуатации; Неукоснительно; Тщательно
- 187 Используйте только кастрюли, которые имеют символ; Рекомендуемые диаметры дна кастрюль; ВАЖНО: если диаметр кастрюли не соответствует; Энергосбережение
- 189 Электрическое соединение
- 190 Панель управления
- 191 Варочная зона включена; Характеристики варочной поверхности
- 192 Для отключения повторите действие
- 193 Для отключения функции:
- 200 Таблица мощности
- 202 Очистка; Для очистки используйте; Жироулавливающий фильтр
Характеристики
Остались вопросы?Не нашли свой ответ в руководстве или возникли другие проблемы? Задайте свой вопрос в форме ниже с подробным описанием вашей ситуации, чтобы другие люди и специалисты смогли дать на него ответ. Если вы знаете как решить проблему другого человека, пожалуйста, подскажите ему :)
Часто задаваемые вопросы
Как посмотреть инструкцию к Elica NIKOLATESLA LIBRA WH/F/83?
Необходимо подождать полной загрузки инструкции в сером окне на данной странице
Руководство на русском языке?
Все наши руководства представлены на русском языке или схематично, поэтому вы без труда сможете разобраться с вашей моделью
Как скопировать текст из PDF?
Чтобы скопировать текст со страницы инструкции воспользуйтесь вкладкой "HTML"













