Варочная панель Electrolux EHG 6435 X - инструкция пользователя по применению, эксплуатации и установке на русском языке. Мы надеемся, она поможет вам решить возникшие у вас вопросы при эксплуатации техники.
Если остались вопросы, задайте их в комментариях после инструкции.
"Загружаем инструкцию", означает, что нужно подождать пока файл загрузится и можно будет его читать онлайн. Некоторые инструкции очень большие и время их появления зависит от вашей скорости интернета.

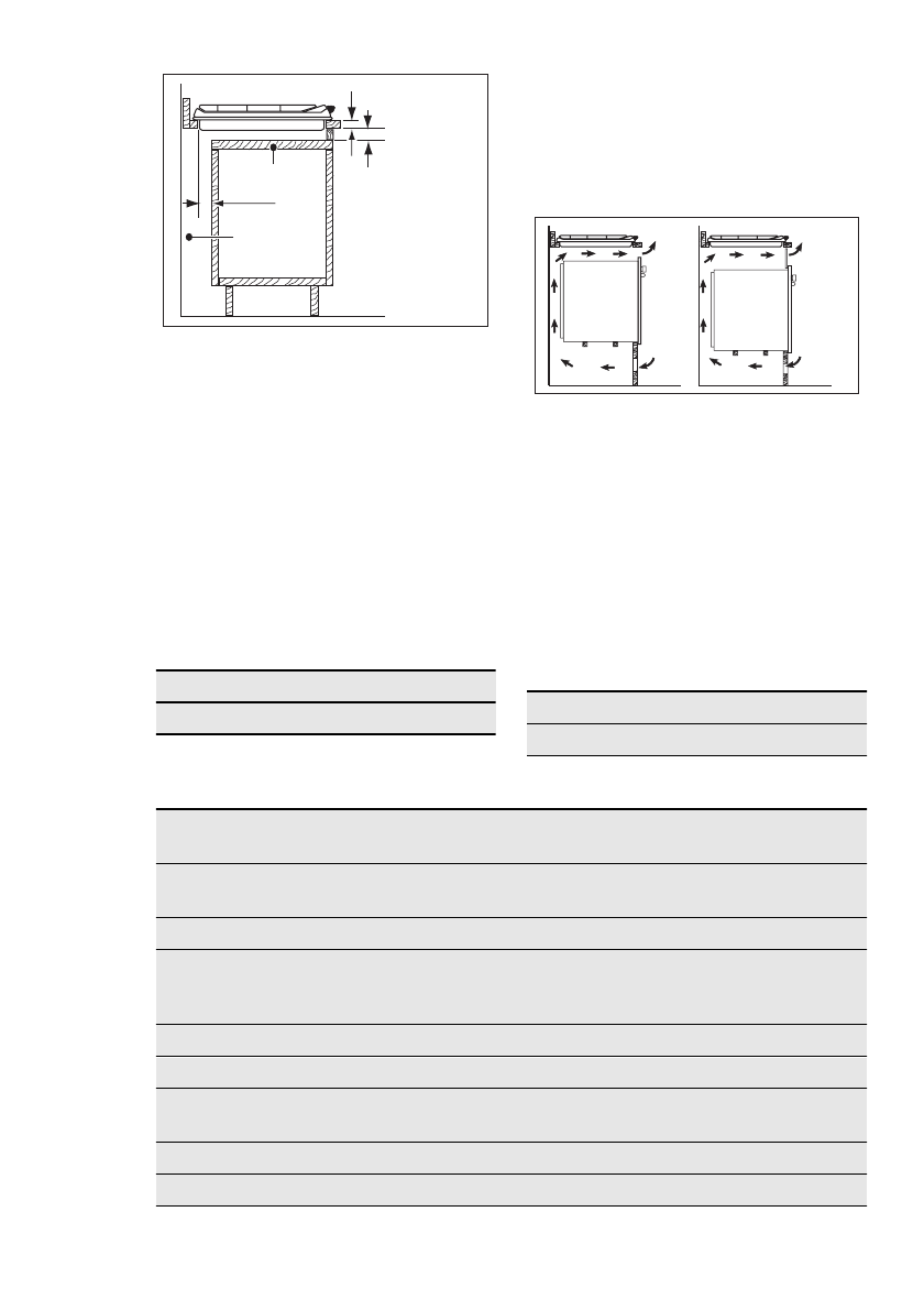
min 20 mm
(max 150 mm)
30 mm
60 mm
B
A
A)
Съемная панель
B)
Пространство для подключения проводов
Кухонный шкаф с духовым шкафом
Размеры ниши под варочную панель должны
соответствовать указанным, в кухонном шка‐
фу должны быть предусмотрены вентиля‐
ционные отверстия для постоянного притока
воздуха. Из соображений безопасности, а так‐
же для упрощения процедуры извлечения ду‐
хового шкафа из шкафа, электрические сое‐
динения для варочной панели и духового
шкафа должны быть выполнены раздельно.
50 cm
2
360 cm
2
180 cm
2
120 cm
2
9. ТЕХНИЧЕСКИЕ ДАННЫЕ
Размеры варочной панели
Ширина:
594 мм
Длина:
510 мм
Размеры выреза для варочной
поверхности
Ширина:
560 мм
Длина:
480 мм
Тепловая мощность
Горелка повышенной мощ‐
ности
3.0 кВт
Горелка для ускоренного
приготовления:
2.0 кВт
Вспомогательная горелка:
1.0 кВт
ОБЩАЯ МОЩНОСТЬ:
G20 (2H) 20 мбар = 8.0 кВт
G30/G31 (3B/P) 30/30 мбар = 567 г/час
G20 (2H) 13 мбар = 5.6 кВт только для России
Электропитание:
230 В ~ 50 Гц
Категория:
II2H3B/P
Подключение к газовой ма‐
гистрали:
G 1/2"
Подвод газа:
G20 (2H) 20 мбар
Класс прибора:
3
14 www.electrolux.com
Содержание
- 2 ПОДДЕРЖКА ПОТРЕБИТЕЛЕЙ И СЕРВИСНОЕ ОБСЛУЖИВАНИЕ
- 4 УКАЗАНИЯ ПО БЕЗОПАСНОСТИ; Подключение к электросети
- 5 Подключение к газовой магистрали
- 6 Функциональные элементы варочной панели
- 7 ЕЖЕДНЕВНОЕ ИСПОЛЬЗОВАНИЕ
- 8 Выключение горелки
- 10 ПОИСК И УСТРАНЕНИЕ НЕИСПРАВНОСТЕЙ; принадлежностями
- 11 Подключение к газовой; B C; Сжиженный газ
- 14 Кухонный шкаф с духовым шкафом; ТЕХНИЧЕСКИЕ ДАННЫЕ
- 15 ОХРАНА ОКРУЖАЮЩЕЙ СРЕДЫ