Варочная панель Electrolux EGG 7353 NOX - инструкция пользователя по применению, эксплуатации и установке на русском языке. Мы надеемся, она поможет вам решить возникшие у вас вопросы при эксплуатации техники.
Если остались вопросы, задайте их в комментариях после инструкции.
"Загружаем инструкцию", означает, что нужно подождать пока файл загрузится и можно будет его читать онлайн. Некоторые инструкции очень большие и время их появления зависит от вашей скорости интернета.

Кухонна секція з дверцятами
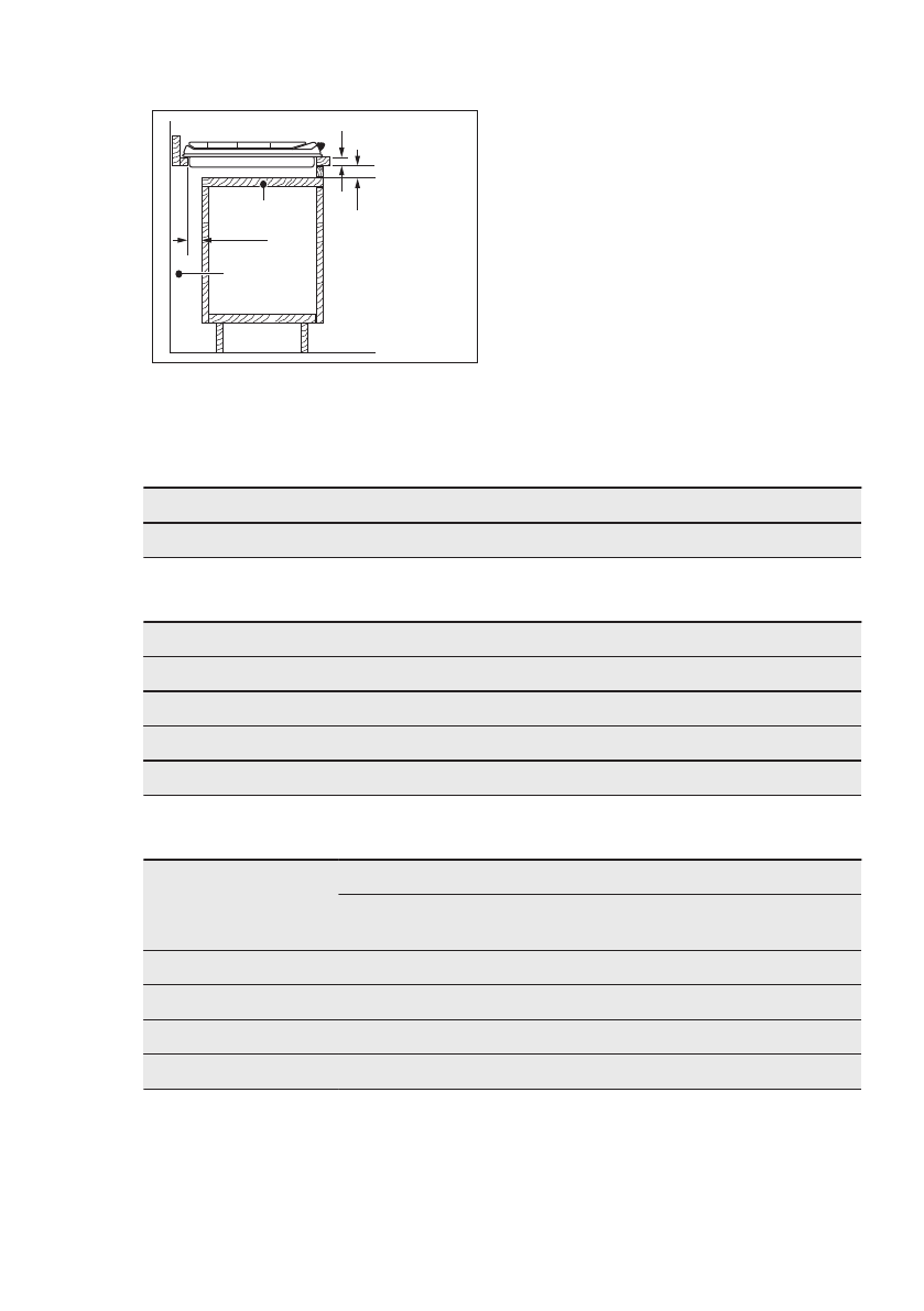
min 20 mm
(max 150 mm)
30 mm
60 mm
B
A
A) Знімна панель
B) Місце для під’єднання
Кухонна секція з духовою шафою
З міркувань безпеки, а також для
полегшення від’єднання духової шафи
від кухонної секції варильну поверхню
й духову шафу слід під’єднувати до
джерела електроживлення окремо.
9. ТЕХНІЧНА ІНФОРМАЦІЯ
9.1 Розміри варильної поверхні
Ширина
744 мм
Товщина
510 мм
9.2 Обвідні діаметри
КОНФОРКА
Ø ОБВІДНИЙ 1/100 мм
Потрійна корона
56
Швидка
42
Середньої швидкості
32
Допоміжна
28
9.3 Інші технічні дані
ЗАГАЛЬНА
ПОТУЖНІСТЬ:
Вихідний газ:
G20 (2H), 13 мбар = 12 кВт
Альтернативний
газ:
G30/G31 (3B/P), 30 мбар = 887 г/год
G20 (2H), 20 мбар = 12 кВт
Електроживлення:
230 В ~ 50 Гц
Категорія приладу:
II2H3B/P
Підведення газу:
G 1/2"
Клас приладу:
3
УКРАЇНСЬКА
35
Содержание
- 3 возможностями
- 4 Общие правила техники безопасности
- 5 УКАЗАНИЯ ПО БЕЗОПАСНОСТИ; электросети
- 6 Подключение к газовой; магистрали
- 8 Функциональные элементы варочной панели; ЕЖЕДНЕВНОЕ ИСПОЛЬЗОВАНИЕ
- 9 Общий вид горелки
- 10 Выключение горелки
- 12 ПОИСК И УСТРАНЕНИЕ НЕИСПРАВНОСТЕЙ
- 13 Если решение найти не; пакет с принадлежностями; Название
- 14 Подключение к газовой
- 15 Замена инжекторов; минимального уровня
- 16 Возможности встраивания
- 17 ТЕХНИЧЕСКИЕ ДАННЫЕ; Размеры варочной панели; Другие технические данные
- 19 ЭНЕРГОЭФФЕКТИВНОСТЬ; Экономия электроэнергии; ОХРАНА ОКРУЖАЮЩЕЙ СРЕДЫ