Варочная панель Electrolux EGG 56343 NX - инструкция пользователя по применению, эксплуатации и установке на русском языке. Мы надеемся, она поможет вам решить возникшие у вас вопросы при эксплуатации техники.
Если остались вопросы, задайте их в комментариях после инструкции.
"Загружаем инструкцию", означает, что нужно подождать пока файл загрузится и можно будет его читать онлайн. Некоторые инструкции очень большие и время их появления зависит от вашей скорости интернета.

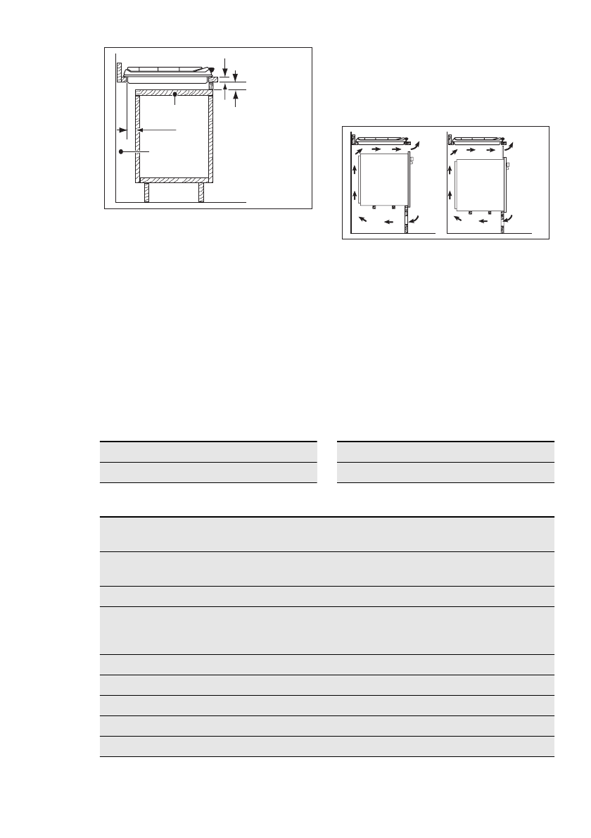
min 20 mm
(max 150 mm)
30 mm
60 mm
B
A
A)
Знімна панель
B)
Місце, що може використовуватися для
підключення
Кухонна секція з духовою шафою
Розміри ніші під варильну поверхню мають
відповідати зазначеним, а кухня повинна бути
оснащена вентиляційними отворами для без‐
перервного надходження повітря. З міркувань
безпеки, а також для полегшення від’єднання
духової шафи від гарнітуру варильну поверх‐
ню і духову шафу слід підключати до джерела
електроенергії окремо.
50 cm
2
360 cm
2
180 cm
2
120 cm
2
9. ТЕХНІЧНА ІНФОРМАЦІЯ
Розміри варильної поверхні
Ширина:
594 мм
Довжина:
510 мм
Габарити ніші варильної поверхні
Ширина:
560 мм
Довжина:
480 мм
Теплова потужність
Конфорка «Потрійна коро‐
на»
4.0 кВт
Конфорка середньої швид‐
кості:
2.0 кВт
Допоміжна конфорка:
1.0 кВт
ЗАГАЛЬНА ПОТУЖНІСТЬ:
G20 (2H) 20 мбар = 9.0 кВт
G30/G31 (3B/P) 30/30 мбар = 654 г/год
G20 (2H) 13 мбар = 9 кВт лише для Росії
Електроживлення:
230 В ~ 50 Гц
Категорія:
II2H3B/P
Підведення газу:
G 1/2"
Подача газу:
G20 (2H) 20 мбар
Клас приладу:
3
Українська
29
Характеристики
Остались вопросы?Не нашли свой ответ в руководстве или возникли другие проблемы? Задайте свой вопрос в форме ниже с подробным описанием вашей ситуации, чтобы другие люди и специалисты смогли дать на него ответ. Если вы знаете как решить проблему другого человека, пожалуйста, подскажите ему :)