Варочная панель DeLonghi IF 57 PRO - инструкция пользователя по применению, эксплуатации и установке на русском языке. Мы надеемся, она поможет вам решить возникшие у вас вопросы при эксплуатации техники.
Если остались вопросы, задайте их в комментариях после инструкции.
"Загружаем инструкцию", означает, что нужно подождать пока файл загрузится и можно будет его читать онлайн. Некоторые инструкции очень большие и время их появления зависит от вашей скорости интернета.

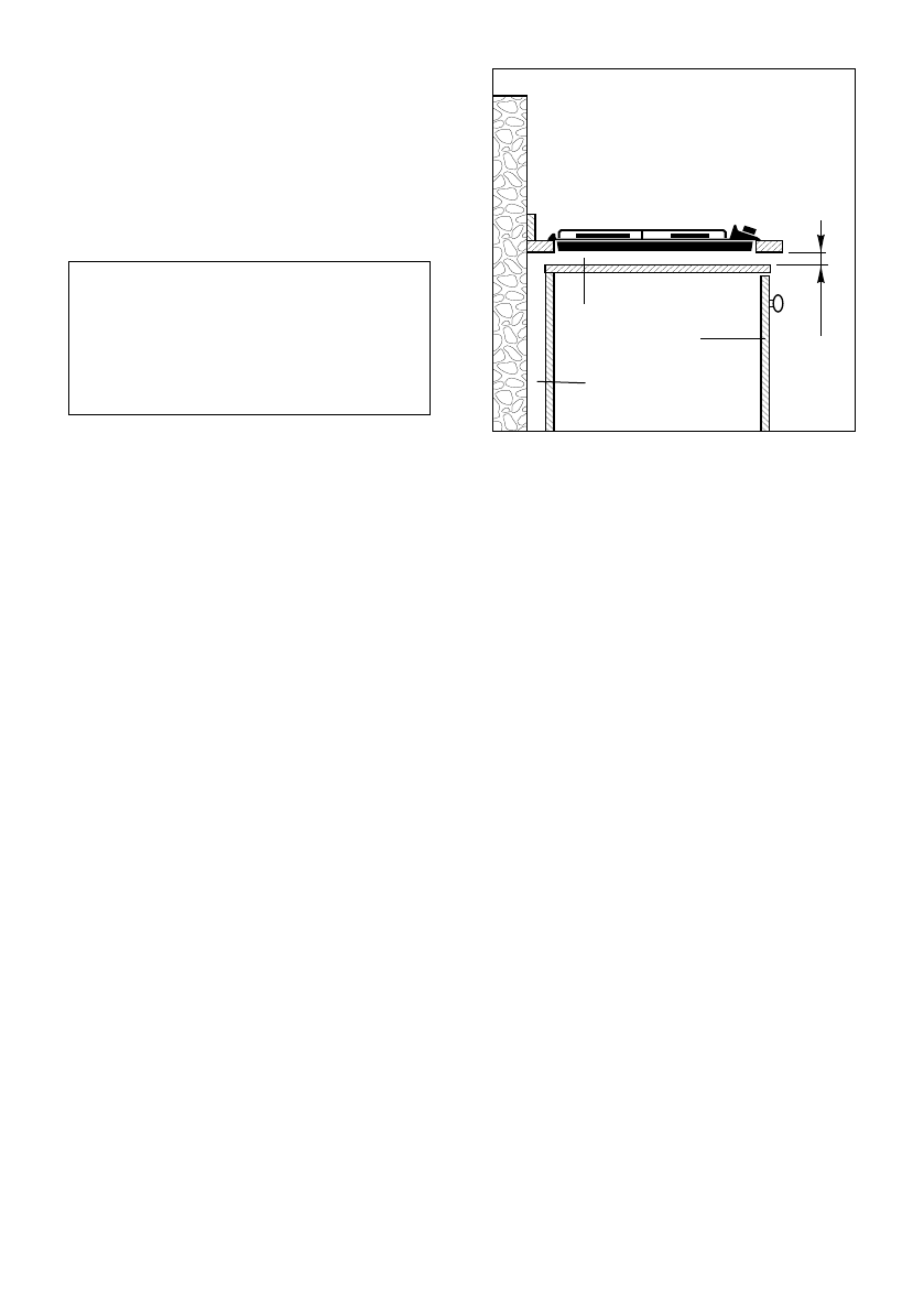
30 мм
Рис. 4.5
Пространство
для устройства
соединений
зазор
дверь
УСТАНОВКА В КУХОННОМ
ШКАФУ С ДВЕРЦЕЙ
(Рис. 4.5)
Рекомендуемое расстояние между варочной
поверхностью и мебелью должно быть 30
мм.
Длительное использование изделия
требует дополнительного проветри-
вания, либо увеличения мощности
вытяжного шкафа (при наличии).