Варочная панель Candy CI 136 - инструкция пользователя по применению, эксплуатации и установке на русском языке. Мы надеемся, она поможет вам решить возникшие у вас вопросы при эксплуатации техники.
Если остались вопросы, задайте их в комментариях после инструкции.
"Загружаем инструкцию", означает, что нужно подождать пока файл загрузится и можно будет его читать онлайн. Некоторые инструкции очень большие и время их появления зависит от вашей скорости интернета.

3. Po uložení varné desky na zvolené
místo je t
Ĝ
eba ji uchytit k pracovní ploše
pomocí
þ
ty
Ĝ
kovových úchyt
Ĥ
na
základn
Č
desky. Každý úchyt je možné
nastavit dle hloubky pracovní desky.
Upozorn
Č
ní:
(1) Instalaci induk
þ
ní varné desky smí
provád
Č
t pouze odborn
Č
kvalifikovaný
technik. Neprovád
Č
jte instalaci sami.
(2) Induk
þ
ní varná deska nesmí být
instalována nad chladni
þ
kou, my
þ
kou,
pra
þ
kou nebo suši
þ
kou.
(3) Induk
þ
ní varná deska musí být
namontována takovým zp
Ĥ
sobem, který
zaru
þ
í optimální odvod tepla.
(4) St
Č
ny i
þ
ásti, které se nacházejí pod
induk
þ
ní varnou deskou, musejí být
odolné proti horku.
(5) Vrstva materiálu mezi varnou deskou a
pracovní deskou a použitá lepicí hmota
musí být odolná proti vysokým teplotám.
Takto p
Ĝ
edejdete p
Ĝ
ípadným škodám.
4. Schéma
p
Ĝ
ipojení elektrického
proudu
P
Ĝ
ipojení k p
Ĝ
ívodu zdroje elektrického
proudu musí být provedeno odborn
Č
kvalifikovaným technikem, a to v souladu s
obecn
Č
platnými bezpe
þ
nostními p
Ĝ
edpisy.
Zp
Ĥ
soby pro p
Ĝ
ipojení jsou znázorn
Č
ny na
vyobrazení
þ
. 3.
Zkontrolujte, zda je elektrické vedení je
opat
Ĝ
eno zemnícím vodi
þ
em, v souladu
s platnými p
Ĝ
edpisy a normami. Uzemn
Č
ní
je povinné.
Výrobce nenese žádnou zodpov
Č
dnost za
p
Ĝ
ípadné škody v p
Ĝ
ípad
Č
, že není
respektováno toto na
Ĝ
ízení.
Pokud není na spot
Ĝ
ebi
þ
i namontována
zástr
þ
ka, je t
Ĝ
eba namontovat
normalizovanou zástr
þ
ku na p
Ĝ
ívodní kabel,
která je vhodná pro uvedenou zát
Č
ž nap
Č
tí
na štítku spot
Ĝ
ebi
þ
e.
V p
Ĝ
ípad
Č
, že je požadováno trvalé
p
Ĝ
ipojení k síti, je t
Ĝ
eba vložit mezi spot
Ĝ
ebi
þ
a elektrický omnipolární spína
þ
se
vzdáleností mezi kontakty alespo
Ė
3 mm.
Dojde-li k poškození p
Ĝ
ívodní š
ĖĤ
ry, je
nutné neprodlen
Č
provést její vým
Č
nu
kvalifikovaným technikem. P
Ĝ
ívodní š
ĖĤ
ra
nesmí být stla
þ
ená ani zp
Ĝ
ehýbaná.
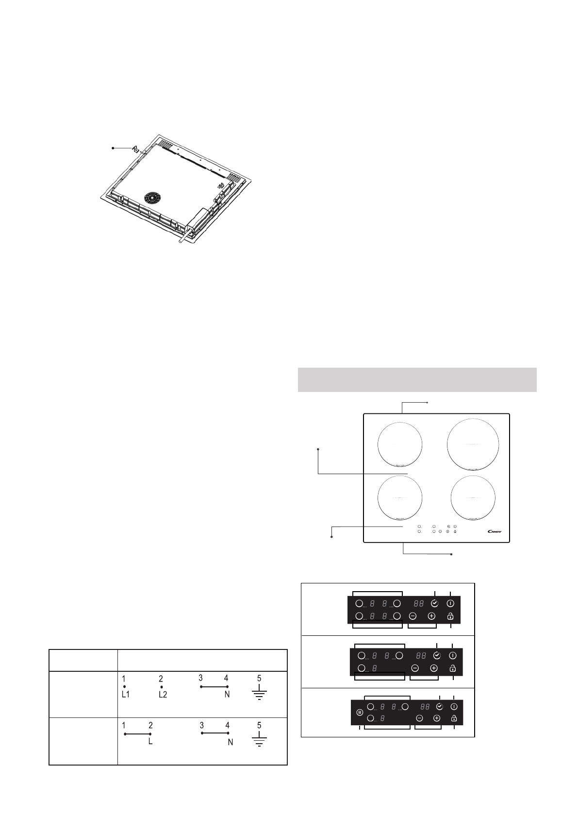
Nákres induk
þ
ní varné desky
Vstup vzduchu
Výstup vzduchu
Ovládací panel
Schéma ovládacího panelu
ý
idlo pro zjišt
Č
Timer
ON/OFF
ní tepla
Regulace výkonu
Systém blokování
24
Plocha ze
sklokeramiky
Nap
Č
tí a
frekvence
P
Ĝ
ipojení elektrického proudu
400V 2-N
þ
erný hn
Č
dý
šedý a modrý žluto/zelený
220-240V
þ
erný a hn
Č
dý
šedý a modrý žluto/zelený
1
2
3
4
5
1
CI640C
CI630C
1
3
4
5
1
2
1.
2.
1.
3.
4.
5.
Úhelník
CI630C/1
1
3
4
5
1
2
6
Boost
6.
50/60Hz
50/60Hz
CI136
CID613