Варочная панель AEG HG5755421U - инструкция пользователя по применению, эксплуатации и установке на русском языке. Мы надеемся, она поможет вам решить возникшие у вас вопросы при эксплуатации техники.
Если остались вопросы, задайте их в комментариях после инструкции.
"Загружаем инструкцию", означает, что нужно подождать пока файл загрузится и можно будет его читать онлайн. Некоторые инструкции очень большие и время их появления зависит от вашей скорости интернета.

Обережно!
Установлюйте прилад лише на
стільниці із плоскою поверх‐
нею.
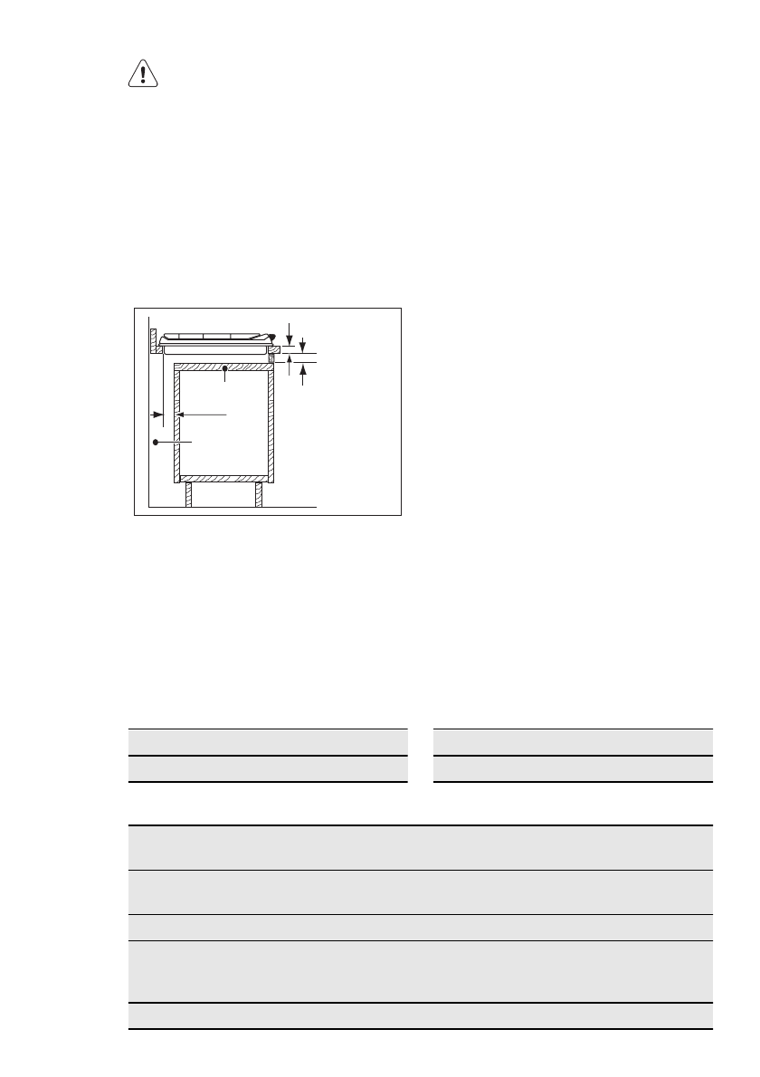
8.7 Варіанти вбудовування
Кухонна секція з дверцятами
Панель, яка встановлюється під ва‐
рильною поверхнею, повинна легко
зніматися для забезпечення доступу у
разі проведення технічного обслугову‐
вання.
min 20 mm
(max 150 mm)
30 mm
60 mm
B
A
A)
Знімна панель
B)
Місце, що може використовуватися
для підключення
Кухонна секція з духовою
шафою
З міркувань безпеки, а також для по‐
легшення від’єднання духової шафи
від кухонної секції варильну поверхню
і духову шафу слід підключати до дже‐
рела електроживлення окремо.
9. ТЕХНІЧНА ІНФОРМАЦІЯ
Розміри варильної поверхні
Ширина:
745 мм
Довжина:
515 мм
Габарити ніші варильної поверхні
Ширина:
560 мм
Довжина:
480 мм
Теплова потужність
Конфорка «Потрійна ко‐
рона»
4.0 кВт
Конфорка середньої
швидкості:
2.0 кВт
Допоміжна конфорка:
1.0 кВт
ЗАГАЛЬНА ПОТУЖ‐
НІСТЬ:
G20 (2H) 13 мбар = 11 кВт
G30/G31 (3B/P) 30/30 мбар = 800 г/год
G20 (2H) 20 мбар = 11 кВт
Електроживлення:
230 В ~ 50 Гц
УКРАЇНСЬКА
47
Содержание
- 19 Общие правила техники безопасности
- 20 УКАЗАНИЯ ПО БЕЗОПАСНОСТИ; Подключение к электросети
- 23 Функциональные элементы варочной панели; ЕЖЕДНЕВНОЕ ИСПОЛЬЗОВАНИЕ
- 24 Выключение горелки
- 27 ПОИСК И УСТРАНЕНИЕ НЕИСПРАВНОСТЕЙ; пакет с принадлежностями
- 28 Подключение к газовой
- 31 ТЕХНИЧЕСКИЕ ДАННЫЕ
- 33 ОХРАНА ОКРУЖАЮЩЕЙ СРЕДЫ
Характеристики
Остались вопросы?Не нашли свой ответ в руководстве или возникли другие проблемы? Задайте свой вопрос в форме ниже с подробным описанием вашей ситуации, чтобы другие люди и специалисты смогли дать на него ответ. Если вы знаете как решить проблему другого человека, пожалуйста, подскажите ему :)