Усилители Yamaha EMX-5014C - инструкция пользователя по применению, эксплуатации и установке на русском языке. Мы надеемся, она поможет вам решить возникшие у вас вопросы при эксплуатации техники.
Если остались вопросы, задайте их в комментариях после инструкции.
"Загружаем инструкцию", означает, что нужно подождать пока файл загрузится и можно будет его читать онлайн. Некоторые инструкции очень большие и время их появления зависит от вашей скорости интернета.

EMX5014C • РУКОВОДСТВО ПОЛЬЗОВАТЕЛЯ
Справочное руководство
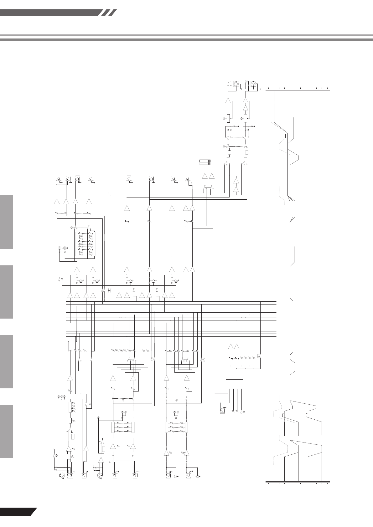
35
Технические характеристики
Блок-схема и диаграмма уровня
CH INPUT
CH1-6
A
B
HA
BA
PA
D
[-60dBu~-16dBu]
[-60dBu~-16dBu]
[-34dBu~+10dBu]
[-34dBu~
+10dBu]
GAIN
[-34dBu~+10dBu]
GAIN
[-30dBu~+14dBu]
INSER
T
I/O
ST CH MIC
ST CH LINE
[-34dBu~+10dBu]
ST CH LINE
R
L
[-34dBu~+10dBu]
[-60dBu~-16dBu]
[-34dBu~+10dBu]
[0dBu]
[0dBu]
[0dBu]
[0dBu]
3-Stage EQ
3-Stage EQ
ON
YE
3-Stage EQ
Lo
Lo Gain
Mid Gain
Hi Gain
Mid f
Mid
Hi
CH7/8,9/10
CH7L,9L
CH11L,13L
CH12R,14R
EFFECT ON/OFF
PR
OGRAM(1-16)
P
ARAMETER
YE
FOO
T
SW
PHANT
O
M
RE
+48V
26dB
COMP
GAIN
TH
[0dBu]
[0dBu]
[-16dBu]
BA
BA
BA
INV
INV
SUM
INV
DR
DR
PHONES
[-10dBu]
[-10dBu]
A
UX2
A
UX1
[3mW 40ohms]
PHONES
SIGNAL SELECT
ST L
YSP
ON
ON
YE
YSProcessing
PO
WER AMP
LIMITER
SPEAKERS
A:L/A
UX1/A
UX1
B:R/MONO/A
UX2
LIMITER
RE
LIMITER
LIMITER
INV
PA
PA
RE
500W
200W
75W
500W
200W
75W
YSP
ST R
MONO
A
UX2
A
UX1
A
UX1
[+4dBu]
LED METER
EFFECT SEND
[+4dBu]
A
UX2 SEND
[+4dBu]
A
UX1 SEND
ST/AFL-PFL
SUM
SUM
[0dBu]
SUM
[0dBu]
SUM
[0dBu]
SUM
[0dBu]
SUM
[0dBu]
SUM
[0dBu]
SUM
[0dBu]
AFL
AFL
AFL
PFL
SUM
[0dBu]
SUM
[0dBu]
SUM
[0dBu]
SUM
[0dBu]
SUM
[0dBu]
SUM
[0dBu]
SUM
[0dBu]
SUM
[0dBu]
[-10dBV]
9-Stage GEQ
63Hz
10kHz
8kHz
4kHz
2kHz
1kHz
250Hz
500Hz
125Hz
9-Stage GEQ
SUM
RE
le
ve
L
pil
C
le
ve
L
pil
C
Clip Le
ve
l
CH INPUT (P
AD ON)
GAIN Min.
[+10dBu]
ST CH LINE
GAIN Min.
[+10dBu]
ST CH LINE
GAIN Max.
[-34dBu]
ST CH MIC
[-60dBu]
ST CH MIC
[-16dBu]
CH INPUT (P
AD ON)
GAIN Max.
[-34dBu]
CH INPUT (P
AD OFF)
GAIN Min.
[-16dBu]
CH INPUT (P
AD OFF)
GAIN Max.
[-60dBu]
ON
IN
LO
RO
DIGIT
A
L
EFFECT
(DSP)
EFFECT R
T
N
HA
L(MONO)
FCL
R
CH8R,10R
80
80
HPF
HPF
HA
HA
HA
HA
[-6dBu]
BA
BA
BA
BA
[-10dBu]
ST SUB OUT
L/MONO
ST SUB OUT
ST OUT
[+4dBu]
[+4dBu]
R
R
L
ST
YE
YE
RE
GR
FCL
PEAK
SIGNAL
CH F
ader
[-10dBu]
[0dBu]
[0dBu]
[-6dBu]
[-6dBu]
[-6dBu]
PA
N
A
UX1(PRE)
EFFECT
PRE
A
UX2
PFL
BA
[0dBu]
RE
ON
YE
GR
PEAK
SIGNAL
3-Stage EQ
3-Stage EQ
Lo
Mid
Hi
[0dBu]
RE
GR
PEAK
SIGNAL
A
UX2
[-10dBu]
[0dBu]
[0dBu]
[-6dBu]
[-6dBu]
[-6dBu]
P
AN/BAL
A
UX1(PRE)
PRE
PFL
EFFECT
A
UX2
[0dBu]
[-6dBu]
[-6dBu]
[-6dBu]
[-10dBu]
[-6dBu]
A
UX1
[-6dBu]
A
UX2
PFL
BA
BA
BAL
A
UX1(PRE)
PRE
PFL
EFFECT
BA
BA
ST CH F
ader
ON
YE
[-10dBu]
[0dBu]
BA
BA
ST CH F
ader
REC OUT
GEQ ON
ST
ANDBY
+30dBu
+40dBu
0dBu=0.775V
0dBV=1V
+20dBu
+10dBu
0dBu
-10dBu
-20dBu
-30dBu
-40dBu
-50dBu
-60dBu
-70dBu
+30dBu
+40dBu
+20dBu
+10dBu
0dBu
-10dBu
-20dBu
-30dBu
-40dBu
-50dBu
-60dBu
-70dBu
le
ve
L
pil
C
le
ve
L
pil
C
1
2
1
2
INSER
T I/O[
0dBu]
ST SUB le
vel control
ST
,A
UX f
ader [
-10dBu]
ST OUT
, ST SUB OUT [
+4dBu]
PHONES [
-16dBu]
[PHONES 3mW@
40ohms]
SPEAKER OUT
MAXIMUM OUTPUT PO
WER[500w4ohms]
[125w/4ohms]
(+29.2dBu)
(+35.2dBu)
A
UX SEND
,EFFECT SEND [
+4dBu]
[-6dBu]
C
H
&
S
T
C
H
t
o
S
T
[0dBu](P
AN,BAL
hard
left/r
ight)
CH & ST CH to A
UX/EFFECT [
-6dBu]
REC OUT [
-10dBV]
CH f
ader [
-10dBu]
A UX 1(MUTE)
ST L(MUTE)
ST R(MUTE)
A UX 2(MUTE)
EFFECT(MUTE)
A UX 1(NON-MUTE)
ST L(NON-MUTE)
ST R(NON-MUTE)
A UX 2(NON-MUTE)
EFFECT(NON-MUTE)
PFL L/AFL L
PFL R/AFL R
Содержание
- 2 ИНСТРУКЦИИ ПО БЕЗОПАСНОСТИ; ПРЕДУПРЕЖДЕНИЕ
- 3 ПРЕДОСТОРОЖНОСТИ; Пожалуйста, внимательно прочтите перед работой; ВНИМАНИЕ
- 4 Руководство Пользователя
- 5 Mixer Basics; Спасибо за приобретение микшер-усилителя Yamaha EMX5014C.
- 6 Характеристики; Подключение питания; Для включения питания нажмите выключатель POWER.
- 7 Краткое руководство; Получение звука на акустической системе; ПРАВИЛЬНО
- 9 Включите переключатель ON; Установите общую громкость Мастер-фейдером ST.
- 10 Добавление реверберации; Установите фейдер EFFECT RTN в положение «0».
- 12 Полнофункциональная работа с микшером; Введение; Штырьковый разъем RCA-типа
- 13 Симметричный и несимметричный сигнал: в чем разница?; Как симметричные линии фильтруют помехи?
- 14 В симметричном кабеле три провода:
- 15 Как сделать микс лучше; Опустите фейдеры
- 16 Использовать ли эквалайзер; Ослабление частот для очистки микса
- 17 Обработка звука; Время Реверберации и Задержки
- 18 Компрессия; Сначала музыка — затем микс
- 19 Панель управления и задняя панель; Контроллеры на каждом канале
- 20 Регулятор GAIN
- 22 Секция цифровых эффектов; Гнездо SEND; Колесо PROGRAM
- 23 Переключатель/Индикатор EFFECT ON
- 26 AUX1 and AUX2 Faders
- 27 Задняя панель; Гнезда SPEAKERS
- 28 Подключение акустических систем; -х канальное подключение
- 29 Установка в рэк-стойку; Как установить крепления
- 30 Подготовка к работе; Панель управления
- 31 Поиск неисправностей
- 33 Технические характеристики; Общие технические характеристики
- 34 Входные характеристики
- 35 Блок-схема и диаграмма уровня



