UNIPUMP CP 32-80 180 - Инструкция по эксплуатации

UNIPUMP CP 32-80 180

Насос UNIPUMP CP 32-80 180 - инструкция пользователя по применению, эксплуатации и установке на русском языке. Мы надеемся, она поможет вам решить возникшие у вас вопросы при эксплуатации техники.

Если остались дополнительные вопросы — свяжитесь с нами через контактную форму.

1 Страница 1
2 Страница 2
3 Страница 3
4 Страница 4
5 Страница 5
6 Страница 6
7 Страница 7
8 Страница 8
9 Страница 9
10 Страница 10
11 Страница 11
12 Страница 12
13 Страница 13
14 Страница 14
15 Страница 15
16 Страница 16
Страница: / 16

Содержание:

  • Страница 2 – Обратите внимание на следующие символы:
  • Страница 3 – Описание и область применения; Комплект поставки
  • Страница 4 – Технические характеристики
  • Страница 6 – Напорно-расходные характеристики
  • Страница 8 – Монтаж насоса
  • Страница 11 – Электрическое подключение
  • Страница 12 – Ввод в эксплуатацию
  • Страница 13 – При этом можно получить; При прикосновении к насосу можно; Техническое обслуживание
  • Страница 14 – Возможные неисправности
  • Страница 16 – ВНИМАНИЕ! Гарантийные обязательства не распространяются:
Загрузка инструкции

Циркуляционный насос

Серия CP

Руководство по монтажу
и эксплуатации

www.unipump.ru

"Загрузка инструкции" означает, что нужно подождать пока файл загрузится и можно будет его читать онлайн. Некоторые инструкции очень большие и время их появления зависит от вашей скорости интернета.

Краткое содержание

Страница 2 - Обратите внимание на следующие символы:

3 Те хническая по дд ер жка — + 7 495 734 91 97 Данное руководство содержит принципиальные указания, кото - рые должны выполняться при монтаже, эксплуатации и техниче - ском обслуживании. В целях избежания несчастных случаев и исключения поло - мок, необходимо внимательно ознакомиться с данным руков...

Страница 3 - Описание и область применения; Комплект поставки

4 Ру ко во дс тв о п о м он та ж у и э кс пл уа та ци и С ЕР И Я C P Описание и область применения Циркуляционные насосы серии CP представляют собой цирку - ляционные насосы с «мокрым» ротором и предназначены для создания принудительной циркуляции жидкости в одно- или двухтрубных системах отопления ...

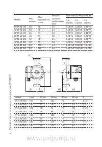
Страница 4 - Технические характеристики

5 Те хническая по дд ер жка — + 7 495 734 91 97 Технические характеристики Рабочие жидкости Вода малой жесткости, маловязкие, неагрессивные и невзрывоопасные жидкости без твердых и волокнистых включений, а также примесей, содержащих минеральные масла Максимальное содержание этиленгликоля 50%. Необхо...

Характеристики

Другие модели - Насосы UNIPUMP

Все насосы UNIPUMP