Thermex Nova 50V - Инструкция по эксплуатации

Thermex Nova 50V

Водонагреватель Thermex Nova 50V - инструкция пользователя по применению, эксплуатации и установке на русском языке. Мы надеемся, она поможет вам решить возникшие у вас вопросы при эксплуатации техники.

Если остались дополнительные вопросы — свяжитесь с нами через контактную форму.

1 Страница 1
2 Страница 2
3 Страница 3
4 Страница 4
5 Страница 5
6 Страница 6
7 Страница 7
8 Страница 8
9 Страница 9
10 Страница 10
11 Страница 11
12 Страница 12
13 Страница 13
14 Страница 14
15 Страница 15
16 Страница 16
17 Страница 17
18 Страница 18
19 Страница 19
20 Страница 20
21 Страница 21
22 Страница 22
23 Страница 23
24 Страница 24
25 Страница 25
26 Страница 26
27 Страница 27
28 Страница 28
29 Страница 29
30 Страница 30
31 Страница 31
32 Страница 32
33 Страница 33
34 Страница 34
35 Страница 35
36 Страница 36
37 Страница 37
38 Страница 38
39 Страница 39
40 Страница 40
Страница: / 40

Содержание:

  • Страница 3 – Описание Рис
  • Страница 7 – Гц; ВНИМАНИЕ
  • Страница 9 – Подключение к электросети
  • Страница 13 – комплекта поставки ЭВН.; Утилизация; ертификат No ТС; Транспортировка и хранение электроводонагревателей
  • Страница 39 – Warranty certificates /
Загрузка инструкции

ELECTRIC

STORAGE

WATER HEATER

RU

EN

KZ

UA

NOVA

Series:

Models:

Nova 30 – 80 V Slim
Nova 50 – 150 V

"Загрузка инструкции" означает, что нужно подождать пока файл загрузится и можно будет его читать онлайн. Некоторые инструкции очень большие и время их появления зависит от вашей скорости интернета.

Краткое содержание

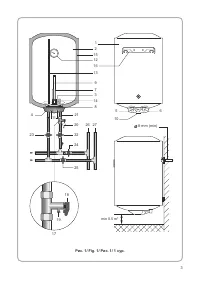
Страница 3 - Описание Рис

Вентиль подачи горячей воды / Hot water inlet valve / Вентиль подачі гарячої води / Ыстық су жеткізетін вентиль Запорный вентиль холодной воды / Cold water cut-off valve / Запірний вентиль холодної води / Салқын судың ысырмалы вентилі Запорный вентиль горячей воды / Hot water cut-off valve / Запірни...

Страница 7 - Гц; ВНИМАНИЕ

RU Информация о месте нанесения и способе определения даты изготовления: Дата выпуска изделия закодирована в уникальном серийном номере, расположенном на идентификационной табличке (стикере), расположенной в нижней части на корпусе изделия. Серийный номер изделия состоит из тринадцати цифр. Третья и...

Страница 9 - Подключение к электросети

Ручка ( 18 ) предназначена для открытия клапана ( 17 ). Необходимо следить, чтобы во время работы водонагревателя эта ручка находилась в положении, закрывающем слив воды из бака. Подключение к водопроводной системе производится в соответствии с ( Рис. 1 ) при помощи медных, пластмассовых труб или сп...

Характеристики

Другие модели - Водонагреватели Thermex

Все водонагреватели Thermex