Thermex ES 40 V/H - Инструкция по эксплуатации

Thermex ES 40 V/H

Водонагреватель Thermex ES 40 V/H - инструкция пользователя по применению, эксплуатации и установке на русском языке. Мы надеемся, она поможет вам решить возникшие у вас вопросы при эксплуатации техники.

Если остались дополнительные вопросы — свяжитесь с нами через контактную форму.

1 Страница 1
2 Страница 2
3 Страница 3
4 Страница 4
5 Страница 5
6 Страница 6
7 Страница 7
8 Страница 8
9 Страница 9
10 Страница 10
11 Страница 11
Страница: / 11

Содержание:

  • Страница 2 – Описание Рис
  • Страница 4 – Описание Ри; Комплект поставки; Назначение
  • Страница 6 – Модель ЭВН; Подключение к водопроводу
  • Страница 10 – Транспортировка и хранение электроводонагревателей; Гарантия изготовителя; RU C; mail
Загрузка инструкции

THERMEX

CHAMPION

THERMEX CHAMPION SLIM

Models:

ER 50

V/H

ER 80

V/H

E

R

10

0 V/H

ER 120

V/H

ER 150

V/H

Э Л Е К Т Р И Ч Е С К И Й
Н А К О П И Т Е Л Ь Н Ы Й
ВОДОНАГРЕВАТЕЛЬ

Э Л Е К Т Р И Ч Е С К И Й
Н А К О П И Т Е Л Ь Н Ы Й
ВОДОНАГРЕВАТЕЛЬ

ELECTRIC

STORAGE

WATER HEATER

U S E R M A N U A L

U S E R M A N U A L

П О Э К С П Л У А Т А Ц И И

Р У К О В О Д С Т В О

П О Э К С П Л У А Т А Ц И И

Р У К О В О Д С Т В О

Series:

ES 30

V/H

ES 40

V/H

ES

5

0 V/H

ES 60

V/H

ES 65

V/H

ES 70

V/H

ES 80

V/H

"Загрузка инструкции" означает, что нужно подождать пока файл загрузится и можно будет его читать онлайн. Некоторые инструкции очень большие и время их появления зависит от вашей скорости интернета.

Краткое содержание

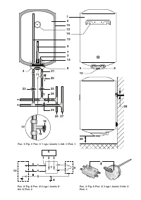
Страница 2 - Описание Рис

1 2 151216 13 9 73 14 8 11 4 5 10 6 20 21 22 23 24 25 26 27 18 19 17 29 28 Рис . 1/ Fig. 1/ Рис . 1/ 1 сур ./ Joonis 1./ Att. 1/ Pieš. 1 3 3 5 5 4 4 2 2 9 9 10 10 8 8 7 7 6 6 1 1 1 1 Рис. 2/ Fig. 2/ Рис. 2/ 2 сур./ Joonis 2 / Att. 2/ Pieš. 2 Рис. 3/ Fig. 3/ Рис. 3/ 3 сур./ Joonis 3/ Att. 3/ Pieš. 3 ...

Страница 4 - Описание Ри; Комплект поставки; Назначение

Вход холодной воды/ Cold water inlet / Вхід холодної води/ Салқын су кірісі / Külma vee sisend/ Aukstā ūdens ieeja/ Šalto vandens įėjimas Вентиль подачи холодной воды/ Cold water inlet valve / Вентиль подачі холодної води/ Салқын су жеткізетін вентиль / Külma vee ventiil/ Aukstā ūdens padeves ventil...

Страница 6 - Модель ЭВН; Подключение к водопроводу

На съемном фланце смонтированы: трубчатый электронагреватель (ТЭН) (7) , термостат ( 8 ) и магниевый анод ( 9 ). ТЭН служит для нагрева воды, а термостат обеспечивает возможность регулировки температуры нагрева до +74°С (±5°С ) . Магниевый анод предназначен для нейтрали- зации воздействия электрохим...

Характеристики

Другие модели - Водонагреватели Thermex

Все водонагреватели Thermex