ТЕРМОФОР Титан 20 ТФ29752 - Инструкция по эксплуатации

ТЕРМОФОР Титан 20 ТФ29752

Котел ТЕРМОФОР Титан 20 ТФ29752 - инструкция пользователя по применению, эксплуатации и установке на русском языке. Мы надеемся, она поможет вам решить возникшие у вас вопросы при эксплуатации техники.

Если остались дополнительные вопросы — свяжитесь с нами через контактную форму.

1 Страница 1
2 Страница 2
3 Страница 3
4 Страница 4
5 Страница 5
6 Страница 6
7 Страница 7
8 Страница 8
9 Страница 9
10 Страница 10
11 Страница 11
12 Страница 12
13 Страница 13
14 Страница 14
15 Страница 15
16 Страница 16
17 Страница 17
18 Страница 18
Страница: / 18

Содержание:

  • Страница 4 – нет
  • Страница 9 – дверцу
  • Страница 11 – или с привлечением специалистов.; Таблица возможных неисправностей и методов их устранения; предохранительными устройствами.
  • Страница 12 – КОМПЛЕКСТНОСТЬ ПОСТАВКИ
  • Страница 13 – Гарантийные обязательства
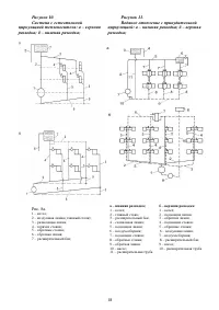
  • Страница 14 – системе отопления; Рисунок 3 Размеры и подключения
  • Страница 18 – б – верхняя разводка:
Загрузка инструкции



Руководство по монтажу и эксплуатации.

Паспорт

КОТЁЛ ОТОПИТЕЛЬНЫЙ

«ТИТАН»

























"Загрузка инструкции" означает, что нужно подождать пока файл загрузится и можно будет его читать онлайн. Некоторые инструкции очень большие и время их появления зависит от вашей скорости интернета.

Краткое содержание

Страница 4 - нет

4 ВВЕДЕНИЕ Уважаемый потребитель! Завод постоянно ведет работу по усовершенствованию конструкции и внешнему оформлению котла, поэтому в «Руководстве по монтажу и эксплуатации» могут быть не отражены некоторые изменения, не влияющие на технические характеристики . Настоящее руководство по эксплуатаци...

Страница 9 - дверцу

9 С целью предотвращения образования накипи на нагреваемых поверхностях рубашки котла необходимо проведение химической обработки воды. Выбор способа обработки воды для питания котлов и системы отопления должен производиться специализированной (проектной, наладочной) организацией. Вода для подпитки о...

Страница 11 - или с привлечением специалистов.; Таблица возможных неисправностей и методов их устранения; предохранительными устройствами.

11 4. ТЕКУЩИЙ РЕМОНТ Допускается диагностику и устранение неисправности производить самостоятельно или с привлечением специалистов. 4.1 Таблица возможных неисправностей и методов их устранения Возможные неисправности Причина неисправности Метод устранения Кто устраняет Температура воды в котле 95оС,...

Характеристики

Другие модели - Котлы ТЕРМОФОР