Телевизоры Digma DM-LED43F302BT2S - инструкция пользователя по применению, эксплуатации и установке на русском языке. Мы надеемся, она поможет вам решить возникшие у вас вопросы при эксплуатации техники.
Если остались вопросы, задайте их в комментариях после инструкции.
"Загружаем инструкцию", означает, что нужно подождать пока файл загрузится и можно будет его читать онлайн. Некоторые инструкции очень большие и время их появления зависит от вашей скорости интернета.

11
M6x10
100x100
для 32’’
200x100
для 39’’, 43’’
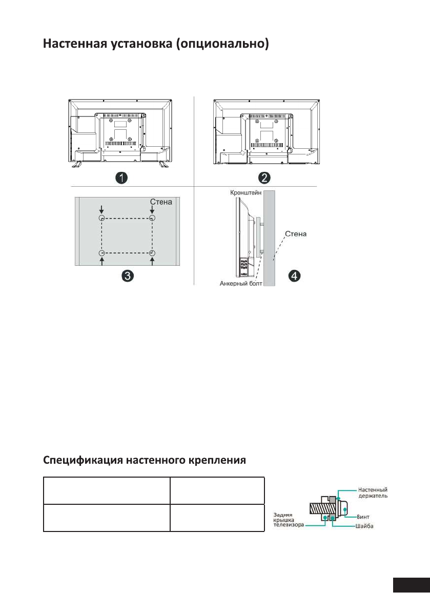
Перед установкой необходимо убедиться в том, что стена соответствует требованиям
безопасности и что она пригодна для крепежных элементов из комплекта поставки
настенного кронштейна. Стена должна быть кирпичной или бетонной. Не пытайтесь
установить телевизор на недостаточно твердой стене - например, из гипсокартона или
алебастра.
Телевизор может быть установлен на стену с помощью специального настенного
кронштейна (не входит в комплект поставки). Перед установкой телевизора на стену
необходимо снять стандартную подставку.
1. Положите телевизор экраном вниз на мягкую поверхность, чтобы предотвратить его
повреждение.
2. Используя отвертку, открутите винты и снимите стандартную подставку в нижней части
телевизора (1).
3. Разметьте карандашом расстояние между отверстиями для винтов в соответствии с
размерами кронштейна (2, 3).
4. Просверлите в стене отверстия и вставьте 4 анкерных болта для крепления (4).
5. Закрутите винты на задней поверхности телевизора для фиксации кронштейна и
повесьте конструкцию на стену.
Схема расположения
настенных отверстий (мм)
Размер болта для
настенного крепления
Примечания:
• Схема выше дана только для справки.
• Для крепления используйте кронштейны, отвечающие стандарту VESA.