Телевизоры Sony KDL-55EX505 - инструкция пользователя по применению, эксплуатации и установке на русском языке. Мы надеемся, она поможет вам решить возникшие у вас вопросы при эксплуатации техники.
Если остались вопросы, задайте их в комментариях после инструкции.
"Загружаем инструкцию", означает, что нужно подождать пока файл загрузится и можно будет его читать онлайн. Некоторые инструкции очень большие и время их появления зависит от вашей скорости интернета.

19
RU
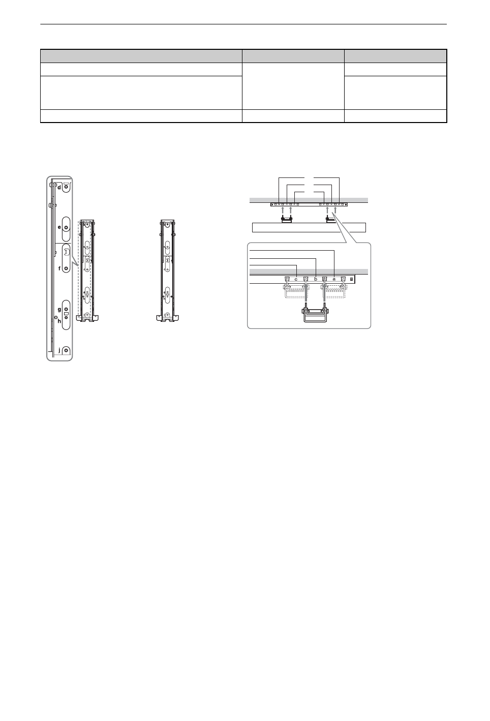
Схема/таблица расположения винтов и скоб
Название модели
Положение винтов
Положение скоб
KDL-55EX505
d, g
a
KDL-46HX705/46EX505
KDL-40HX705/40EX508/40EX505
KDL-37EX505/37EX504
b
KDL-32EX508/32EX505/32EX504
e, g
c
Положение винтов
При установке монтажной скобы на
телевизор.
Положение скоб
При установке телевизора на опорный
кронштейн.
b
a
c
Содержание
- 2 Введение
- 3 Содержание; Настройка; Проверка принадлежностей; Винты для сборки подставки (M5
- 5 Рекомендации по разъему типа F
- 6 отверстие под винт на телевизоре.; Группирование кабелей
- 7 Нажмите кнопку; Автонастройка спутника:; Если
- 8 Используется; “Полное сканирование”:; при
- 9 Выкрутите винты, показанные стрелками
- 10 Просмотр телевизора; Просмотр программ; Кнопка HOME; На цифровой кнопке; AUDIO; ENERGY; Выберите телевизионный канал.; в цифровом
- 11 Использование i-Manual; Поиск и устранение неисправностей.; С помощью кнопок; опо
- 12 Поиск и устранение неисправностей; Если мигает индикатор; Подсчитайте, сколько раз мигает индикатор; Если индикатор; Изображение; TV
- 14 Технические характеристики
- 16 ENERGY SAVING SWITCH
- 18 Таблица установочных размеров телевизора
- 19 Схема/таблица расположения винтов и скоб; Положение винтов
- 20 Кабель питания
- 21 Примечания; Предупреждение
- 22 Батарейки; Утилизация телевизора












