Телевизоры Sony KDL-46HX700 - инструкция пользователя по применению, эксплуатации и установке на русском языке. Мы надеемся, она поможет вам решить возникшие у вас вопросы при эксплуатации техники.
Если остались вопросы, задайте их в комментариях после инструкции.
"Загружаем инструкцию", означает, что нужно подождать пока файл загрузится и можно будет его читать онлайн. Некоторые инструкции очень большие и время их появления зависит от вашей скорости интернета.

17
RU
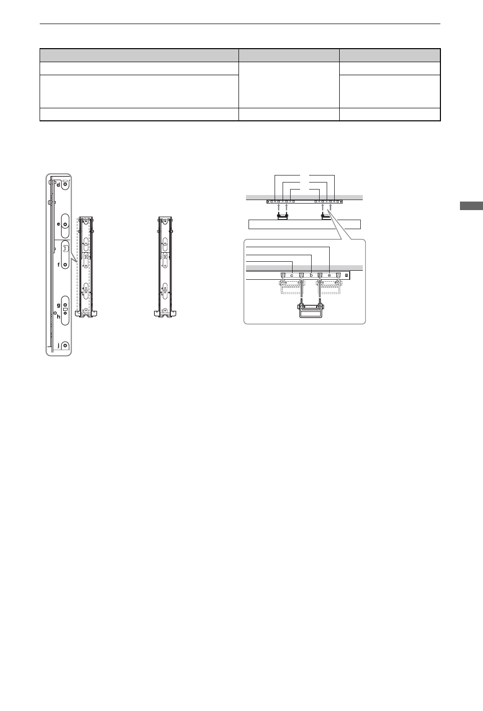
Схема/таблица расположения винтов и скоб
Название модели
Положение винтов
Положение скоб
KDL-55EX500
d, g
a
KDL-46HX700/46EX501/46EX500
KDL-40HX701/40HX700/40EX501/40EX500
KDL-37EX500
b
KDL-32EX501/32EX500
e, g
c
Положение винтов
При установке монтажной скобы на
телевизор.
Положение скоб
При установке телевизора на опорный
кронштейн.
b
a
c
Д
опо
лнит
ель
н
ые
св
еден
ия
Содержание
- 3 Содержание; Настройка; Проверка принадлежностей; Винты для сборки подставки (M5
- 6 отверстие под винт на телевизоре.; Группирование кабелей
- 7 ENERGY SAVING SWITCH; Нажмите кнопку; Выкрутите винты, показанные стрелками
- 8 Просмотр телевизора; Просмотр программ; Кнопка HOME; На цифровой кнопке; AUDIO; Выберите телевизионный канал.; в цифровом
- 9 Использование i-Manual; Поиск и устранение неисправностей.; С помощью кнопок; Про
- 10 Поиск и устранение неисправностей; Если мигает индикатор; Подсчитайте, сколько раз мигает индикатор; Если индикатор; TV
- 11 ENERGY; опо
- 12 Технические характеристики
- 16 Таблица установочных размеров телевизора
- 17 Схема/таблица расположения винтов и скоб; Положение винтов
- 18 Кабель питания
- 19 Примечания; Предупреждение
- 20 Батарейки; Утилизация телевизора












