Телевизоры Sony KDL-40P5650 - инструкция пользователя по применению, эксплуатации и установке на русском языке. Мы надеемся, она поможет вам решить возникшие у вас вопросы при эксплуатации техники.
Если остались вопросы, задайте их в комментариях после инструкции.
"Загружаем инструкцию", означает, что нужно подождать пока файл загрузится и можно будет его читать онлайн. Некоторые инструкции очень большие и время их появления зависит от вашей скорости интернета.

32
RU
KDL-40P36/P56/S56xx
KDL-37P36/P56/S56xx
KDL-32P35/P36/P55/P56/S55/S56xx
KDL-26P55/S55xx
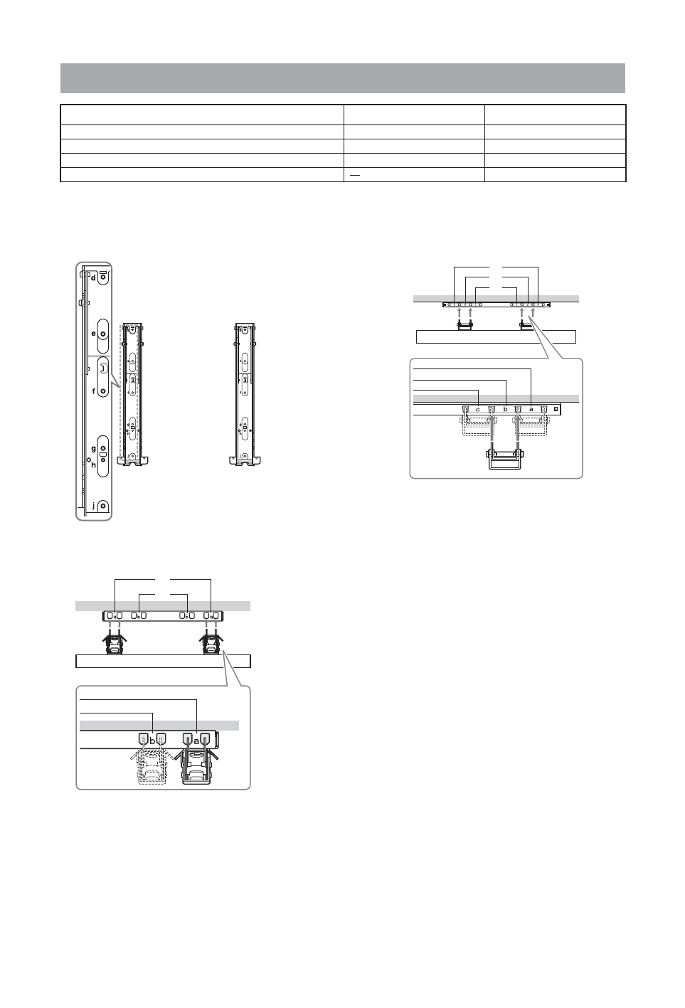
Схема и таблица расположения скоб и винтов
Название модели
Расположение винтов
Расположение скоб
KDL-40P36/P56/S56xx
d, g
b
KDL-37P36/P56/S56xx
d, g
b
KDL-32P35/P36/P55/P56/S55/S56xx
e, g
c
KDL-26P55/S55xx
a
Расположение винтов
Расположение скоб
b
a
c
Расположение скоб
b
a












