Телевизоры Samsung UE75MU7000UXRU - инструкция пользователя по применению, эксплуатации и установке на русском языке. Мы надеемся, она поможет вам решить возникшие у вас вопросы при эксплуатации техники.
Если остались вопросы, задайте их в комментариях после инструкции.
"Загружаем инструкцию", означает, что нужно подождать пока файл загрузится и можно будет его читать онлайн. Некоторые инструкции очень большие и время их появления зависит от вашей скорости интернета.

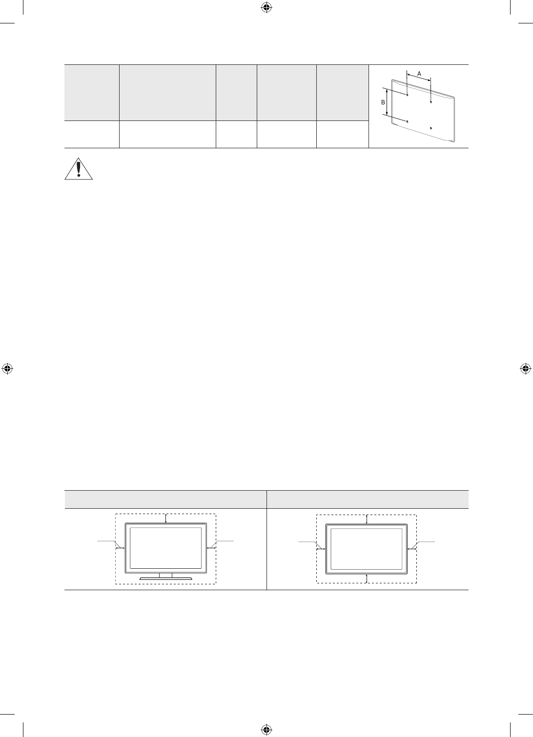
Размер
телевизора в
дюймах
Параметры отверстий
для винтов стандарта
VESA, в миллиметрах
(A × B)
C (мм
)
Стандартный
винт
Количество
49 ~ 75
400 x 400
43 ~ 45
M8
4
Не выполняйте установку набора для настенного монтажа, когда телевизор включен. Это может
привести к травме вследствие поражения током.
•
Не используйте слишком длинные винты или винты, не соответствующие стандарту VESA.
Использование винтов длиннее стандартного размера может привести к повреждению внутренних
элементов телевизора.
•
Длина винтов для настенного крепления, не соответствующая стандарту VESA, может отличаться в
зависимости от технических характеристик настенного крепления.
•
Не затягивайте винты слишком сильно. Это может повредить устройство или стать причиной его падения
и привести к травме. Samsung не несет ответственности за подобные несчастные случаи.
•
Samsung не несет ответственности за повреждение устройства или травмы, полученные при
использовании настенного крепления, не соответствующего стандартам VESA или не предназначенного
для этих целей, а также в случае несоблюдения инструкций по установке устройства.
•
Не устанавливайте телевизор под наклоном более 15 градусов.
•
Установку телевизора на стену всегда следует выполнять вдвоем.
•
При установке телевизора на стену настоятельно рекомендуется установить его в горизонтальном
положении.
Обеспечение достаточной вентиляции для телевизора
При установке телевизора выдерживайте расстояние не менее 10 см между телевизором и другими
объектами (стенами помещения, стенками шкафов и т. д.) для обеспечения достаточной вентиляции.
Отсутствие достаточной вентиляции может стать причиной возгорания или поломки изделия из-за
перегрева.
При установке телевизора на подставку или настенное крепление используйте только те детали, которые
поставляются Samsung Electronics. При использовании деталей других производителей могут возникнуть
проблемы с установкой изделия, кроме того, изделие может упасть и нанести травму.
Установка на подставку
Установка на настенное крепление
10
см
10
см
10
см
10
см
10
см
10
см
10
см
Русский - 8
Содержание
- 2 Знакомство с функциями, упрощающими работу с электронным; Знакомство с функциями кнопок на страницах электронного
- 3 Предупреждение! Важные указания по
- 5 Содержание
- 6 1 Что входит в комплект?
- 7 2 Установка телевизора; Монтаж телевизора на стене
- 8 Обеспечение достаточной вентиляции для телевизора
- 10 Предотвращение падения телевизора
- 11 3 Интеллектуальный пульт ДУ Samsung
- 12 Установка батарей в интеллектуальный пульт ДУ Samsung
- 13 Использование руководства ТВ-контроллера; 4 Исходная настройка
- 14 5 Подключение к сети; Беспроводное сетевое соединение; Проводное сетевое соединение
- 15 6 Устранение неисправностей и; Поиск и устранение неисправностей; Телевизор не включается.
- 16 Прерывается соединение Wi-Fi
- 17 Что такое удаленная поддержка?; Как работает удаленная поддержка?; Датчик экономного режима и яркость экрана
- 19 7 Технические характеристики и прочая; Технические характеристики
- 20 Рекомендация – только для стран ЕС
- 22 Режим ожидания; Знак имеет форму квадрата













