Телевизоры Samsung UE65MU9000U - инструкция пользователя по применению, эксплуатации и установке на русском языке. Мы надеемся, она поможет вам решить возникшие у вас вопросы при эксплуатации техники.
Если остались вопросы, задайте их в комментариях после инструкции.
"Загружаем инструкцию", означает, что нужно подождать пока файл загрузится и можно будет его читать онлайн. Некоторые инструкции очень большие и время их появления зависит от вашей скорости интернета.

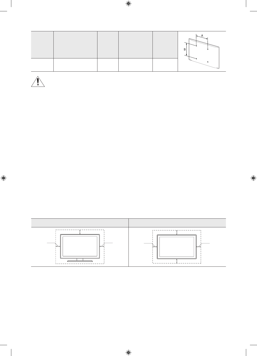
Розмір
телевізора
в дюймах
Характеристики
отворів для гвинтів
VESA (A * B) у
міліметрах
C (мм
)
Стандартний
гвинт
Кількість
55 ~ 65
400 x 400
8 ~ 12
M8
4
Не встановлюйте комплект настінного кріплення, коли телевізор увімкнено. Це може призвести
до травмування користувача внаслідок ураження електричним струмом.
•
Не використовуйте гвинти, довші за стандартні розміри або які не відповідають технічним
характеристикам VESA. Надто довгі гвинти можуть завдати пошкоджень внутрішнім деталям виробу.
•
Для настінних кріплень, які не відповідають стандартним технічним характеристикам VESA, розмір
гвинтів може відрізнятися залежно від характеристик настінного кріплення.
•
Не закручуйте гвинти надто сильно. Так можна пошкодити пристрій або спричинити його падіння,
що може призвести до травмування користувача. Компанія Samsung не несе відповідальності за такі
випадки.
•
Компанія Samsung не несе відповідальності за пошкодження виробу або отримання травм користувачем
у разі використання кріплення, іншого аніж VESA, або будь-якого невідповідного кріплення, а також у
випадку недотримання користувачем вказівок щодо встановлення виробу.
•
Не монтуйте телевізор із нахилом понад 15 градусів.
•
Для встановлення телевізора на стіні потрібно двоє людей.
Забезпечення належної вентиляції для телевізора
Встановлюючи телевізор, залиште відстань принаймні 10 см між телевізором та іншими предметами (стінами,
стінками шафок тощо) для забезпечення належної вентиляції. Недотримання цієї вимоги може призвести до
пожежі чи проблем із виробом внаслідок підвищення внутрішньої температури виробу.
Встановлюючи телевізор на підставці чи настінному кріпленні, використовуйте лише деталі, які надаються
компанією Samsung Electronics. Використання деталей, наданих іншим виробником, може призвести до
проблем із виробом чи травмування користувача через падіння виробу.
Встановлення на підставці
Встановлення на настінному кріпленні
10
см
10
см
10
см
10
см
10
см
10
см
10
см
Встановлення телевізора на підставці
Упевніться, що наявні усі зображені компоненти, і що ви зібрали підставку, дотримуючись вказівок зі збору.
Українська - 8
Українська - 9
Содержание
- 2 Знакомство с функциями кнопок на страницах электронного; Перед изучением этого руководства
- 3 Предупреждение! Важные указания по
- 5 Содержание
- 6 1 Что входит в комплект?
- 7 2 Установка телевизора; Монтаж телевизора на стене
- 8 Обеспечение достаточной вентиляции для телевизора
- 9 Меры предосторожности: Надежное крепление телевизора к стене; Предотвращение падения телевизора
- 10 3 Интеллектуальный пульт ДУ Samsung
- 11 Установка батарей в интеллектуальный пульт ДУ Samsung
- 12 Использование руководства ТВ-контроллера; 4 Исходная настройка
- 13 5 Подключение к сети; Беспроводное сетевое соединение; Проводное сетевое соединение
- 14 Поиск и устранение неисправностей; Телевизор не включается.; 6 Устранение неисправностей и
- 15 Прерывается соединение Wi-Fi
- 16 Что такое удаленная поддержка?; Как работает удаленная поддержка?; Датчик экономного режима и яркость экрана
- 18 Технические характеристики; Условия окружающей среды; 7 Технические характеристики и прочая
- 19 Рекомендация – только для стран ЕС
- 21 Режим ожидания; Знак имеет форму квадрата













