Телевизоры Samsung UE49MU7000U - инструкция пользователя по применению, эксплуатации и установке на русском языке. Мы надеемся, она поможет вам решить возникшие у вас вопросы при эксплуатации техники.
Если остались вопросы, задайте их в комментариях после инструкции.
"Загружаем инструкцию", означает, что нужно подождать пока файл загрузится и можно будет его читать онлайн. Некоторые инструкции очень большие и время их появления зависит от вашей скорости интернета.

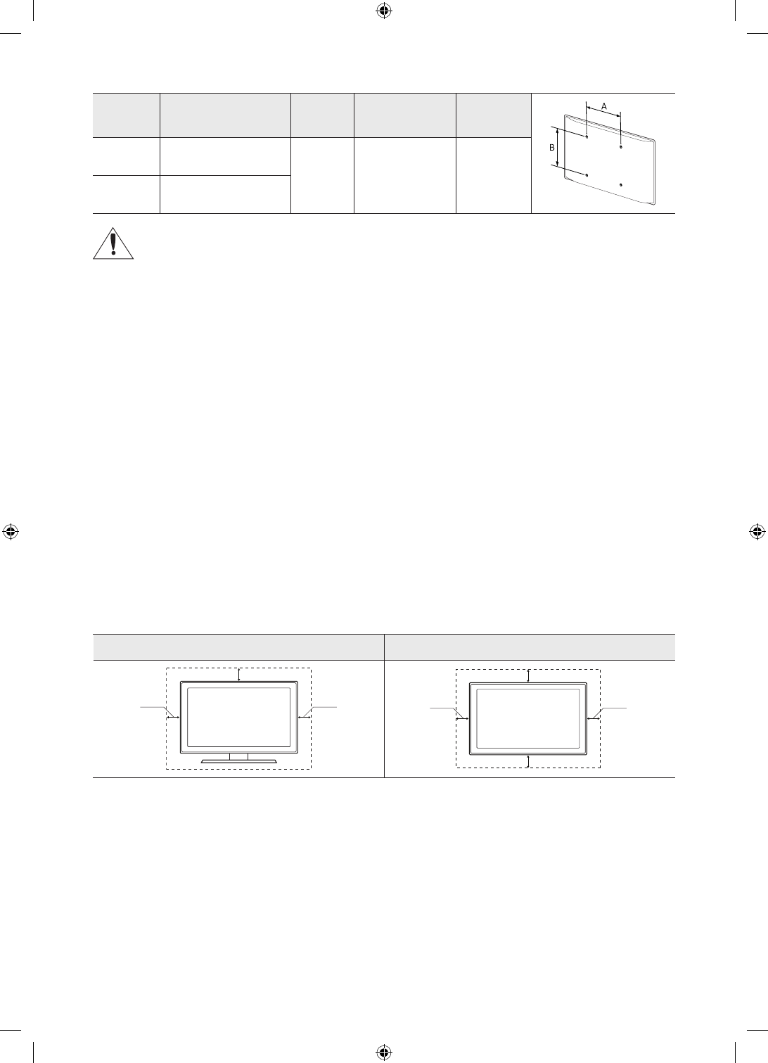
TV size in
inches
VESA screw hole specs
(A * B) in millimetres
C (mm
)
Standard Screw
Quantity
49 ~ 75
400 x 400
43 ~ 45
M8
4
82
600 x 400
Do not install your wall mount kit while your TV is turned on. This may result in personal injury from
electric shock.
•
Do not use screws that are longer than the standard dimension or do not comply with the VESA standard screw
specifications. Screws that are too long may cause damage to the inside of the TV set.
•
For wall mounts that do not comply with the VESA standard screw specifications, the length of the screws may
differ depending on the wall mount specifications.
•
Do not fasten the screws too firmly. This may damage the product or cause the product to fall, leading to
personal injury. Samsung is not liable for these kinds of accidents.
•
Samsung is not liable for product damage or personal injury when a non-VESA or non-specified wall mount is
used or when the consumer fails to follow the product installation instructions.
•
Do not mount the TV at more than a 15 degree tilt.
•
Always have two people mount the TV onto a wall.
•
If you wall mount your TV, we strongly recommend mounting it horizontally (in landscape orientation).
Providing proper ventilation for your TV
When you install your TV, maintain a distance of at least 10 cm between the TV and other objects (walls, cabinet
sides, etc.) to ensure proper ventilation. Failing to maintain proper ventilation may result in a fire or a problem with
the product caused by an increase in its internal temperature.
When you install your TV with a stand or a wall mount, we strongly recommend you use parts provided by Samsung
Electronics only. Using parts provided by another manufacturer may cause difficulties with the product or result in
injury caused by the product falling.
Installation with a stand
Installation with a wall mount
10
cm
10
cm
10
cm
10
cm
10
cm
10
cm
10
cm
English - 8
English - 9
Содержание
- 2 Знакомство с функциями, упрощающими работу с электронным; Знакомство с функциями кнопок на страницах электронного
- 3 Предупреждение! Важные указания по
- 5 Содержание
- 6 1 Что входит в комплект?
- 7 2 Установка телевизора; Монтаж телевизора на стене
- 8 Обеспечение достаточной вентиляции для телевизора
- 10 Предотвращение падения телевизора; Прокладка кабелей
- 11 3 Интеллектуальный пульт ДУ Samsung
- 12 Установка батарей в интеллектуальный пульт ДУ Samsung
- 13 Использование руководства ТВ-контроллера; 4 Исходная настройка
- 14 5 Подключение к сети; Беспроводное сетевое соединение; Проводное сетевое соединение
- 15 6 Устранение неисправностей и; Поиск и устранение неисправностей; Телевизор не включается.
- 16 Прерывается соединение Wi-Fi
- 17 Что такое удаленная поддержка?; Как работает удаленная поддержка?; Датчик экономного режима и яркость экрана
- 19 7 Технические характеристики и прочая; Технические характеристики
- 20 Условия окружающей среды
- 21 Рекомендация – только для стран ЕС
- 23 Режим ожидания; Знак имеет форму квадрата
- 98 Краткое руководство; II
- 100 IV
- 103 Подключение интеллектуального пульта ДУ Samsung к
- 104 Использование Smart Hub
- 105 APPS
- 106 Использование функций голосового управления; Запуск Voice Interaction (Голосового взаимодействия)
- 109 Обновление программного обеспечения телевизора; Обновление через Интернет; Обновление через устройство USB; Автоматическое обновление ПО телевизора
- 110 Получение поддержки по каналу удаленного управления
- 111 Поиск контактной информации службы; Запрос на обслуживание
- 112 Подключения
- 114 Подключение к сети Интернет; Подключение к Интернету; Установление проводного соединения с сетью Интернет
- 115 Беспроводное соединение
- 116 Проверка состояния сетевого подключения; Сброс сети; Изменение названия телевизора в списке сети; Устранение проблем с подключением к сети Интернет; Устранение проблем с проводным подключением к сети Интернет; Сетевой кабель не найден
- 117 Устранение проблем с беспроводным подключением к сети Интернет
- 118 Сбой автоматической настройки IP-адреса; Не удается подключиться к сети; Выполнено подключение к локальной сети, но не к сети Интернет; Настройка сети выполнена, но нет подключения к сети Интернет; Подключение видеоустройств; Подключение через кабель HDMI; HDMI IN
- 121 Подключения аудиовхода и аудиовыхода; Подключение через цифровой (оптический) аудиокабель; Подключение через беспроводную сеть
- 122 Подключение устройств Bluetooth; Подключение компьютера
- 123 Подключение мобильного устройства
- 124 Управление мобильным устройством; Переключение между подключенными к телевизору; Изменение входного сигнала
- 125 Изменение названия и значка внешнего устройства; Правка
- 126 Использование дополнительных функций; Примечания по подключению; Примечания относительно подключения через порт HDMI
- 127 Примечания по подключению для аудиоустройств
- 128 Примечания по подключению для компьютеров; Примечания относительно подключения мобильных устройств
- 129 Пульт ДУ и периферийные устройства; Об интеллектуальном пульте ДУ Samsung
- 133 Подключение к интеллектуальному пульту ДУ Samsung; Управление внешними устройствами с помощью
- 135 Управление телевизором с помощью клавиатуры; Подключение USB-клавиатуры; Подключение клавиатуры Bluetooth; Использование клавиатуры
- 136 Настройка клавиатуры; Ввод текста с помощью экранной QWERTY-клавиатуры
- 138 Интеллектуальные функции
- 139 Отображение начального экрана
- 142 Автоматический запуск службы Smart Hub; Автоматический запуск последнего использованного приложения; Тестирование соединений Smart Hub
- 143 Использование учетной записи Samsung; Создание учетной записи Samsung и управление ею; Создание учетной записи; Создание учетной записи Samsung с помощью учетной записи PayPal
- 144 Вход в учетную запись Samsung; Добавление и изменение информации учетной записи Samsung
- 145 Использование службы Приложения; Поиск приложений
- 146 Установка и запуск приложения; Установка приложения; Запуск приложения
- 147 Управление приобретенными или установленными приложениями; Удаление приложения; Добавление приложений на начальный экран
- 148 Блокировка и разблокировка приложений; Перемещение приложений; Повторная установка приложения; Автоматическое обновление приложений
- 149 Использование руководства e-Manual; Запуск электронного руководства; Использование кнопок в электронном руководстве; Использование руководства Internet
- 151 Парам; Воспроизведение мультимедиа; Воспроизведение мультимедийного содержимого с устройства USB
- 152 Использование службы Music Service; Музыка
- 156 Просмотр телевизора; Обзор информации о цифровой транслируемой программе; Использование телегида; Прямой эфир
- 158 Запись программ
- 159 Настройка записи видео после ввода даты и времени; Управление настройками списка записи по расписанию; Настройка времени записи по расписанию; Просмотр записанных программ
- 160 Настройка просмотра по расписанию; Настройка просмотра по расписанию для канала; Просмотр программ по расписанию в определенный день и время
- 161 Изменение настроек просмотра по расписанию; Настройка времени просмотра по расписанию; Использование Timeshift
- 163 Использование руководства Список каналов
- 164 Редактирование каналов; Удаление зарегистрированных каналов
- 165 Создание личного списка избранного; Регистрация каналов в списке избранного; Выбор и просмотр только списков избранных каналов
- 166 Редактирование списка избранного; Добавление каналов в список избранных; Упорядочивание элементов списка избранного; Переименование списка избранного
- 167 Вспомогательные функции для просмотра; Переключение сигнала вещания; Поиск доступных каналов; Выбор параметра поиска кабельной сети
- 168 Установка времени выхода из спящего режима; Ограничение возможности просмотра определенных каналов; Изменение расширенных настроек вещания
- 169 Чтение цифрового текста; Выбор языка аудио для каналов вещания; Выбор языка
- 170 Ручная настройка сигналов вещания; Настройка цифровых каналов; Настройка аналоговых каналов
- 171 Передача списка каналов; Удаление профиля оператора CAM
- 172 Отображение меню параметров COMMON INTERFACE
- 173 Настройки изображения и звука; Настройка качества изображения; Выбор режима изображения
- 174 Изменение расширенных настроек изображения
- 176 Игры на оптимизированном экране
- 177 Дополнительные настройки изображения; Изменение размера изображения
- 178 Автоматическое изменение размера изображения; Регулировка размера изображения относительно экрана; Регулировка размера и/или положения изображения
- 179 Настройка параметров звука; Выбор режима звука
- 180 Использование дополнительных настроек звука; Выбор динамиков
- 181 Воспроизведение звука с телевизора через динамик Multiroom
- 182 Система и поддержка; Установка времени и использование таймера; Установка текущего времени; Автоматическая настройка часов
- 183 Изменение текущего времени; Использование таймеров; Выключение телевизора по таймеру
- 184 Предотвращение выгорания экрана
- 186 Защита телевизора от взлома и вредоносного кода; Использование других функций; Запуск специальных функций
- 187 Включение голосовых подсказок для людей с нарушением зрения; Описание аудио
- 188 Просмотр телепередач с субтитрами
- 189 Белый шрифт на черном фоне (высокий контраст); Увеличение шрифта (для людей с нарушениями зрения); Обучение обращению с пультом ДУ (для людей с нарушенным зрением); Информация о меню телевизора
- 190 Изменение расширенных настроек системы; Выбор языка меню; Включение/выключение индикаторов на передней панели
- 191 Восстановление заводских настроек телевизора
- 192 Автоматический запуск службы передачи данных; HbbTV
- 193 Подключение карты CI или CI+ к через гнездо COMMON INTERFACE
- 194 Использование карты CI или CI+
- 196 Стандартная страница телетекста
- 198 Диагностика проблем в работе телевизора
- 199 Проблема с изображением; Тестирование изображения
- 201 Звук слышен неотчетливо; Тестирование звука
- 202 Проблема с трансляцией
- 204 Служба передачи данных; Запись по расписанию/функция Timeshift не работает
- 207 Другие проблемы
- 209 Перед использованием функций Запись и Timeshift
- 211 Поддерживаемые параметры передачи звука
- 212 Приложения: важная информация
- 213 Прочтите перед использованием функции Internet
- 215 музыкальных файлов
- 217 Поддерживаемые форматы и разрешение изображений; Поддерживаемые форматы музыкальных файлов и кодеки
- 218 Поддерживаемые видеокодеки
- 220 Размер изображения и входящие сигналы
- 221 Установка замка для защиты от краж; Протоколы системы безопасности беспроводной сети
- 222 Поддерживаемые разрешения для входящих сигналов UHD; Если для параметра HDMI UHD Color установлено значение Выкл.
- 223 Прочтите перед подключением компьютера; IBM
- 224 VESA DMT
- 226 Ограничения при использовании соединения Bluetooth
- 227 Кнопки и функции
- 231 Подробнее об экранном меню; Использование пульта ДУ; Ориентация интеллектуального пульта ДУ Samsung
- 233 Использование меню специальных возможностей; Меню быстрого доступа к специальным возможностям
- 234 Пошаговые инструкции; Включение функции Голосовые инструкции
- 235 Включение функции Описание аудио; Знакомство с пультом ДУ
- 236 Включить функцию Голосовые инструкции:; Включить функцию Описание аудио:; Включить функцию Высокий контраст:
- 237 Просмотр телепрограмм; Включение телевизора; Переключение каналов
- 238 Ввод цифр с экрана с помощью интеллектуального пульта ДУ Samsung; Изменение громкости
- 241 Вызов списка избранных каналов
- 242 Настройка функции Просмотр по расписанию; Отмена просмотра по расписанию
- 245 Добавление каналов в список избранных (подробные инструкции)
- 247 Запись
- 249 Удаление записанной программы
- 251 Вызов начального экрана в службе Smart Hub
- 254 Использование Голосовое управление; Запуск функции Голосовое управление












