Телевизоры Samsung UE49MU6670UXRU - инструкция пользователя по применению, эксплуатации и установке на русском языке. Мы надеемся, она поможет вам решить возникшие у вас вопросы при эксплуатации техники.
Если остались вопросы, задайте их в комментариях после инструкции.
"Загружаем инструкцию", означает, что нужно подождать пока файл загрузится и можно будет его читать онлайн. Некоторые инструкции очень большие и время их появления зависит от вашей скорости интернета.

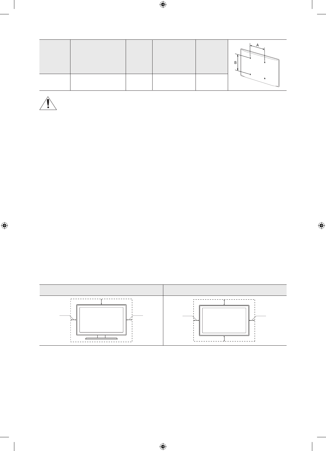
Размер
телевизора
в дюймах
Параметры отверстий
для винтов стандарта
VESA, в миллиметрах
(A × B)
C (мм
)
Стандартный
винт
Количество
49 ~ 65
400 x 400
43 ~ 45
M8
4
Не выполняйте установку набора для настенного монтажа, когда телевизор включен. Это может
привести к травме вследствие поражения током.
•
Не используйте слишком длинные винты или винты, не соответствующие стандарту VESA.
Использование винтов длиннее стандартного размера может привести к повреждению внутренних
элементов телевизора.
•
Длина винтов для настенного крепления, не соответствующая стандарту VESA, может отличаться в
зависимости от технических характеристик настенного крепления.
•
Не затягивайте винты слишком сильно. Это может повредить устройство или стать причиной его падения
и привести к травме. Samsung не несет ответственности за подобные несчастные случаи.
•
Samsung не несет ответственности за повреждение устройства или травмы, полученные при
использовании настенного крепления, не соответствующего стандартам VESA или не предназначенного
для этих целей, а также в случае несоблюдения инструкций по установке устройства.
•
Не устанавливайте телевизор под наклоном более 15 градусов.
•
Установку телевизора на стену всегда следует выполнять вдвоем.
Обеспечение достаточной вентиляции для телевизора
При установке телевизора выдерживайте расстояние не менее 10 см между телевизором и другими
объектами (стенами помещения, стенками шкафов и т. д.) для обеспечения достаточной вентиляции.
Отсутствие достаточной вентиляции может стать причиной возгорания или поломки изделия из-за
перегрева.
При установке телевизора на подставку или настенное крепление используйте только те детали, которые
поставляются Samsung Electronics. При использовании деталей других производителей могут возникнуть
проблемы с установкой изделия, кроме того, изделие может упасть и нанести травму.
Установка на подставку
Установка на настенное крепление
10
см
10
см
10
см
10
см
10
см
10
см
10
см
Русский - 8