Телевизоры Samsung UE43MU6100U - инструкция пользователя по применению, эксплуатации и установке на русском языке. Мы надеемся, она поможет вам решить возникшие у вас вопросы при эксплуатации техники.
Если остались вопросы, задайте их в комментариях после инструкции.
"Загружаем инструкцию", означает, что нужно подождать пока файл загрузится и можно будет его читать онлайн. Некоторые инструкции очень большие и время их появления зависит от вашей скорости интернета.

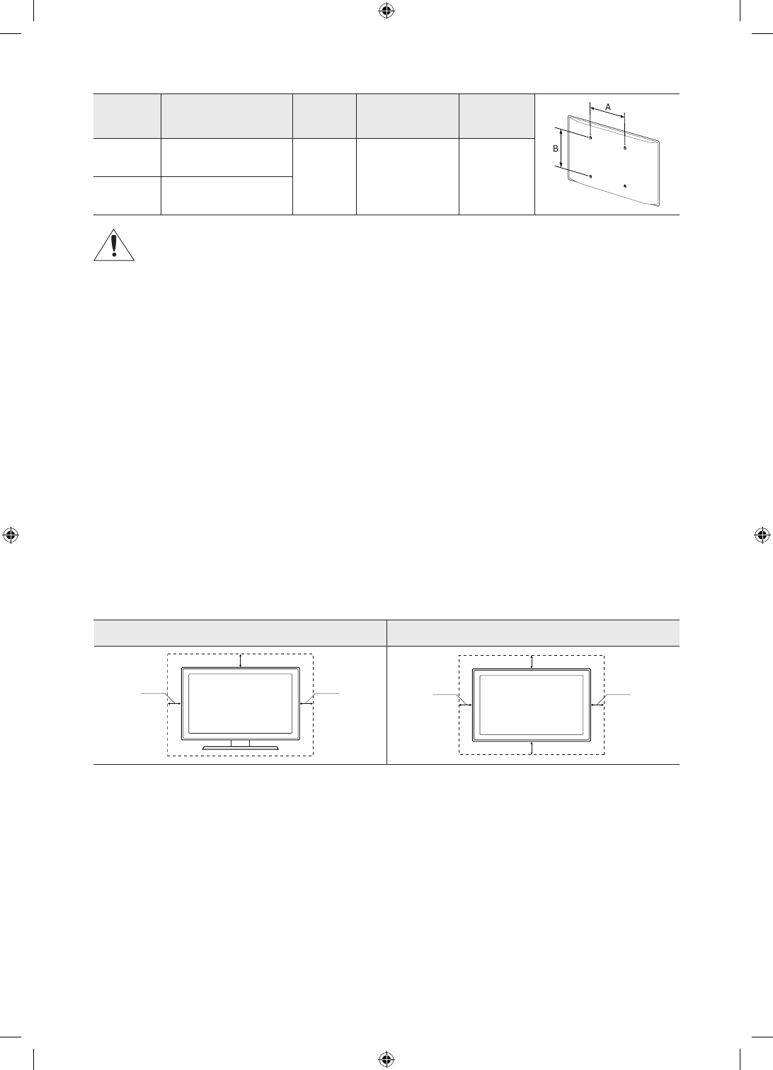
TV size in
inches
VESA screw hole specs
(A * B) in millimetres
C (mm
)
Standard Screw
Quantity
40 ~ 43
200 x 200
18 ~ 20
M8
4
50 ~ 65
400 x 400
Do not install your wall mount kit while your TV is turned on. This may result in personal injury from
electric shock.
•
Do not use screws that are longer than the standard dimension or do not comply with the VESA standard screw
specifications. Screws that are too long may cause damage to the inside of the TV set.
•
For wall mounts that do not comply with the VESA standard screw specifications, the length of the screws may
differ depending on the wall mount specifications.
•
Do not fasten the screws too firmly. This may damage the product or cause the product to fall, leading to
personal injury. Samsung is not liable for these kinds of accidents.
•
Samsung is not liable for product damage or personal injury when a non-VESA or non-specified wall mount is
used or when the consumer fails to follow the product installation instructions.
•
Do not mount the TV at more than a 15 degree tilt.
•
Always have two people mount the TV onto a wall.
Providing proper ventilation for your TV
When you install your TV, maintain a distance of at least 10 cm between the TV and other objects (walls, cabinet
sides, etc.) to ensure proper ventilation. Failing to maintain proper ventilation may result in a fire or a problem with
the product caused by an increase in its internal temperature.
When you install your TV with a stand or a wall mount, we strongly recommend you use parts provided by Samsung
Electronics only. Using parts provided by another manufacturer may cause difficulties with the product or result in
injury caused by the product falling.
Installation with a stand
Installation with a wall mount
10
cm
10
cm
10
cm
10
cm
10
cm
10
cm
10
cm
Attaching the TV to the Stand
Make sure you have all the accessories shown, and that you assemble the stand following the provided assembly
instructions.
English - 8
Содержание
- 2 Знакомство с функциями кнопок на страницах электронного; Перед изучением этого руководства
- 3 Предупреждение! Важные указания по
- 5 Содержание
- 6 1 Что входит в комплект?
- 7 2 Установка телевизора; Монтаж телевизора на стене
- 8 Обеспечение достаточной вентиляции для телевизора
- 9 Меры предосторожности: Надежное крепление телевизора к стене; Предотвращение падения телевизора
- 10 3 Интеллектуальный пульт ДУ Samsung
- 11 Установка батарей в интеллектуальный пульт ДУ Samsung
- 12 Использование руководства ТВ-контроллера; 4 Исходная настройка
- 13 5 Подключение к сети; Беспроводное сетевое соединение; Проводное сетевое соединение
- 14 Поиск и устранение неисправностей; Телевизор не включается.; 6 Устранение неисправностей и
- 15 Прерывается соединение Wi-Fi
- 16 Что такое удаленная поддержка?; Как работает удаленная поддержка?; Датчик экономного режима и яркость экрана
- 18 Технические характеристики; 7 Технические характеристики и прочая
- 19 Условия окружающей среды
- 20 Лицензии; Рекомендация – только для стран ЕС
- 22 Режим ожидания; Знак имеет форму квадрата
- 94 Краткое руководство; II
- 96 IV
- 99 Подключение интеллектуального пульта ДУ Samsung к
- 100 Использование Smart Hub; Настройки
- 101 Использование функций голосового управления; Запуск Voice Interaction (Голосового взаимодействия)
- 104 Обновление программного обеспечения телевизора; Обновление через Интернет; Обновление через устройство USB; Автоматическое обновление ПО телевизора
- 105 Получение поддержки по каналу удаленного управления
- 106 Поиск контактной информации службы; Запрос на обслуживание
- 107 Подключения
- 109 Подключение к сети Интернет; Подключение к Интернету; Установление проводного соединения с сетью Интернет
- 110 Беспроводное соединение
- 111 Проверка состояния сетевого подключения; Сброс сети; Изменение названия телевизора в списке сети; Устранение проблем с подключением к сети Интернет; Устранение проблем с проводным подключением к сети Интернет; Сетевой кабель не найден
- 112 Устранение проблем с беспроводным подключением к сети Интернет
- 113 Сбой автоматической настройки IP-адреса; Не удается подключиться к сети; Выполнено подключение к локальной сети, но не к сети Интернет; Настройка сети выполнена, но нет подключения к сети Интернет; Подключение видеоустройств; Подключение через кабель HDMI; HDMI IN
- 116 Подключения аудиовхода и аудиовыхода; Подключение через цифровой (оптический) аудиокабель; Подключение через беспроводную сеть
- 117 Подключение устройств Bluetooth; Подключение компьютера
- 118 Подключение мобильного устройства
- 119 Управление мобильным устройством; Переключение между подключенными к телевизору; Изменение входного сигнала
- 120 Изменение названия и значка внешнего устройства; Правка
- 121 Использование дополнительных функций; Примечания по подключению; Примечания относительно подключения через порт HDMI
- 122 Примечания по подключению для аудиоустройств
- 123 Примечания по подключению для компьютеров; Примечания относительно подключения мобильных устройств
- 124 Пульт ДУ и периферийные устройства; Об интеллектуальном пульте ДУ Samsung
- 128 Подключение к интеллектуальному пульту ДУ Samsung; Управление внешними устройствами с помощью
- 130 Управление телевизором с помощью клавиатуры; Подключение USB-клавиатуры; Подключение клавиатуры Bluetooth; Использование клавиатуры
- 131 Настройка клавиатуры; Ввод текста с помощью экранной QWERTY-клавиатуры
- 133 Интеллектуальные функции
- 134 Отображение начального экрана
- 135 APPS
- 137 Автоматический запуск службы Smart Hub; Автоматический запуск последнего использованного приложения; Тестирование соединений Smart Hub
- 138 Использование учетной записи Samsung; Создание учетной записи Samsung и управление ею; Создание учетной записи; Создание учетной записи Samsung с помощью учетной записи PayPal
- 139 Вход в учетную запись Samsung; Добавление и изменение информации учетной записи Samsung
- 140 Использование службы Приложения; Поиск приложений
- 141 Установка и запуск приложения; Установка приложения; Запуск приложения
- 142 Управление приобретенными или установленными приложениями; Удаление приложения; Добавление приложений на начальный экран
- 143 Блокировка и разблокировка приложений; Перемещение приложений; Автоматическое обновление приложений
- 144 Использование руководства e-Manual; Запуск электронного руководства; Использование кнопок в электронном руководстве; Использование руководства Internet
- 146 Параметры; Воспроизведение мультимедиа; Воспроизведение мультимедийного содержимого с устройства USB
- 147 Использование службы Music Service; Музыка
- 151 Просмотр телевизора; Обзор информации о цифровой транслируемой программе; Использование телегида; Прямой эфир
- 153 Запись программ
- 154 Настройка записи видео после ввода даты и времени; Управление настройками списка записи по расписанию; Настройка времени записи по расписанию; Просмотр записанных программ
- 155 Настройка просмотра по расписанию; Настройка просмотра по расписанию для канала; Просмотр программ по расписанию в определенный день и время
- 156 Изменение настроек просмотра по расписанию; Настройка времени просмотра по расписанию; Использование Timeshift
- 158 Использование руководства Список каналов
- 159 Редактирование каналов; Удаление зарегистрированных каналов
- 160 Создание личного списка избранного; Регистрация каналов в списке избранного; Выбор и просмотр только списков избранных каналов
- 161 Редактирование списка избранного; Добавление каналов в список избранных; Упорядочивание элементов списка избранного; Переименование списка избранного
- 162 Вспомогательные функции для просмотра; Переключение сигнала вещания; Поиск доступных каналов; Выбор параметра поиска кабельной сети
- 163 Установка времени выхода из спящего режима; Ограничение возможности просмотра определенных каналов; Изменение расширенных настроек вещания
- 164 Чтение цифрового текста; Выбор языка аудио для каналов вещания; Выбор языка
- 165 Ручная настройка сигналов вещания; Настройка цифровых каналов; Настройка аналоговых каналов
- 166 Передача списка каналов; Удаление профиля оператора CAM
- 167 Отображение меню параметров COMMON INTERFACE
- 168 Настройки изображения и звука; Настройка качества изображения; Выбор режима изображения
- 169 Изменение расширенных настроек изображения
- 171 Игры на оптимизированном экране
- 172 Дополнительные настройки изображения; Изменение размера изображения
- 173 Автоматическое изменение размера изображения; Регулировка размера изображения относительно экрана; Регулировка размера и/или положения изображения
- 174 Настройка параметров звука; Выбор режима звука
- 175 Использование дополнительных настроек звука; Выбор динамиков
- 176 Воспроизведение звука с телевизора через динамик Multiroom
- 177 Система и поддержка; Установка времени и использование таймера; Установка текущего времени; Автоматическая настройка часов
- 178 Изменение текущего времени; Использование таймеров; Выключение телевизора по таймеру
- 179 Предотвращение выгорания экрана
- 181 Защита телевизора от взлома и вредоносного кода; Использование других функций; Запуск специальных функций
- 182 Включение голосовых подсказок для людей с нарушением зрения; Описание аудио
- 183 Просмотр телепередач с субтитрами
- 184 Белый шрифт на черном фоне (высокий контраст); Увеличение шрифта (для людей с нарушениями зрения); Обучение обращению с пультом ДУ (для людей с нарушенным зрением); Информация о меню телевизора
- 185 Изменение расширенных настроек системы; Выбор языка меню; Включение/выключение индикаторов на передней панели
- 186 Восстановление заводских настроек телевизора
- 187 Автоматический запуск службы передачи данных; HbbTV
- 188 Подключение карты CI или CI+ к через гнездо COMMON INTERFACE
- 189 Использование карты CI или CI+
- 191 Стандартная страница телетекста
- 193 Диагностика проблем в работе телевизора
- 194 Проблема с изображением; Тестирование изображения
- 196 Звук слышен неотчетливо; Тестирование звука
- 197 Проблема с трансляцией
- 199 Служба передачи данных; Запись по расписанию/функция Timeshift не работает
- 202 Другие проблемы
- 204 Перед использованием функций Запись и Timeshift
- 206 Поддерживаемые параметры передачи звука
- 207 Приложения: важная информация
- 208 Прочтите перед использованием функции Internet
- 210 музыкальных файлов
- 212 Поддерживаемые форматы и разрешение изображений; Поддерживаемые форматы музыкальных файлов и кодеки
- 213 Поддерживаемые видеокодеки
- 215 Размер изображения и входящие сигналы
- 216 Установка замка для защиты от краж; Протоколы системы безопасности беспроводной сети
- 217 Поддерживаемые разрешения для входящих сигналов UHD; Если для параметра HDMI UHD Color установлено значение Выкл.
- 218 Прочтите перед подключением компьютера; IBM
- 219 VESA DMT
- 221 Ограничения при использовании соединения Bluetooth
- 222 Кнопки и функции
- 226 Подробнее об экранном меню; Использование пульта ДУ; Ориентация интеллектуального пульта ДУ Samsung
- 228 Использование меню специальных возможностей; Меню быстрого доступа к специальным возможностям
- 229 Пошаговые инструкции; Включение функции Голосовые инструкции
- 230 Включение функции Описание аудио; Знакомство с пультом ДУ
- 231 Включить функцию Голосовые инструкции:; Включить функцию Описание аудио:; Включить функцию Высокий контраст:
- 232 Просмотр телепрограмм; Включение телевизора; Переключение каналов
- 233 Ввод цифр с экрана с помощью интеллектуального пульта ДУ Samsung; Изменение громкости
- 236 Вызов списка избранных каналов
- 237 Настройка функции Просмотр по расписанию; Отмена просмотра по расписанию
- 240 Добавление каналов в список избранных (подробные инструкции)
- 242 Запись
- 244 Удаление записанной программы
- 246 Вызов начального экрана в службе Smart Hub
- 249 Использование Голосовое управление; Запуск функции Голосовое управление












