Телевизоры Samsung UE40NU7140U - инструкция пользователя по применению, эксплуатации и установке на русском языке. Мы надеемся, она поможет вам решить возникшие у вас вопросы при эксплуатации техники.
Если остались вопросы, задайте их в комментариях после инструкции.
"Загружаем инструкцию", означает, что нужно подождать пока файл загрузится и можно будет его читать онлайн. Некоторые инструкции очень большие и время их появления зависит от вашей скорости интернета.

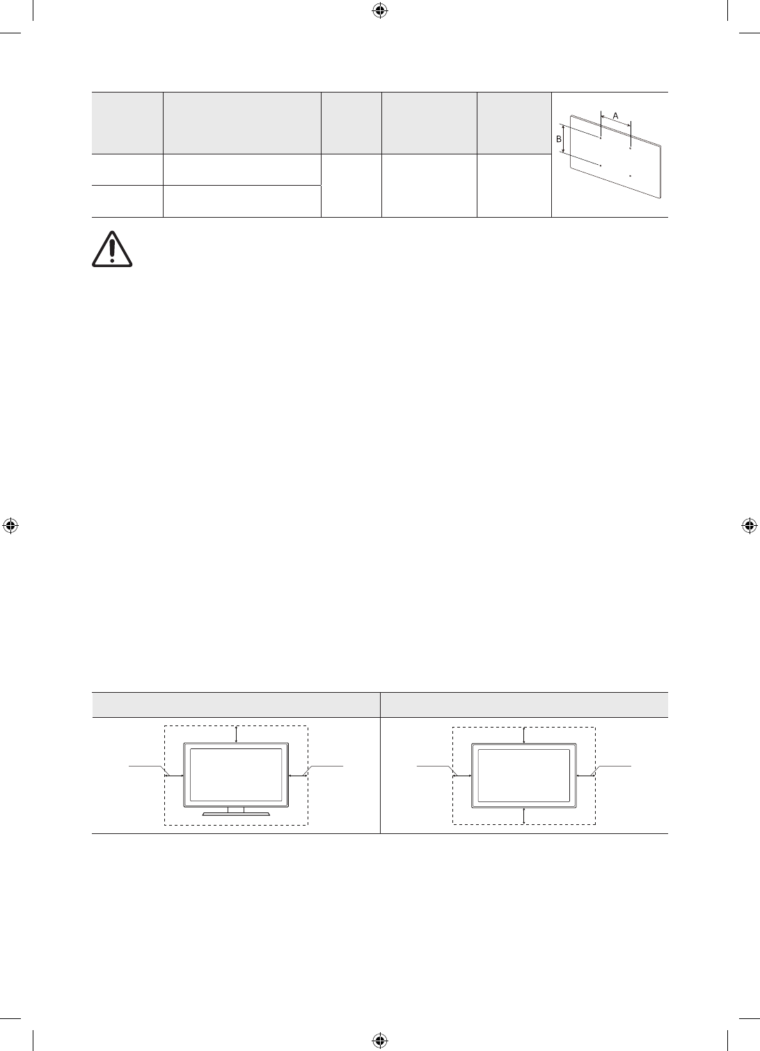
Размер
телевизора
в дюймах
Параметры отверстий для
винтов стандарта VESA, в
миллиметрах (A × B)
C (мм)
Стандартный
винт
Количество
40-55
200 x 200
43-45
M8
4
65-75
400 x 400
Не выполняйте установку набора для настенного монтажа, когда телевизор включен. Это
может привести к травме вследствие поражения током.
• Не используйте слишком длинные винты или винты, не соответствующие стандарту VESA.
Использование винтов длиннее стандартного размера может привести к повреждению внутренних
элементов телевизора.
• Длина винтов для настенного крепления, не соответствующая стандарту VESA, может отличаться в
зависимости от технических характеристик настенного крепления.
• Не затягивайте винты слишком сильно. Это может повредить устройство или стать причиной его
падения и привести к травме. Samsung не несет ответственности за подобные несчастные случаи.
• Samsung не несет ответственности за повреждение устройства или травмы, полученные
при использовании настенного крепления, не соответствующего стандартам VESA или не
предназначенного для этих целей, а также в случае несоблюдения инструкций по установке
устройства.
• Не устанавливайте телевизор под наклоном более 15 градусов.
• Установку телевизора на стену всегда следует выполнять вдвоем.
Обеспечение достаточной вентиляции для телевизора
При установке телевизора выдерживайте расстояние не менее 10 см между телевизором и другими
объектами (стенами помещения, стенками шкафов и т. д.) для обеспечения достаточной вентиляции.
Отсутствие достаточной вентиляции может стать причиной возгорания или поломки изделия из-за
перегрева.
При установке телевизора на подставку или настенное крепление используйте только те детали, которые
поставляются Samsung Electronics. При использовании деталей других производителей могут возникнуть
проблемы с установкой изделия, кроме того, изделие может упасть и нанести травму.
Установка на подставку
Установка на настенное крепление
10 см
10 см
10 см
10 см
10 см
10 см
10 см
Крепление телевизора к подставке
Убедитесь в наличии всех перечисленных принадлежностей и в том, что сборка подставки
осуществляется в соответствии с прилагающимися инструкциями по сборке.
Русский - 8
Содержание
- 2 Знакомство с функциями, упрощающими работу с электронным; Знакомство с функциями кнопок на страницах электронного
- 5 Содержание
- 6 1 Что входит в комплект?
- 7 2 Установка телевизора; Монтаж телевизора на стене
- 8 Обеспечение достаточной вентиляции для телевизора
- 9 Меры предосторожности: Надежное крепление телевизора к стене
- 10 Кнопки пульта дистанционного управления
- 11 Установка батарей в пульт дистанционного управления (Размер
- 12 4 Первоначальная настройка; Использование руководства ТВ-контроллер
- 13 5 Подключение к сети; Беспроводное сетевое соединение
- 14 Поиск и устранение неисправностей
- 16 Что такое удаленная поддержка?; Датчик экономного режима и яркость экрана
- 17 Очистка поверхности телевизора
- 18 Технические характеристики
- 19 Условия окружающей среды; Уменьшение потребления электроэнергии
- 21 Режим ожидания
- 28 Краткое руководство; Подключение интеллектуального пульта ДУ Samsung к
- 29 Использование Smart Hub; Оповещение
- 30 Искусство
- 31 Использование руководства Ambient mode; Состояния экрана в режиме Ambient mode
- 32 Изменение содержимого и настроек для Ambient mode; Настройка содержимого для Ambient mode
- 33 Настройка параметров Ambient mode; Изменение цвета фона в режиме Ambient mode
- 34 Использование руководства Ссылка
- 35 Добавление каналов; Удаление каналов
- 36 Использование голосового управления; Запуск функции Голосовое управление
- 37 Основные сведения о Гид по голосовым командам; Вот некоторые из операций, которые я могу выполнять.
- 38 Голосовое управление: важная информация; Меры предосторожности при использовании Голосовое управление
- 39 Обновление программного обеспечения телевизора; Обновление через Интернет; Обновление через устройство USB; Автоматическое обновление ПО телевизора
- 40 Поддержка; Поддержка через Удаленное управление
- 41 Поиск контактной информации службы; Запрос на обслуживание
- 42 Подключения; Источник
- 43 Подключение антенны (Антенна
- 44 Подключение к сети Интернет; Подключение к Интернету; Установление проводного соединения с сетью Интернет
- 45 Беспроводное соединение
- 46 Проверка состояния сетевого подключения; Сброс сети; Включение телевизора с помощью Мобильное устройство; Настройка подключения к сети Интернет через протокол IPv6; Настройка параметров IPv6-подключения
- 47 Проверка подключения к сети Интернет через протокол IPv6; Изменение названия телевизора в списке сети; Устранение проблем с подключением к сети Интернет; Сетевой кабель не найден
- 48 Не удается подключиться к беспроводному маршрутизатору; Сбой автоматической настройки IP-адреса; Не удается подключиться к сети; Выполнено подключение к локальной сети, но не к сети Интернет; Настройка сети выполнена, но нет подключения к сети Интернет
- 52 Подключения аудиовхода и аудиовыхода; Подключение через кабель HDMI (ARC; Подключение через цифровой (оптический) аудиокабель; Подключение через беспроводную сеть
- 53 Подключение устройств Bluetooth; Подключение компьютера
- 54 Подключение мобильного устройства; Подключение к телевизору с помощью приложения SmartThings
- 55 Управление мобильным устройством
- 56 Изменение входного сигнала; Изменение названия и значка внешнего устройства
- 57 Настройка универсального пульта дистанционного управления; Использование дополнительных функций
- 58 Примечания по подключению; Примечания относительно подключения через порт HDMI
- 59 Примечания по подключению для аудиоустройств
- 60 Примечания по подключению для компьютеров; Примечания относительно подключения мобильных устройств
- 61 Пульт ДУ и периферийные устройства; Сведения об интеллектуальном пульте ДУ Samsung (для
- 67 О пульте Интеллектуальный пульт ДУ Samsung (THE FRAME
- 73 Управление телевизором с помощью клавиатуры или мыши; Подключение клавиатуры или мыши USB; Подключение клавиатуры или мыши Bluetooth
- 74 Работа с клавиатурой и мышью
- 75 Настройка устройств ввода; Настройка клавиатуры; Настройка мыши
- 76 Ввод текста с помощью экранной виртуальной клавиатуры; Рекомендуемый текст
- 77 Парам; Прогнозировать следующий знак
- 78 Функции SMART
- 79 Отображение первоначального экрана
- 83 Перемещение элемента на первоначальном экране; Удаление элемента на первоначальном экране
- 84 Автоматический запуск Smart Hub; Автоматический запуск последнего использованного приложения; Тестирование подключений Smart Hub
- 85 Использование учетной записи Samsung; Создание учетной записи Samsung и управление ею; Создание учетной записи; Создание учетной записи Samsung с помощью учетной записи PayPal
- 86 Вход в учетную запись Samsung; Добавление и изменение информации учетной записи Samsung
- 88 Использование Ambient mode
- 91 Использование службы Приложения; APPS; Войти; Поиск приложений
- 92 Установка и запуск приложения; Установка приложения; Запуск приложения
- 93 Управление приобретенными или установленными приложениями; Удаление приложения; Добавление приложений на первоначальный экран
- 94 Блокировка и разблокировка приложений; Перемещение приложений; Повторная установка приложения; Автоматическое обновление приложений; Оценивание приложений
- 95 Работа с приложением Галерея; Открыть категорию; Настройки Gallery
- 96 Работа с приложением Универсальная программа
- 97 Работа с приложением SmartThings; SmartThings; Список выбора местоположения
- 98 Использование руководства e-Manual
- 99 Функции кнопок в e-Manual; Использование Internet; Internet
- 100 Фильтр по
- 101 Воспроизведение мультимедиа
- 102 Воспроизведение мультимедийного содержимого с устройства USB
- 106 Просмотр телевизора; Обзор информации о цифровой транслируемой программе; Использование телегида; Прямой эфир
- 108 Запись программ
- 109 Управление настройками списка записи по расписанию; или; Настройка времени записи по расписанию
- 110 Просмотр записанных программ; Настройка времени запуска записи по расписанию; Настройка Просмотр по расписанию; Настройка просмотра по расписанию для канала
- 111 Изменение настроек просмотра по расписанию; Настройка времени просмотра по расписанию; Отмена просмотра по расписанию
- 112 Использование Timeshift; Кнопки и функции, доступные во время записи программы
- 114 Использование руководства Список каналов
- 115 Редактирование каналов; Удаление зарегистрированных каналов
- 116 Создание личного списка избранного; Регистрация каналов в списке избранного; Выбор и просмотр только списков избранных каналов
- 117 Редактирование списка избранного; Добавление каналов в список избранных; Упорядочивание элементов списка избранного; Переименование списка избранного
- 118 Вспомогательные функции для просмотра; Переключение сигнала вещания; Поиск доступных каналов; Выбор параметра поиска кабельной сети; Поиск доступных каналов в режиме ожидания
- 119 Установка времени выхода из спящего режима; Ограничение возможности просмотра определенных каналов; Выбор параметра передачи звука
- 120 Использование Блокировка программ; Изменение расширенных настроек вещания
- 121 Выбор языка аудио для каналов вещания; Выбор языка; Выбор формата аудио; Ручная настройка сигналов вещания; Настройка цифровых каналов
- 122 Настройка аналоговых каналов; Точная настройка аналогового вещания; Передача списка каналов
- 123 Отображение меню параметров Интерфейс TVkey
- 124 Отображение меню параметров COMMON INTERFACE
- 125 Изображение и Звук; Настройка качества изображения; Выбор режима изображения
- 126 Изменение расширенных настроек изображения
- 127 Игры на оптимизированном экране
- 128 Настройка параметров игрового режима; Настройка Motion Plus для игр; Настройка функции FreeSync
- 130 Дополнительные настройки изображения; Изменение размера изображения
- 131 Автоматическое изменение размера изображения; Регулировка размера изображения относительно экрана; Регулировка размера и/или положения изображения
- 132 Настройка Режим звука и Дополнительные настройки; Выбор режима звука; Изменение расширенных настроек звука
- 133 Использование дополнительных настроек звука; Выбор динамиков
- 135 Система и Поддержка; Использование функций настройки времени и таймеров; Установка текущего времени; Автоматическая настройка часов
- 136 Настройка летнего времени и часового пояса; Изменение текущего времени; Использование таймеров; Выключение телевизора по таймеру
- 137 Использование функций Автозащита и энергосбережения; Установка Автозащита
- 139 Защита телевизора от взлома и вредоносного кода; Использование других функций; Запуск специальных функций
- 140 Включение голосовых подсказок для людей с нарушением зрения; Описание аудио
- 141 Белый шрифт на черном фоне (высокий контраст); Настройка черного и белого цветов экрана; Инверсия цветов на экране; Увеличение шрифта (для людей с нарушениями зрения)
- 142 Обучение обращению с пультом ДУ (для людей с нарушенным зрением); Информация о меню телевизора; Просмотр телепередач с субтитрами
- 143 Выбор языка субтитров для каналов вещания; Изменение расширенных настроек системы; Выбор языка меню
- 144 Восстановление заводских настроек телевизора
- 145 HbbTV
- 146 Подключение адаптера карты CI к слоту COMMON INTERFACE
- 147 Подключение карты CI или CI+ к через гнездо COMMON INTERFACE; Использование карты CI или CI+
- 148 На Интеллектуальный пульт ДУ Samsung
- 150 На стандартном пульте ДУ
- 151 Стандартная страница телетекста
- 152 Получение поддержки по каналу удаленного управления
- 154 Диагностика проблем в работе телевизора
- 155 Проблема с изображением; Тестирование изображения
- 158 Звук слышен неотчетливо; Тестирование звука
- 159 Проблема с трансляцией
- 160 Компьютер или игровая консоль не подключается; Телевизор не подключается к Интернету
- 161 Запись по расписанию/функция Timeshift не работает
- 162 Проблема с запуском/использованием приложений
- 164 Другие проблемы
- 166 Перед использованием функций Запись и Timeshift
- 168 Поддерживаемые параметры передачи звука
- 169 Приложения: важная информация
- 170 Прочтите перед использованием функции Internet
- 171 Протоколы системы безопасности беспроводной сети
- 172 музыкальных файлов
- 174 Поддерживаемые форматы и разрешение изображений; Поддерживаемые форматы музыкальных файлов и кодеки
- 175 Видеокодеки, поддерживаемые в моделях серии Q900R
- 178 Аудиодекодеры
- 179 Размер изображения и входящие сигналы
- 180 Установка замка для защиты от краж; Поддерживаемые разрешения для входящих сигналов UHD; Если для параметра HDMI UHD Color установлено значение Выкл.
- 181 Если для параметра HDMI UHD Color установлено значение Вкл.; Значения разрешения, поддерживаемые функцией FreeSync
- 182 IBM
- 183 VESA DMT
- 184 VESA CVT
- 187 Ограничения при использовании соединения Bluetooth
- 191 Лицензия
- 192 Подробнее об экранном меню; Использование пульта ДУ; Ориентация пульта Интеллектуальный пульт ДУ Samsung
- 193 Цветные кнопки; Кнопка запуска и приостановки воспроизведения
- 194 Использование меню специальных возможностей; Меню Ссылки доступности; Открытие меню Ссылки доступности
- 195 Использование меню Ссылки доступности; Пошаговые инструкции по запуску параметров; Включение Голосовые инструкции
- 196 Знакомство с пультом ДУ
- 197 Включить функцию Голосовые инструкции; Включить функцию Описание аудио; Включить функцию Высокий контраст
- 198 Просмотр телепрограмм; Включение телевизора
- 199 Изменение громкости
- 202 Вызов списка избранных каналов
- 203 Настройка функции Просмотр по расписанию; Настройка просмотра по расписанию; Отмена просмотра по расписанию в меню Телегид
- 208 Запись
- 209 Запись просматриваемой программы; Изменение времени записи
- 210 Удаление записанной программы
- 212 Использование первоначального экрана в Smart Hub












