Телевизоры Samsung UE40MU6470U - инструкция пользователя по применению, эксплуатации и установке на русском языке. Мы надеемся, она поможет вам решить возникшие у вас вопросы при эксплуатации техники.
Если остались вопросы, задайте их в комментариях после инструкции.
"Загружаем инструкцию", означает, что нужно подождать пока файл загрузится и можно будет его читать онлайн. Некоторые инструкции очень большие и время их появления зависит от вашей скорости интернета.

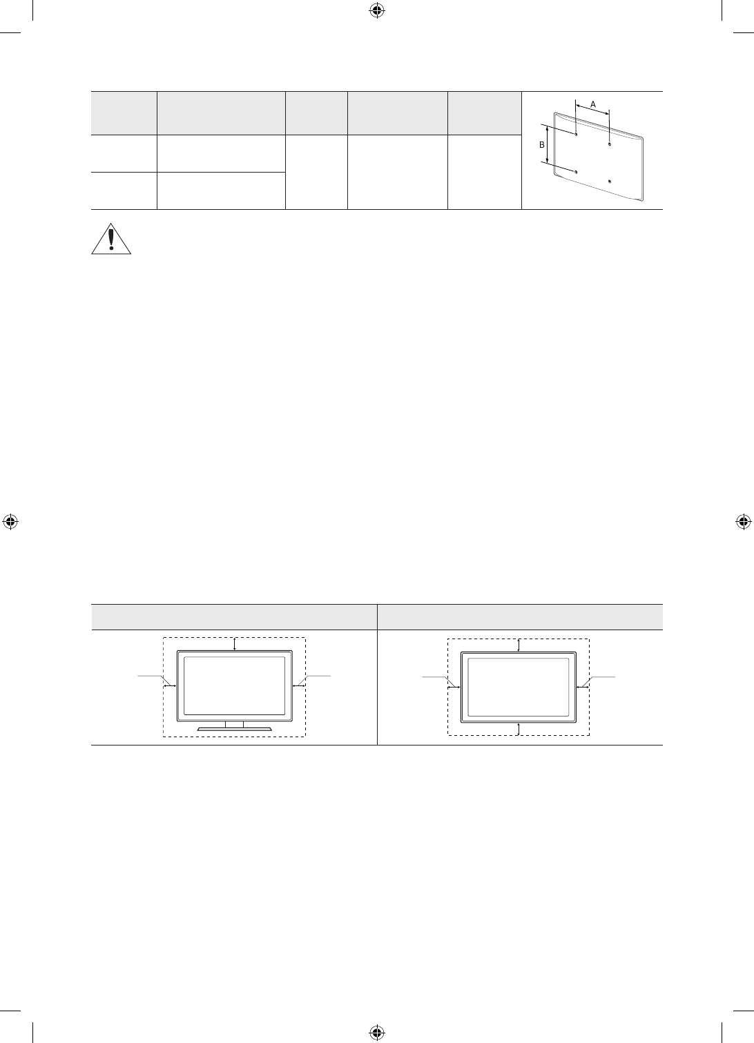
TV size in
inches
VESA screw hole specs
(A * B) in millimetres
C (mm
)
Standard Screw
Quantity
40
200 x 200
43 ~ 45
M8
4
49 ~ 55
400 x 400
Do not install your wall mount kit while your TV is turned on. This may result in personal injury from
electric shock.
•
Do not use screws that are longer than the standard dimension or do not comply with the VESA standard screw
specifications. Screws that are too long may cause damage to the inside of the TV set.
•
For wall mounts that do not comply with the VESA standard screw specifications, the length of the screws may
differ depending on the wall mount specifications.
•
Do not fasten the screws too firmly. This may damage the product or cause the product to fall, leading to
personal injury. Samsung is not liable for these kinds of accidents.
•
Samsung is not liable for product damage or personal injury when a non-VESA or non-specified wall mount is
used or when the consumer fails to follow the product installation instructions.
•
Do not mount the TV at more than a 15 degree tilt.
•
Always have two people mount the TV onto a wall.
Providing proper ventilation for your TV
When you install your TV, maintain a distance of at least 10 cm between the TV and other objects (walls, cabinet
sides, etc.) to ensure proper ventilation. Failing to maintain proper ventilation may result in a fire or a problem with
the product caused by an increase in its internal temperature.
When you install your TV with a stand or a wall mount, we strongly recommend you use parts provided by Samsung
Electronics only. Using parts provided by another manufacturer may cause difficulties with the product or result in
injury caused by the product falling.
Installation with a stand
Installation with a wall mount
10
cm
10
cm
10
cm
10
cm
10
cm
10
cm
10
cm
Attaching the TV to the Stand
Make sure you have all the accessories shown, and that you assemble the stand following the provided assembly
instructions.
English - 8
Содержание
- 2 Знакомство с функциями, упрощающими работу с электронным; Знакомство с функциями кнопок на страницах электронного
- 3 Предупреждение! Важные указания по
- 5 Содержание
- 6 1 Что входит в комплект?
- 7 2 Установка телевизора; Монтаж телевизора на стене
- 8 Обеспечение достаточной вентиляции для телевизора
- 9 Меры предосторожности: Надежное крепление телевизора к стене
- 10 Предотвращение падения телевизора; Укладка кабелей с помощью направляющей для кабеля
- 11 3 Интеллектуальный пульт ДУ Samsung
- 12 Установка батарей в интеллектуальный пульт ДУ Samsung
- 13 4 Исходная настройка; Использование руководства ТВ-контроллера
- 14 5 Подключение к сети; Беспроводное сетевое соединение; Проводное сетевое соединение
- 15 6 Устранение неисправностей и; Поиск и устранение неисправностей; Телевизор не включается.
- 16 Прерывается соединение Wi-Fi
- 17 Что такое удаленная поддержка?; Как работает удаленная поддержка?; Датчик экономного режима и яркость экрана
- 19 7 Технические характеристики и прочая; Технические характеристики
- 20 Рекомендация – только для стран ЕС
- 22 Режим ожидания; Знак имеет форму квадрата













