Телевизоры Samsung UE40MU6400U - инструкция пользователя по применению, эксплуатации и установке на русском языке. Мы надеемся, она поможет вам решить возникшие у вас вопросы при эксплуатации техники.
Если остались вопросы, задайте их в комментариях после инструкции.
"Загружаем инструкцию", означает, что нужно подождать пока файл загрузится и можно будет его читать онлайн. Некоторые инструкции очень большие и время их появления зависит от вашей скорости интернета.

TV size in
inches
VESA screw hole specs
(A * B) in millimetres
C (mm
)
Standard Screw
Quantity
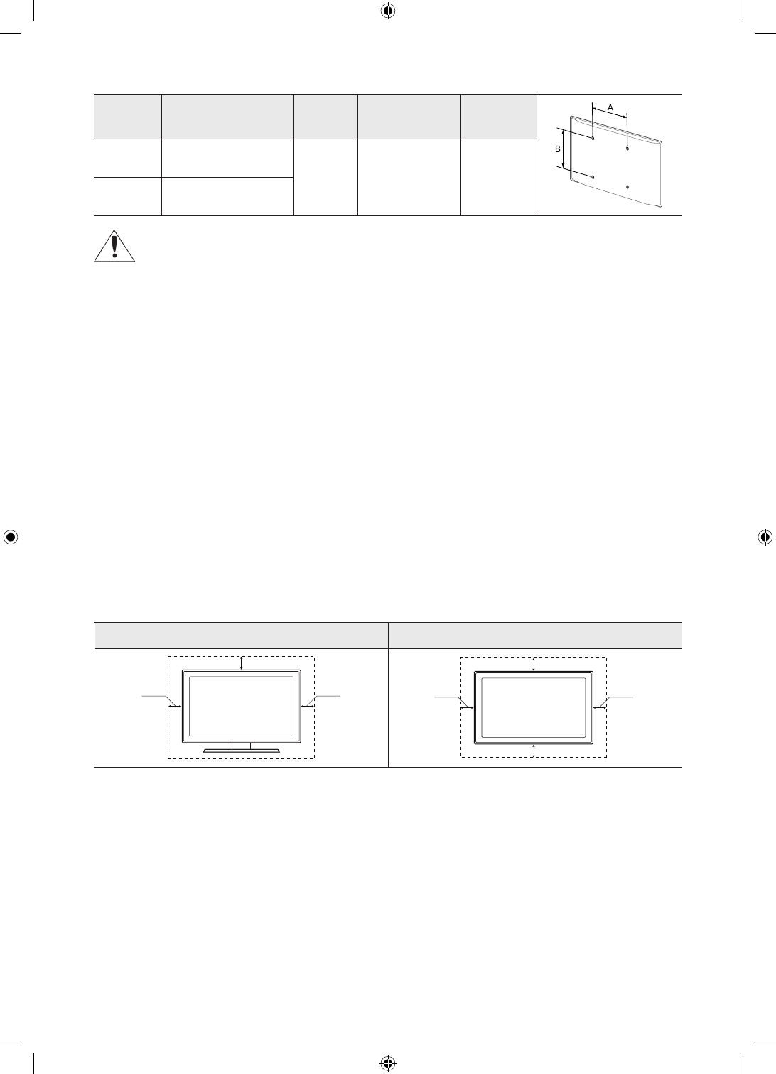
40
200 x 200
43 ~ 45
M8
4
49 ~ 65
400 x 400
Do not install your wall mount kit while your TV is turned on. This may result in personal injury from
electric shock.
•
Do not use screws that are longer than the standard dimension or do not comply with the VESA standard screw
specifications. Screws that are too long may cause damage to the inside of the TV set.
•
For wall mounts that do not comply with the VESA standard screw specifications, the length of the screws may
differ depending on the wall mount specifications.
•
Do not fasten the screws too firmly. This may damage the product or cause the product to fall, leading to
personal injury. Samsung is not liable for these kinds of accidents.
•
Samsung is not liable for product damage or personal injury when a non-VESA or non-specified wall mount is
used or when the consumer fails to follow the product installation instructions.
•
Do not mount the TV at more than a 15 degree tilt.
•
Always have two people mount the TV onto a wall.
Providing proper ventilation for your TV
When you install your TV, maintain a distance of at least 10 cm between the TV and other objects (walls, cabinet
sides, etc.) to ensure proper ventilation. Failing to maintain proper ventilation may result in a fire or a problem with
the product caused by an increase in its internal temperature.
When you install your TV with a stand or a wall mount, we strongly recommend you use parts provided by Samsung
Electronics only. Using parts provided by another manufacturer may cause difficulties with the product or result in
injury caused by the product falling.
Installation with a stand
Installation with a wall mount
10
cm
10
cm
10
cm
10
cm
10
cm
10
cm
10
cm
Attaching the TV to the Stand
Make sure you have all the accessories shown, and that you assemble the stand following the provided assembly
instructions.
English - 8
Содержание
- 2 Знакомство с функциями, упрощающими работу с электронным; Знакомство с функциями кнопок на страницах электронного
- 3 Предупреждение! Важные указания по
- 5 Содержание
- 6 1 Что входит в комплект?
- 7 2 Установка телевизора; Монтаж телевизора на стене
- 8 Обеспечение достаточной вентиляции для телевизора
- 9 Меры предосторожности: Надежное крепление телевизора к стене
- 10 Предотвращение падения телевизора; Укладка кабелей с помощью направляющей для кабеля
- 11 3 Интеллектуальный пульт ДУ Samsung
- 12 Установка батарей в интеллектуальный пульт ДУ Samsung
- 13 4 Исходная настройка; Использование руководства ТВ-контроллера
- 14 5 Подключение к сети; Беспроводное сетевое соединение; Проводное сетевое соединение
- 15 6 Устранение неисправностей и; Поиск и устранение неисправностей; Телевизор не включается.
- 16 Прерывается соединение Wi-Fi
- 17 Что такое удаленная поддержка?; Как работает удаленная поддержка?; Датчик экономного режима и яркость экрана
- 19 7 Технические характеристики и прочая; Технические характеристики
- 20 Рекомендация – только для стран ЕС
- 22 Режим ожидания; Знак имеет форму квадрата
- 94 Краткое руководство; II
- 96 IV
- 99 Подключение интеллектуального пульта ДУ Samsung к
- 100 Использование Smart Hub
- 101 APPS
- 102 Использование функций голосового управления; Запуск Voice Interaction (Голосового взаимодействия)
- 105 Обновление программного обеспечения телевизора; Обновление через Интернет; Обновление через устройство USB; Автоматическое обновление ПО телевизора
- 106 Получение поддержки по каналу удаленного управления
- 107 Поиск контактной информации службы; Запрос на обслуживание
- 108 Подключения
- 110 Подключение к сети Интернет; Подключение к Интернету; Установление проводного соединения с сетью Интернет
- 111 Беспроводное соединение
- 112 Проверка состояния сетевого подключения; Сброс сети; Изменение названия телевизора в списке сети; Устранение проблем с подключением к сети Интернет; Устранение проблем с проводным подключением к сети Интернет; Сетевой кабель не найден
- 113 Устранение проблем с беспроводным подключением к сети Интернет
- 114 Сбой автоматической настройки IP-адреса; Не удается подключиться к сети; Выполнено подключение к локальной сети, но не к сети Интернет; Настройка сети выполнена, но нет подключения к сети Интернет; Подключение видеоустройств; Подключение через кабель HDMI; HDMI IN
- 117 Подключения аудиовхода и аудиовыхода; Подключение через цифровой (оптический) аудиокабель; Подключение через беспроводную сеть
- 118 Подключение устройств Bluetooth; Подключение компьютера
- 119 Подключение мобильного устройства
- 120 Управление мобильным устройством; Переключение между подключенными к телевизору; Изменение входного сигнала
- 121 Изменение названия и значка внешнего устройства; Правка
- 122 Использование дополнительных функций; Примечания по подключению; Примечания относительно подключения через порт HDMI
- 123 Примечания по подключению для аудиоустройств
- 124 Примечания по подключению для компьютеров; Примечания относительно подключения мобильных устройств
- 125 Пульт ДУ и периферийные устройства; Об интеллектуальном пульте ДУ Samsung
- 129 Подключение к интеллектуальному пульту ДУ Samsung; Управление внешними устройствами с помощью
- 131 Управление телевизором с помощью клавиатуры; Подключение USB-клавиатуры; Подключение клавиатуры Bluetooth; Использование клавиатуры
- 132 Настройка клавиатуры; Ввод текста с помощью экранной QWERTY-клавиатуры
- 134 Интеллектуальные функции
- 135 Отображение начального экрана
- 138 Автоматический запуск службы Smart Hub; Автоматический запуск последнего использованного приложения; Тестирование соединений Smart Hub
- 139 Использование учетной записи Samsung; Создание учетной записи Samsung и управление ею; Создание учетной записи; Создание учетной записи Samsung с помощью учетной записи PayPal
- 140 Вход в учетную запись Samsung; Добавление и изменение информации учетной записи Samsung
- 141 Использование службы Приложения; Поиск приложений
- 142 Установка и запуск приложения; Установка приложения; Запуск приложения
- 143 Управление приобретенными или установленными приложениями; Удаление приложения; Добавление приложений на начальный экран
- 144 Блокировка и разблокировка приложений; Перемещение приложений; Повторная установка приложения; Автоматическое обновление приложений
- 145 Использование руководства e-Manual; Запуск электронного руководства; Использование кнопок в электронном руководстве; Использование руководства Internet
- 147 Парам; Воспроизведение мультимедиа; Воспроизведение мультимедийного содержимого с устройства USB
- 148 Использование службы Music Service; Музыка
- 152 Просмотр телевизора; Обзор информации о цифровой транслируемой программе; Использование телегида; Прямой эфир
- 154 Запись программ
- 155 Настройка записи видео после ввода даты и времени; Управление настройками списка записи по расписанию; Настройка времени записи по расписанию; Просмотр записанных программ
- 156 Настройка просмотра по расписанию; Настройка просмотра по расписанию для канала; Просмотр программ по расписанию в определенный день и время
- 157 Изменение настроек просмотра по расписанию; Настройка времени просмотра по расписанию; Использование Timeshift
- 159 Использование руководства Список каналов
- 160 Редактирование каналов; Удаление зарегистрированных каналов
- 161 Создание личного списка избранного; Регистрация каналов в списке избранного; Выбор и просмотр только списков избранных каналов
- 162 Редактирование списка избранного; Добавление каналов в список избранных; Упорядочивание элементов списка избранного; Переименование списка избранного
- 163 Вспомогательные функции для просмотра; Переключение сигнала вещания; Поиск доступных каналов; Выбор параметра поиска кабельной сети
- 164 Установка времени выхода из спящего режима; Ограничение возможности просмотра определенных каналов; Изменение расширенных настроек вещания
- 165 Чтение цифрового текста; Выбор языка аудио для каналов вещания; Выбор языка
- 166 Ручная настройка сигналов вещания; Настройка цифровых каналов; Настройка аналоговых каналов
- 167 Передача списка каналов; Удаление профиля оператора CAM
- 168 Отображение меню параметров COMMON INTERFACE
- 169 Настройки изображения и звука; Настройка качества изображения; Выбор режима изображения
- 170 Изменение расширенных настроек изображения
- 172 Игры на оптимизированном экране
- 173 Дополнительные настройки изображения; Изменение размера изображения
- 174 Автоматическое изменение размера изображения; Регулировка размера изображения относительно экрана; Регулировка размера и/или положения изображения
- 175 Настройка параметров звука; Выбор режима звука
- 176 Использование дополнительных настроек звука; Выбор динамиков
- 177 Воспроизведение звука с телевизора через динамик Multiroom
- 178 Система и поддержка; Установка времени и использование таймера; Установка текущего времени; Автоматическая настройка часов
- 179 Изменение текущего времени; Использование таймеров; Выключение телевизора по таймеру
- 180 Предотвращение выгорания экрана
- 182 Защита телевизора от взлома и вредоносного кода; Использование других функций; Запуск специальных функций
- 183 Включение голосовых подсказок для людей с нарушением зрения; Описание аудио
- 184 Просмотр телепередач с субтитрами
- 185 Белый шрифт на черном фоне (высокий контраст); Увеличение шрифта (для людей с нарушениями зрения); Обучение обращению с пультом ДУ (для людей с нарушенным зрением); Информация о меню телевизора
- 186 Изменение расширенных настроек системы; Выбор языка меню; Включение/выключение индикаторов на передней панели
- 187 Восстановление заводских настроек телевизора
- 188 Автоматический запуск службы передачи данных; HbbTV
- 189 Подключение карты CI или CI+ к через гнездо COMMON INTERFACE
- 190 Использование карты CI или CI+
- 192 Стандартная страница телетекста
- 194 Диагностика проблем в работе телевизора
- 195 Проблема с изображением; Тестирование изображения
- 197 Звук слышен неотчетливо; Тестирование звука
- 198 Проблема с трансляцией
- 200 Служба передачи данных; Запись по расписанию/функция Timeshift не работает
- 203 Другие проблемы
- 205 Перед использованием функций Запись и Timeshift
- 207 Поддерживаемые параметры передачи звука
- 208 Приложения: важная информация
- 209 Прочтите перед использованием функции Internet
- 211 музыкальных файлов
- 213 Поддерживаемые форматы и разрешение изображений; Поддерживаемые форматы музыкальных файлов и кодеки
- 214 Поддерживаемые видеокодеки
- 216 Размер изображения и входящие сигналы
- 217 Установка замка для защиты от краж; Протоколы системы безопасности беспроводной сети
- 218 Поддерживаемые разрешения для входящих сигналов UHD; Если для параметра HDMI UHD Color установлено значение Выкл.
- 219 Прочтите перед подключением компьютера; IBM
- 220 VESA DMT
- 222 Ограничения при использовании соединения Bluetooth
- 223 Кнопки и функции
- 227 Подробнее об экранном меню; Использование пульта ДУ; Ориентация интеллектуального пульта ДУ Samsung
- 229 Использование меню специальных возможностей; Меню быстрого доступа к специальным возможностям
- 230 Пошаговые инструкции; Включение функции Голосовые инструкции
- 231 Включение функции Описание аудио; Знакомство с пультом ДУ
- 232 Включить функцию Голосовые инструкции:; Включить функцию Описание аудио:; Включить функцию Высокий контраст:
- 233 Просмотр телепрограмм; Включение телевизора; Переключение каналов
- 234 Ввод цифр с экрана с помощью интеллектуального пульта ДУ Samsung; Изменение громкости
- 237 Вызов списка избранных каналов
- 238 Настройка функции Просмотр по расписанию; Отмена просмотра по расписанию
- 241 Добавление каналов в список избранных (подробные инструкции)
- 243 Запись
- 245 Удаление записанной программы
- 247 Вызов начального экрана в службе Smart Hub
- 250 Использование Голосовое управление; Запуск функции Голосовое управление












