Телевизоры Samsung QE55Q7FNAU - инструкция пользователя по применению, эксплуатации и установке на русском языке. Мы надеемся, она поможет вам решить возникшие у вас вопросы при эксплуатации техники.
Если остались вопросы, задайте их в комментариях после инструкции.
"Загружаем инструкцию", означает, что нужно подождать пока файл загрузится и можно будет его читать онлайн. Некоторые инструкции очень большие и время их появления зависит от вашей скорости интернета.

Размер
телевизора
в дюймах
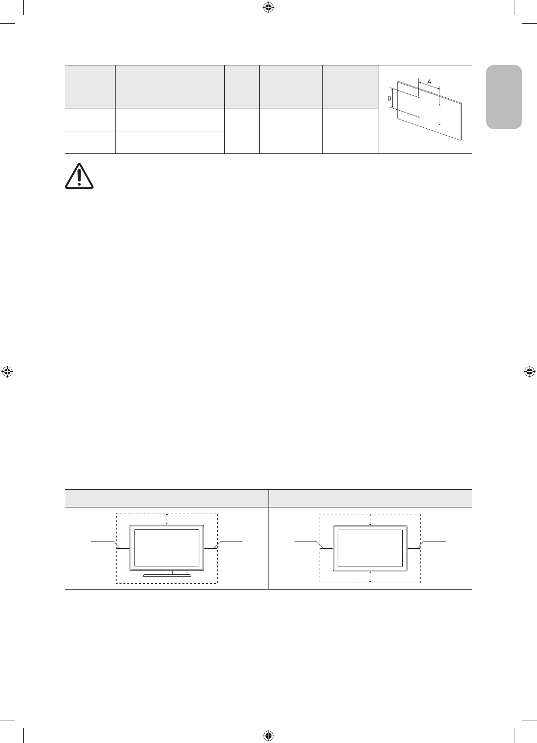
Параметры отверстий для
винтов стандарта VESA, в
миллиметрах (A × B)
C (мм)
Стандартный
винт
Количество
55
200 x 200
43-45
M8
4
65-75
400 x 400
Не выполняйте установку набора для настенного монтажа, когда телевизор включен. Это
может привести к травме вследствие поражения током.
• Не используйте слишком длинные винты или винты, не соответствующие стандарту VESA.
Использование винтов длиннее стандартного размера может привести к повреждению внутренних
элементов телевизора.
• Длина винтов для настенного крепления, не соответствующая стандарту VESA, может отличаться в
зависимости от технических характеристик настенного крепления.
• Не затягивайте винты слишком сильно. Это может повредить устройство или стать причиной его
падения и привести к травме. Samsung не несет ответственности за подобные несчастные случаи.
• Samsung не несет ответственности за повреждение устройства или травмы, полученные
при использовании настенного крепления, не соответствующего стандартам VESA или не
предназначенного для этих целей, а также в случае несоблюдения инструкций по установке
устройства.
• Не устанавливайте телевизор под наклоном более 15 градусов.
• Установку телевизора на стену всегда следует выполнять вдвоем.
Обеспечение достаточной вентиляции для телевизора
При установке телевизора и One Connect оставьте расстояние не менее 10 см между телевизором и
One Connect и другими объектами (стенами помещения, стенками шкафов и т. д.) для обеспечения
достаточной вентиляции. Отсутствие достаточной вентиляции может стать причиной возгорания или
поломки изделия из-за перегрева.
При установке телевизора на подставку или настенное крепление используйте только те детали, которые
поставляются Samsung Electronics. При использовании деталей других производителей могут возникнуть
проблемы с установкой изделия, кроме того, изделие может упасть и нанести травму.
Установка на подставку
Установка на настенное крепление
10 см
10 см
10 см
10 см
10 см
10 см
10 см
Русский - 9
Ру
сский
Содержание
- 2 Знакомство с функциями, упрощающими работу с электронным; Знакомство с функциями кнопок на страницах электронного
- 5 Содержание
- 6 1 Что входит в комплект?
- 8 3 Установка телевизора; Монтаж телевизора на стене
- 9 Обеспечение достаточной вентиляции для телевизора
- 11 Снятие задней крышки со стойки телевизора
- 12 4 Интеллектуальный пульт ДУ Samsung; Кнопки интеллектуального пульта ДУ Samsung
- 13 Установка батарей в Интеллектуальный пульт ДУ Samsung
- 14 5 Первоначальная настройка; Использование контроллера Пульт управления
- 15 6 Подключение к сети; Беспроводное сетевое соединение
- 16 Поиск и устранение неисправностей
- 18 Что такое удаленная поддержка?; Датчик экономного режима и яркость экрана
- 19 Очистка поверхности телевизора
- 20 Технические характеристики; Условия окружающей среды
- 21 Уменьшение потребления электроэнергии
- 23 Режим ожидания
- 30 Краткое руководство; Подключение интеллектуального пульта ДУ Samsung к
- 31 Использование Smart Hub; Оповещение
- 32 Искусство
- 33 Использование руководства Ambient mode; Состояния экрана в режиме Ambient mode
- 34 Изменение содержимого и настроек для Ambient mode; Настройка содержимого для Ambient mode
- 35 Настройка параметров Ambient mode; Изменение цвета фона в режиме Ambient mode
- 36 Использование руководства Ссылка
- 37 Добавление каналов; Удаление каналов
- 38 Использование голосового управления; Запуск функции Голосовое управление
- 39 Основные сведения о Гид по голосовым командам; Вот некоторые из операций, которые я могу выполнять.
- 40 Голосовое управление: важная информация; Меры предосторожности при использовании Голосовое управление
- 41 Обновление программного обеспечения телевизора; Обновление через Интернет; Обновление через устройство USB; Автоматическое обновление ПО телевизора
- 42 Поддержка; Поддержка через Удаленное управление
- 43 Поиск контактной информации службы; Запрос на обслуживание
- 44 Подключения; Источник
- 45 Подключение антенны (Антенна
- 46 Подключение к сети Интернет; Подключение к Интернету; Установление проводного соединения с сетью Интернет
- 47 Беспроводное соединение
- 48 Проверка состояния сетевого подключения; Сброс сети; Включение телевизора с помощью Мобильное устройство; Настройка подключения к сети Интернет через протокол IPv6; Настройка параметров IPv6-подключения
- 49 Проверка подключения к сети Интернет через протокол IPv6; Изменение названия телевизора в списке сети; Устранение проблем с подключением к сети Интернет; Сетевой кабель не найден
- 50 Не удается подключиться к беспроводному маршрутизатору; Сбой автоматической настройки IP-адреса; Не удается подключиться к сети; Выполнено подключение к локальной сети, но не к сети Интернет; Настройка сети выполнена, но нет подключения к сети Интернет
- 54 Подключения аудиовхода и аудиовыхода; Подключение через кабель HDMI (ARC; Подключение через цифровой (оптический) аудиокабель; Подключение через беспроводную сеть
- 55 Подключение устройств Bluetooth; Подключение компьютера
- 56 Подключение мобильного устройства; Подключение к телевизору с помощью приложения SmartThings
- 57 Управление мобильным устройством
- 58 Изменение входного сигнала; Изменение названия и значка внешнего устройства
- 59 Настройка универсального пульта дистанционного управления; Использование дополнительных функций
- 60 Примечания по подключению; Примечания относительно подключения через порт HDMI
- 61 Примечания по подключению для аудиоустройств
- 62 Примечания по подключению для компьютеров; Примечания относительно подключения мобильных устройств
- 63 Пульт ДУ и периферийные устройства; Сведения об интеллектуальном пульте ДУ Samsung (для
- 69 О пульте Интеллектуальный пульт ДУ Samsung (THE FRAME
- 75 Управление телевизором с помощью клавиатуры или мыши; Подключение клавиатуры или мыши USB; Подключение клавиатуры или мыши Bluetooth
- 76 Работа с клавиатурой и мышью
- 77 Настройка устройств ввода; Настройка клавиатуры; Настройка мыши
- 78 Ввод текста с помощью экранной виртуальной клавиатуры; Рекомендуемый текст
- 79 Парам; Прогнозировать следующий знак
- 80 Функции SMART
- 81 Отображение первоначального экрана
- 85 Перемещение элемента на первоначальном экране; Удаление элемента на первоначальном экране
- 86 Автоматический запуск Smart Hub; Автоматический запуск последнего использованного приложения; Тестирование подключений Smart Hub
- 87 Использование учетной записи Samsung; Создание учетной записи Samsung и управление ею; Создание учетной записи; Создание учетной записи Samsung с помощью учетной записи PayPal
- 88 Вход в учетную запись Samsung; Добавление и изменение информации учетной записи Samsung
- 90 Использование Ambient mode
- 93 Использование службы Приложения; APPS; Войти; Поиск приложений
- 94 Установка и запуск приложения; Установка приложения; Запуск приложения
- 95 Управление приобретенными или установленными приложениями; Удаление приложения; Добавление приложений на первоначальный экран
- 96 Блокировка и разблокировка приложений; Перемещение приложений; Повторная установка приложения; Автоматическое обновление приложений; Оценивание приложений
- 97 Работа с приложением Галерея; Открыть категорию; Настройки Gallery
- 98 Работа с приложением Универсальная программа
- 99 Работа с приложением SmartThings; SmartThings; Список выбора местоположения
- 100 Использование руководства e-Manual
- 101 Функции кнопок в e-Manual; Использование Internet; Internet
- 102 Фильтр по
- 103 Воспроизведение мультимедиа
- 104 Воспроизведение мультимедийного содержимого с устройства USB
- 108 Просмотр телевизора; Обзор информации о цифровой транслируемой программе; Использование телегида; Прямой эфир
- 110 Запись программ
- 111 Управление настройками списка записи по расписанию; или; Настройка времени записи по расписанию
- 112 Просмотр записанных программ; Настройка времени запуска записи по расписанию; Настройка Просмотр по расписанию; Настройка просмотра по расписанию для канала
- 113 Изменение настроек просмотра по расписанию; Настройка времени просмотра по расписанию; Отмена просмотра по расписанию
- 114 Использование Timeshift; Кнопки и функции, доступные во время записи программы
- 116 Использование руководства Список каналов
- 117 Редактирование каналов; Удаление зарегистрированных каналов
- 118 Создание личного списка избранного; Регистрация каналов в списке избранного; Выбор и просмотр только списков избранных каналов
- 119 Редактирование списка избранного; Добавление каналов в список избранных; Упорядочивание элементов списка избранного; Переименование списка избранного
- 120 Вспомогательные функции для просмотра; Переключение сигнала вещания; Поиск доступных каналов; Выбор параметра поиска кабельной сети; Поиск доступных каналов в режиме ожидания
- 121 Установка времени выхода из спящего режима; Ограничение возможности просмотра определенных каналов; Выбор параметра передачи звука
- 122 Использование Блокировка программ; Изменение расширенных настроек вещания
- 123 Выбор языка аудио для каналов вещания; Выбор языка; Выбор формата аудио; Ручная настройка сигналов вещания; Настройка цифровых каналов
- 124 Настройка аналоговых каналов; Точная настройка аналогового вещания; Передача списка каналов
- 125 Отображение меню параметров Интерфейс TVkey
- 126 Отображение меню параметров COMMON INTERFACE
- 127 Изображение и Звук; Настройка качества изображения; Выбор режима изображения
- 128 Изменение расширенных настроек изображения
- 129 Игры на оптимизированном экране
- 130 Настройка параметров игрового режима; Настройка Motion Plus для игр; Настройка функции FreeSync
- 132 Дополнительные настройки изображения; Изменение размера изображения
- 133 Автоматическое изменение размера изображения; Регулировка размера изображения относительно экрана; Регулировка размера и/или положения изображения
- 134 Настройка Режим звука и Дополнительные настройки; Выбор режима звука; Изменение расширенных настроек звука
- 135 Использование дополнительных настроек звука; Выбор динамиков
- 137 Система и Поддержка; Использование функций настройки времени и таймеров; Установка текущего времени; Автоматическая настройка часов
- 138 Настройка летнего времени и часового пояса; Изменение текущего времени; Использование таймеров; Выключение телевизора по таймеру
- 139 Использование функций Автозащита и энергосбережения; Установка Автозащита
- 141 Защита телевизора от взлома и вредоносного кода; Использование других функций; Запуск специальных функций
- 142 Включение голосовых подсказок для людей с нарушением зрения; Описание аудио
- 143 Белый шрифт на черном фоне (высокий контраст); Настройка черного и белого цветов экрана; Инверсия цветов на экране; Увеличение шрифта (для людей с нарушениями зрения)
- 144 Обучение обращению с пультом ДУ (для людей с нарушенным зрением); Информация о меню телевизора; Просмотр телепередач с субтитрами
- 145 Выбор языка субтитров для каналов вещания; Изменение расширенных настроек системы; Выбор языка меню
- 146 Восстановление заводских настроек телевизора
- 147 HbbTV
- 148 Подключение адаптера карты CI к слоту COMMON INTERFACE
- 149 Подключение карты CI или CI+ к через гнездо COMMON INTERFACE; Использование карты CI или CI+
- 150 На Интеллектуальный пульт ДУ Samsung
- 152 На стандартном пульте ДУ
- 153 Стандартная страница телетекста
- 154 Получение поддержки по каналу удаленного управления
- 156 Диагностика проблем в работе телевизора
- 157 Проблема с изображением; Тестирование изображения
- 160 Звук слышен неотчетливо; Тестирование звука
- 161 Проблема с трансляцией
- 162 Компьютер или игровая консоль не подключается; Телевизор не подключается к Интернету
- 163 Запись по расписанию/функция Timeshift не работает
- 164 Проблема с запуском/использованием приложений
- 166 Другие проблемы
- 168 Перед использованием функций Запись и Timeshift
- 170 Поддерживаемые параметры передачи звука
- 171 Приложения: важная информация
- 172 Прочтите перед использованием функции Internet
- 173 Протоколы системы безопасности беспроводной сети
- 174 музыкальных файлов
- 176 Поддерживаемые форматы и разрешение изображений; Поддерживаемые форматы музыкальных файлов и кодеки
- 177 Видеокодеки, поддерживаемые в моделях серии Q900R
- 180 Аудиодекодеры
- 181 Размер изображения и входящие сигналы
- 182 Установка замка для защиты от краж; Поддерживаемые разрешения для входящих сигналов UHD; Если для параметра HDMI UHD Color установлено значение Выкл.
- 183 Если для параметра HDMI UHD Color установлено значение Вкл.; Значения разрешения, поддерживаемые функцией FreeSync
- 184 IBM
- 185 VESA DMT
- 186 VESA CVT
- 189 Ограничения при использовании соединения Bluetooth
- 193 Лицензия
- 194 Подробнее об экранном меню; Использование пульта ДУ; Ориентация пульта Интеллектуальный пульт ДУ Samsung
- 195 Цветные кнопки; Кнопка запуска и приостановки воспроизведения
- 196 Использование меню специальных возможностей; Меню Ссылки доступности; Открытие меню Ссылки доступности
- 197 Использование меню Ссылки доступности; Пошаговые инструкции по запуску параметров; Включение Голосовые инструкции
- 198 Знакомство с пультом ДУ
- 199 Включить функцию Голосовые инструкции; Включить функцию Описание аудио; Включить функцию Высокий контраст
- 200 Просмотр телепрограмм; Включение телевизора
- 201 Изменение громкости
- 204 Вызов списка избранных каналов
- 205 Настройка функции Просмотр по расписанию; Настройка просмотра по расписанию; Отмена просмотра по расписанию в меню Телегид
- 210 Запись
- 211 Запись просматриваемой программы; Изменение времени записи
- 212 Удаление записанной программы
- 214 Использование первоначального экрана в Smart Hub












