Телевизоры LED Samsung BE32R - инструкция пользователя по применению, эксплуатации и установке на русском языке. Мы надеемся, она поможет вам решить возникшие у вас вопросы при эксплуатации техники.
Если остались вопросы, задайте их в комментариях после инструкции.
"Загружаем инструкцию", означает, что нужно подождать пока файл загрузится и можно будет его читать онлайн. Некоторые инструкции очень большие и время их появления зависит от вашей скорости интернета.

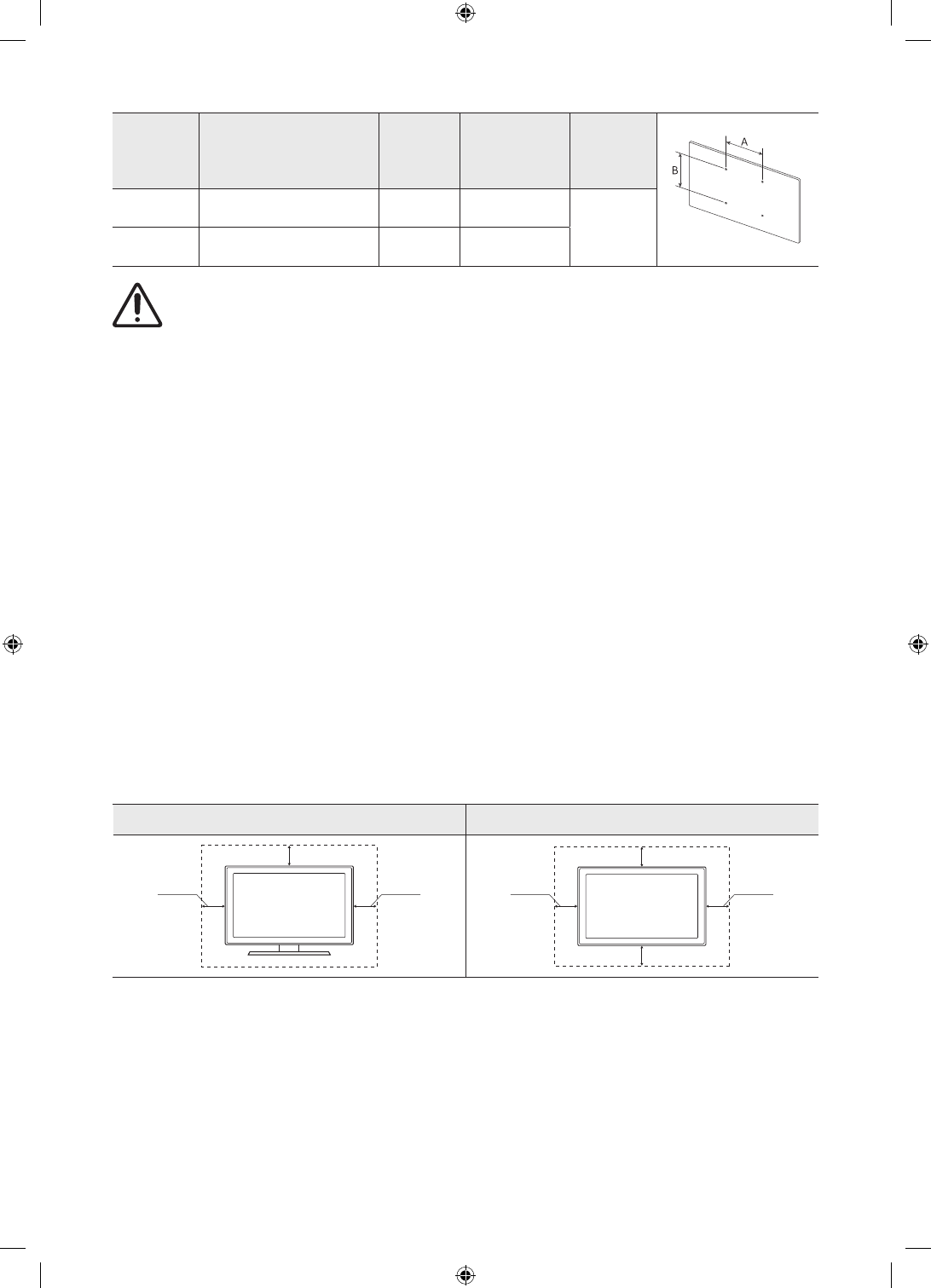
ТД өлшемі,
дюйм
VESA бұранда тесігінің
техникалық шарттары
(A * B), миллиметр
C (мм)
Стандартты
бұранда
Саны
32
100 x 100
26,0-28,0
M4
4
43
200 x 200
25,2-27,2
M8
Қабырғаға ілу жинағын теледидар тоққа қосулы тұрғанда орнатуға болмайды. Бұл адамның
электр тоғы соғуынан жарақат алуына себеп болуы мүмкін.
• Стандартты өлшемнен ұзын немесе VESA бұрандалар стандартына сай келмейтін бұрандаларды
қолданбаңыз. Тым ұзын бұрандалар теледидардың ішкі бөлшектеріне зиян келтіруі мүмкін.
• VESA стандартты бұрандалар спецификациясына сай келмейтін қабырғалық аспа жинақ қолданылса,
бұрандаларының ұзындықтары қабырғалық аспа жинақ спецификациясына байланысты басқаша
болуы мүмкін.
• Бұрандаларды өте қатты қатайтпаңыз. Себебі құрылғыға зақым келуі немесе құрылғы құлап, адам
жарақат алуы мүмкін. Samsung бұндай қатерлі оқиғалар үшін жауапкершілік көтермейді.
• VESA стандартына сай емес немесе ұсынылмаған қабырғаға ілу жинағы қолданылса немесе сатып
алушы өнімді орнату нұсқауларын орындамай, өнімге нұқсан келсе не адам жарақат алса, Samsung
компаниясы жауапкершілік көтермейді.
• Теледидарды 15 градустан асыра қисайтпаңыз.
• ТД-ды үнемі екі адам қабырғаға орнатуға тиіс.
ТД-ды дұрыс желдету
ТД-ды жақсы желдету үшін оны орнатқан кезде, ТД мен басқа заттардың (қабырғалар, жиһаздың
қабырғалары т.с.с.) арасында кем дегенде 10 см орын қалуын қамтамасыз етіңіз. Дұрыс желдетпеген
кезде, құрылғының ішкі температурасы артып, өрт шығуы немесе оған зақым келуі мүмкін.
ТД-ды тұрғыға қою немесе қабырғалық аспа жинаққа орнату үшін Samsung Electronics бөлшектерін
ғана қолдануды ұсынамыз. Егер басқа өндіруші шығарған бөлшектерді қолдансаңыз, өнімге зақым келуі
немесе ол құлап, адам жарақат алуы мүмкін.
Тұрғыға орнату
Қабырғалық аспа жинаққа орнату
10 см
10 см
10 см
10 см
10 см
10 см
10 см
Қазақ - 8
Содержание
- 2 Знакомство с функциями, упрощающими работу с электронным; Знакомство с функциями кнопок на страницах электронного
- 5 Содержание
- 6 1 Что входит в комплект?
- 7 2 Установка телевизора; Монтаж телевизора на стене
- 8 Обеспечение достаточной вентиляции для телевизора
- 9 Меры предосторожности: Надежное крепление телевизора к стене; Предотвращение падения телевизора
- 10 Кнопки пульта дистанционного управления
- 11 Установка батарей в пульт дистанционного управления (Размер
- 12 4 Первоначальная настройка; Использование руководства ТВ-контроллер
- 13 5 Подключение к сети; Беспроводное сетевое соединение; Проводное сетевое соединение
- 14 Поиск и устранение неисправностей; Телевизор не включается.
- 16 Что такое удаленная поддержка?; Как работает удаленная поддержка?; Датчик экономного режима и яркость экрана
- 17 Очистка поверхности телевизора
- 18 Технические характеристики; Условия окружающей среды
- 19 Рекомендация – только для стран ЕС
- 20 Режим ожидания
Характеристики
Остались вопросы?Не нашли свой ответ в руководстве или возникли другие проблемы? Задайте свой вопрос в форме ниже с подробным описанием вашей ситуации, чтобы другие люди и специалисты смогли дать на него ответ. Если вы знаете как решить проблему другого человека, пожалуйста, подскажите ему :)