Страница 2 - Содержание; Руководство по установке кондиционера (стр. 1
Содержание 1. Руководство по эксплуатации (стр. 3 ) 2. Руководство по установке кондиционера (стр. ) 3. Техническое обслуживание и устранение неполадок (стр. ) 4. Гарантийные обязательства (стр. ) -19 20-27 28-32 33-35 информация для потребителя ,
Страница 5 - НАИМЕНОВАНИЕ ЧАСТЕЙ КОНДИЦИОНЕРА; Защитная решетка
14 НАИМЕНОВАНИЕ ЧАСТЕЙ КОНДИЦИОНЕРА Защитная решетка Шильдик блока Крышка клеммников Газовый вентиль Жидкостной вентиль Система кондиционирования предназначена для создания комфортных для людей климатичес- ких условий в помещении. Она может охлаж- дать и осушать, а также нагревать воздух в ав- томат...
Страница 6 - ДИСПЛЕЙ ВНУТРЕННЕГО БЛОКА
и найдите там аварийную кнопку (см. рисунки выше). Аварийная кнопка в моделях Примечание: Если не работает пульт дистанционного управления, откройте переднюю панель 12K, 18K, 24K, 28K и 36K находится сверху справа, см. кнопка “ON/OFF” ДИСПЛЕЙ ВНУТРЕННЕГО БЛОКА Поз. Индикатор Функция 1 POWER показыва...
Страница 7 - АВТОРЕСТАРТ И АВАРИЙНЫЙ ЗАПУСК; Экстренная функция
АВТОРЕСТАРТ И АВАРИЙНЫЙ ЗАПУСК В различных моделях кнопка аварийного запуска может быть расположена по-разному. Функция автоматического перезапуска В устройстве имеется включенная по умолчанию функция автоматического перезапуска, с помо- щью которой после пропадания или падения на- пряжения питания ...
Страница 8 - Условия эксплуатации; Эксплуатация системы кондиционирования при; УСЛОВИЯ ЭКСПЛУАТАЦИИ
Правила безопасной эксплуатации Во избежание пожара и поражения элек- трическим током не лейте воду или другую жид- кость и не допускайте попадания брызг на внут- ренний блок. Во избежание пожара не храните легко- воспляменяющиеся материалы (клеи, лаки, бен- зин) рядом с устройством. Во избежание тр...
Страница 9 - Индикация на ЖК-дисплее; Панель управления; ПУЛЬТ ДИСТАНЦИОННОГО УПРАВЛЕНИЯ
ПУЛЬТ ДИСТАНЦИОННОГО УПРАВЛЕНИЯ управл Описание кнопок AUTO COOL DRY FAN HEAT ECO SLEEP TIMER I FEEL HEALTH MILDEW CLEAN DISPLAY 8 CH 7 3 1 9 5 8 4 2 10 6 OPTION 1 2 3 4 5 6 7 FAN 8 9 10 * Функции [ I FEEL ]; [ HEALTH ]; [ MILDEW ]; [ CLEAN ]; [ 8°CH ] являются опциональными и могут не использоватьс...
Страница 11 - Рекомендации по размещению пульта; Режимы работы; Регулирование направления
ле. вниз. Рекомендации по размещению пульта Пульт можно размещать в настенном держате- Режимы работы Регулирование направления потока обработанного воздуха С помощью функции качания жалю- зи выходящий воздушный поток рав- номерно распределяется по поме- щению. Направление воздушного потока можно заф...
Страница 13 - Для отключения кондиционера снова на-; Режим работы ПО ТАЙМЕРУ; Для отмены режима работы по таймеру пов-; температуру воздуха в помещении.
ПУЛЬТ ДИСТАНЦИОННОГО УПРАВЛЕНИЯ ПРИМЕЧАНИЕ: В режиме ВЕНТИЛЯЦИЯ температура воздуха в по-мещении не задается. ОСУШЕНИЕ (DRY) 1. Включите кондиционер, нажав кнопку "ON/ OFF". На панели индикации внутреннего блока появится индикатор РАБОЧЕГО СОСТОЯНИЯ. 2. Нажимая кнопку "MODE", выберит...
Страница 14 - новленную температуру на 2°С.
В данном режиме кондиционер автоматически меняет появится индикатор на панели блока, при этом на дисплее пульта ПУЛЬТ ДИСТАНЦИОННОГО УПРАВЛЕНИЯ томатически выключается. 14 Управление расширенными функциями DISPLAY DISPLAY OPTION DISPLAY Включение/отключение подсветки дисплея Нажмите 1 раз, выберите ...
Страница 15 - ОСУШЕНИЕ; Протекания воды из внутреннего блока.; ДОПОЛНИТЕЛЬНАЯ ИНФОРМАЦИЯ
(кондиционер выкл.) (2) Нажмите OPTION (1) С помощью нажатия конопок ПУЛЬТ ДИСТАНЦИОННОГО УПРАВЛЕНИЯ Управление расширенными функциями 15 TIMER TIMER h SLEEP TIMER I FEEL DISPLAY 8 CH HEAT SLEEP TIMER I FEEL DISPLAY 8 CH TIMER CLEAN DISPLAY HEAT TIMER CLEAN DISPLAY Автоматическое включение/отключени...
Страница 16 - Примечания; Трехми нут ная за держ ка вклю че ния; Срок эксплуатации
ПУЛЬТ ДИСТАНЦИОННОГО УПРАВЛЕНИЯ Управление расширенными функциями MILDEW (опция) OPTION MILDEW Нажмите 1 раз, выберите в меню с помощью нажатия кнопок или , дождитесь, пока указатель MILDEW начнет мигать. Нажмите OPTION еще раз, чтобы активировать функцию, на дисплее появится индикатор MILDEW Активи...
Страница 17 - РУКОВОДСТВО ПО УСТАНОВКЕ КОНДИЦИОНЕРА
воздуха внутри помещения ниже 8 ПУЛЬТ ДИСТАНЦИОННОГО УПРАВЛЕНИЯ Управление расширенными функциями 2. Активна только при выключенном кондиционере. При температуре тически включится в режиме нагрева. При повышении температуры внутреннего воздуха до 18 , кондиционер автоматически отключится. 17 8 8 H 8...
Страница 18 - Крепление монтажной пластины
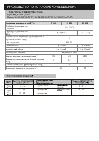
Темепература в помещении ниже 0° Темепература наружного воздуха выше 24°Темепература наружного воздуха ниже -7° Темепература в помещении выше +27°Темепература наружного воздуха выше 5 3° Темепература в помещении ниже 17°Темепература в помещении выше 32° Темепература наружного воздуха ниже -7 ° ОСУШЕ...
Страница 21 - Удаление воздуха и влаги; Наличие воздуха и влаги в трубах конутра охлаждения; Соединение труб хладагента
РУКОВОДСТВО ПО УСТАНОВКЕ КОНДИЦИОНЕРА 50 5mm Со стороны помещения Со стороны улицы Передняя панель Схема электроподключений на обратной стороне крышки клемной колодки Крепление монтажной пластины монтажной пластины. монтажной пластины. монтажной пластины 21
Страница 22 - Удаления воздуха и влаги; Заключительные моменты
РУКОВОДСТВО ПО УСТАНОВКЕ КОНДИЦИОНЕРА 3 2 1 YES NO NO NO YES Затянуть с использованием динамометрического ключа Монтаж дренажного шланга внутреннего блока Монтаж дренажного шланга необходим для удаления конденсата из внутреннего блока 22
Страница 23 - Серия Elite ONE Inverter
Установка внутреннего блока Обернуть защитной лентой Труба хладагента Труба хладагента Теплоизоляция Дренажный шланг Межблочный кабель Монтажная пластина Дренажное отверстие Отводная трубка для дренажа После монтажа труб, произведенного в соответствии с инструкцией, проложите межблочный кабель. Зате...
Страница 24 - Серия Miracle; Модель
РУКОВОДСТВО ПО УСТАНОВКЕ КОНДИЦИОНЕРА Удаление воздуха и влаги Наличие воздуха и влаги в трубах конутра охлаждения приводит к окислению масла и поломке компрессора. После соединения внутреннего и наружного блока трубами для хладагента, удалите воздух и влагу из холодильного контура с помощью вакуумн...
Страница 30 - Е А; Индикатор рабочего режима
ТЕХНИЧЕСКОЕ ОБСЛУЖИВАНИЕ И УСТРАНЕНИЕ НЕПОЛАДОК Промойте фильтр водой. Если загрязнение фильтра носят маслянистый характер, промойте фильтр водой (температурой не выше 40°С). Просушите фильтр в прохладном сухом месте. 3. Если теплообменник наружного блока загрезнен, очистите его удалив листья, пух, ...
Страница 31 - Условия гарантии и гарантийный талон; Настоящая гарантия не распространяется:; сроком использования.; Настоящая гарантия не предоставляется в случаях:; • если будет изменен или будет неразборчив серийный номер изделия; ГАРАНТИЙНЫЕ ОБЯЗАТЕЛЬСТВА
От прибора исходит сильный запах и/или дым Сообщения об ошибках на дисплее Немедленно выключите кондиционер и отсоедините шнур от сети, если: При работающий кондиционер издает странные звуки (хруст, писк, громкий гул, треск и тд.) Повреждена защитная крышка электронного блока управления Повреждены п...
Страница 32 - TCL; Особые
Ошибка Описание ошибки E 1 Ошибка по датчику измерения температуры в помещении E 2 Ошибка по датчику измерения температуры трубы в помещении E 4 Ошибка по двигателю вентилятора внутреннего блока E 5 Ошибка реле давления хладагента E 6 Ошибка вентилятора внутреннего блока Е 0 Ошибка свзяи / ошибка пи...
Страница 33 - сохраняется у клиента; сохраняется у клиента; на гарантийное обслуживание
Условия гарантии и гарантийный талон Внимательно ознакомьтесь с инструкцией и гарантийным талоном. Проследите, чтобы гарантийный талон был правильно заполнен и имел печать или штамп продавца. При отсутствии штампа и даты продажи (либо кассового чека с датой продажи) гарантийный срок изделия исчисляе...