Smeg SF4390VX1 - Инструкция по эксплуатации

Smeg SF4390VX1

Пароварка Smeg SF4390VX1 - инструкция пользователя по применению, эксплуатации и установке на русском языке. Мы надеемся, она поможет вам решить возникшие у вас вопросы при эксплуатации техники.

Если остались дополнительные вопросы — свяжитесь с нами через контактную форму.

1 Страница 1
2 Страница 2
3 Страница 3
4 Страница 4
5 Страница 5
6 Страница 6
7 Страница 7
8 Страница 8
9 Страница 9
10 Страница 10
11 Страница 11
12 Страница 12
13 Страница 13
14 Страница 14
15 Страница 15
16 Страница 16
17 Страница 17
18 Страница 18
19 Страница 19
20 Страница 20
21 Страница 21
22 Страница 22
23 Страница 23
24 Страница 24
25 Страница 25
26 Страница 26
27 Страница 27
28 Страница 28
29 Страница 29
30 Страница 30
31 Страница 31
32 Страница 32
33 Страница 33
34 Страница 34
35 Страница 35
36 Страница 36
37 Страница 37
38 Страница 38
39 Страница 39
40 Страница 40
41 Страница 41
42 Страница 42
43 Страница 43
44 Страница 44
45 Страница 45
46 Страница 46
47 Страница 47
48 Страница 48
49 Страница 49
50 Страница 50
51 Страница 51
52 Страница 52
Страница: / 52
Загрузка инструкции

Содержание

107

RU

1 Меры предосторожности

108

1.1 Общие меры безопасности

108

1.2 Назначение прибора

112

1.3 Ответственность производителя

112

1.4 Руководство по эксплуатации

112

1.5 Идентификационная табличка

112

1.6 Утилизация

112

1.7 Как читать руководство по эксплуатации

113

2 Описание

114

2.1 Общее описание

114

2.2 Панель управления

115

2.3 Другие части

116

2.4 Преимущества приготовления на пару

116

2.5 Принадлежности, поставляемые в комплекте

117

2.6 Другие емкости для приготовления

118

3 Использование

119

3.1 Меры предосторожности

119

3.2 Первое использование

120

3.3 Использование принадлежностей

120

3.4 Использование духовки

121

3.5 Рекомендации по приготовлению

132

3.6 Специальные функции

134

3.7 Вспомогательное меню

142

4 Чистка и уход

144

4.1 Меры предосторожности

144

4.2 Чистка поверхностей

144

4.3 Чистка дверцы

145

4.4 Чистка внутренней части духовки

147

4.5 Внеочередное техобслуживание

153

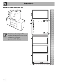
5 Установка

154

5.1 Подключение к электропитанию

154

5.2 Замена кабеля

154

5.3 Встраивание

155

Рекомендуется внимательно прочитать данное руководство, в котором содержатся все
указания для сохранения неизменными внешнего вида и функций купленного прибора.
Для получения дополнительной информации о продукте см.: www.smeg.com

ПЕРЕВОД ОРИГИНАЛЬНЫХ ИНСТРУКЦИЙ

"Загрузка инструкции" означает, что нужно подождать пока файл загрузится и можно будет его читать онлайн. Некоторые инструкции очень большие и время их появления зависит от вашей скорости интернета.

Характеристики

Другие модели - Пароварки Smeg