Smeg SF4102MN - Инструкция по эксплуатации

Smeg SF4102MN

Микроволновая печь Smeg SF4102MN - инструкция пользователя по применению, эксплуатации и установке на русском языке. Мы надеемся, она поможет вам решить возникшие у вас вопросы при эксплуатации техники.

Если остались дополнительные вопросы — свяжитесь с нами через контактную форму.

1 Страница 1
2 Страница 2
3 Страница 3
4 Страница 4
5 Страница 5
6 Страница 6
7 Страница 7
8 Страница 8
9 Страница 9
10 Страница 10
11 Страница 11
12 Страница 12
13 Страница 13
14 Страница 14
15 Страница 15
16 Страница 16
17 Страница 17
18 Страница 18
19 Страница 19
20 Страница 20
21 Страница 21
22 Страница 22
23 Страница 23
24 Страница 24
25 Страница 25
26 Страница 26
27 Страница 27
28 Страница 28
29 Страница 29
30 Страница 30
31 Страница 31
32 Страница 32
33 Страница 33
34 Страница 34
35 Страница 35
36 Страница 36
37 Страница 37
38 Страница 38
39 Страница 39
40 Страница 40
Страница: / 40
Загрузка инструкции

Содержание

283

RU

1 Меры предосторожности

284

1.1 Общие меры безопасности

284

1.2 Меры предосторожности при использовании микроволновых печей

285

1.3 Ответственность производителя

287

1.4 Функция прибора

287

1.5 Идентификационная табличка

287

1.6 Утилизация

287

1.7 Руководство по эксплуатации

288

1.8 Как читать руководство по эксплуатации

288

2 Описание

289

2.1 Общее описание

289

2.2 Микроволновая печь

289

2.3 Панель управления

290

2.4 Другие части

290

2.5 Принадлежности, поставляемые в комплекте

291

3 Использование

292

3.1 Меры предосторожности

292

3.2 Материалы, пригодные для микроволновых печей

292

3.3 Первое использование

294

3.4 Использование принадлежностей

294

3.5 Использование духовки

296

3.6 Специальные функции

306

3.7 Вспомогательное меню

311

4 Чистка и техническое обслуживание

314

4.1 Меры предосторожности

314

4.2 Чистка поверхностей

314

4.3 Чистка стекол дверцы

315

4.4 Внутренняя очистка рабочей камеры

315

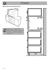
5 Установка

318

5.1 Подключение к электропитанию

318

5.2 Встраивание

319

Рекомендуется внимательно прочесть данное руководство, в котором содержатся все
указания для сохранения неизменными внешнего вида и функций купленного прибора.
Для получения дополнительной информации о продукте см.: www.smeg.com

ПЕРЕВОД ОРИГИНАЛЬНЫХ ИНСТРУКЦИЙ

"Загрузка инструкции" означает, что нужно подождать пока файл загрузится и можно будет его читать онлайн. Некоторые инструкции очень большие и время их появления зависит от вашей скорости интернета.

Характеристики

Другие модели - Микроволновые печи Smeg

Все микроволновые печи Smeg