Smeg CVI638NS - Инструкция по эксплуатации

Smeg CVI638NS

Винный шкаф Smeg CVI638NS - инструкция пользователя по применению, эксплуатации и установке на русском языке. Мы надеемся, она поможет вам решить возникшие у вас вопросы при эксплуатации техники.

Если остались дополнительные вопросы — свяжитесь с нами через контактную форму.

1 Страница 1
2 Страница 2
3 Страница 3
4 Страница 4
5 Страница 5
6 Страница 6
7 Страница 7
8 Страница 8
9 Страница 9
10 Страница 10
11 Страница 11
12 Страница 12
13 Страница 13
14 Страница 14
15 Страница 15
16 Страница 16
17 Страница 17
18 Страница 18
19 Страница 19
20 Страница 20
21 Страница 21
22 Страница 22
23 Страница 23
24 Страница 24
Страница: / 24
Загрузка инструкции

Contents

27

EN

1 Instructions

28

1.1 General safety instructions

28

1.2 Manufacturer liability

29

1.3 Appliance purpose

29

1.4 Disposal

30

1.5 Identification plate

31

1.6 This user manual

31

1.7 How to read the user manual

31

2 Description

32

2.1 General Description

32

2.2 Description of parts

33

2.3 Control panel

34

3 Use

35

3.1 Instructions

35

3.2 Preliminary operations

35

3.3 First use

35

3.4 Using the control panel

36

3.5 Using the wine cellar compartments

38

3.6 Food storage advice

41

4 Cleaning and maintenance

44

4.1 Instructions

44

4.2 Cleaning the appliance

44

4.3 What to do if...

46

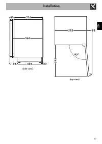
5 Installation

47

5.1 Electrical connection

47

5.2 Positioning

47

We advise you to read this manual carefully, which contains all the instructions for
maintaining the appliance's aesthetic and functional qualities.
For further information on the product: www.smeg.com

"Загрузка инструкции" означает, что нужно подождать пока файл загрузится и можно будет его читать онлайн. Некоторые инструкции очень большие и время их появления зависит от вашей скорости интернета.

Характеристики

Другие модели - Винные шкафы Smeg

Все винные шкафы Smeg