Системы видеонаблюдения Samsung SHR-2040P - инструкция пользователя по применению, эксплуатации и установке на русском языке. Мы надеемся, она поможет вам решить возникшие у вас вопросы при эксплуатации техники.
Если остались вопросы, задайте их в комментариях после инструкции.
"Загружаем инструкцию", означает, что нужно подождать пока файл загрузится и можно будет его читать онлайн. Некоторые инструкции очень большие и время их появления зависит от вашей скорости интернета.

Ê
ÊÛÛÍÍÓ
Ó‚‚Ó
Ó‰
‰ÒÒÚÚ‚‚Ó
Ó Ô
ÔÓ
ÓÎ
θ¸ÁÁÓ
Ó‚‚‡
‡ÚÚÂ
ÂÎ
Îflfl S
SH
HR
R--2
20
04
40
0//2
20
04
41
1//2
20
04
42
2
33--77
33--88
5
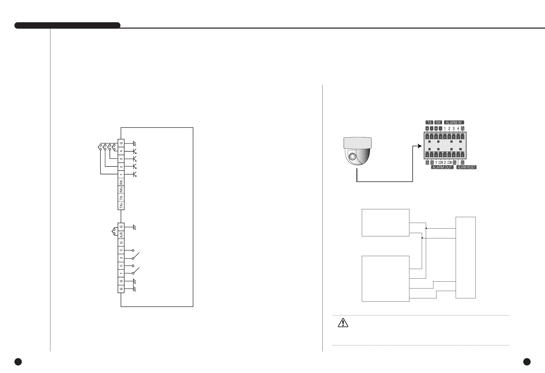
èÓ‰Íβ˜ÂÌË ÛÒÚÓÈÒÚ‚‡ Ò ËÌÚÂÙÂÈÒÓÏ RS-485
●
èÓ‰Íβ˜ÂÌË ‚ıÓ‰Ó‚/‚˚ıÓ‰Ó‚ Ú‚ÓÊÌÓÈ Ò˄̇ÎËÁ‡ˆËË
●
ìÒÚÓÈÒÚ‚Ó Ò ËÌÚÂÙÂÈÒÓÏ RS-485 ÔÓ‰Íβ˜‡ÂÚÒfl ˜ÂÂÁ ÔÓÚ, ‡ÒÔÓÎÓÊÂÌÌ˚È Ì‡
Á‡‰ÌÂÈ Ô‡ÌÂÎË SHR-2040/2041/2042.
●
Ç˚ ÏÓÊÂÚ ÔÓ‰Íβ˜ËÚ¸ Ë ÓÒÛ˘ÂÒÚ‚ÎflÚ¸ ÛÔ‡‚ÎÂÌË ͇ÏÂÓÈ PTZ (èÄçéêÄåàêéÇÄçàÖ - çÄäãéç -
íêÄçëîéäÄñàü), ÍÓÚÓ‡fl ÔÓ‰‰ÂÊË‚‡ÂÚ Ò‚flÁ¸ ˜ÂÂÁ ËÌÚÂÙÂÈÒ RS-485.
●
Ç˚ ÏÓÊÂÚ ËÒÔÓθÁÓ‚‡Ú¸ ‰Îfl ÒÓ‰ËÌÂÌËfl ÔÓÎÛ‰ÛÔÎÂÍÒÌ˚È ËÎË ÔÓÎÌÓ‰ÛÔÎÂÍÒÌ˚È ÂÊËÏ.
●
èÓ‰‰ÂÊË‚‡˛ÚÒfl ÒÎÂ‰Û˛˘Ë ÒÍÓÓÒÚË Ô‰‡˜Ë ‰‡ÌÌ˚ı: 600/1200/2400/4800/9600/19200/38400 ·Ó‰.
èÓÎÛ‰ÛÔÎÂÍÒ
чÌÌ˚ (–)
чÌÌ˚ (+)
èÓÎÌ˚È ‰ÛÔÎÂÍÒ
Rx(+)
Rx(–)
Tx(–)
Tx(+)
Tx(–)
Tx(+)
Rx(–)
Rx(+)
ìÒÚÓÈÒÚ‚Ó PTZ;
ᇉÌflfl Ô‡ÌÂθ
ÇÌËχÌËÂ
ÇÌËχÌËÂ
èÂʉ ‚Ò„Ó, Ôӂ¸ÚÂ, ˜ÚÓ ÛÒÚÓÈÒÚ‚Ó Ò ËÌÚÂÙÂÈÒÓÏ RS-485 ÒÓ‚ÏÂÒÚËÏÓ Ò SHR-2040/2041/2042. èÓÒΉËÚÂ,
˜ÚÓ·˚ ÔÓ‰Íβ˜ÂÌË ÛÒÚÓÈÒÚ‚‡ Ò ËÌÚÂÙÂÈÒÓÏ RS-485 ·˚ÎÓ ‚˚ÔÓÎÌÂÌÓ ‚ Ô‡‚ËθÌÓÈ ÔÓÎflÌÓÒÚË (+, -).
ÇıÓ‰ Ò˄̇· Ú‚ӄË
(ÔÓÚ·ÎflÂÏ˚È ÚÓÍ 5 ÏÄ)
Ç˚ıÓ‰ Ò˄̇· Ú‚ӄË
(χÍÒ.30 Ç ÔÓÒÚ. ÚÓ͇ 2 Ä,
125 Ç ÔÂÂÏ. ÚÓ͇ 0,5 Ä)