Siemens LC67FQP60 - Инструкция по эксплуатации

Siemens LC67FQP60

Вытяжка Siemens LC67FQP60 - инструкция пользователя по применению, эксплуатации и установке на русском языке. Мы надеемся, она поможет вам решить возникшие у вас вопросы при эксплуатации техники.

Если остались дополнительные вопросы — свяжитесь с нами через контактную форму.

1 Страница 1
2 Страница 2
3 Страница 3
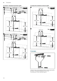
4 Страница 4
5 Страница 5
6 Страница 6
7 Страница 7
8 Страница 8
9 Страница 9
10 Страница 10
11 Страница 11
12 Страница 12
13 Страница 13
14 Страница 14
15 Страница 15
16 Страница 16
17 Страница 17
18 Страница 18
19 Страница 19
20 Страница 20
Страница: / 20
Загрузка инструкции

Register

your

product

online

siemens-home.bsh-group.com/welcome

ru

ǫȎȅȉǽȉǿȌȍǽȉȊȉȘȅȌȊȆȎǻȍǻȑȃȃȃȇȉȈȍǻȁȎ

Вытяжка

"Загрузка инструкции" означает, что нужно подождать пока файл загрузится и можно будет его читать онлайн. Некоторые инструкции очень большие и время их появления зависит от вашей скорости интернета.

Характеристики

Другие модели - Вытяжки Siemens

Все вытяжки Siemens