Шуруповерты Bosch EasyImpact 550+DA 0.603.130.021 - инструкция пользователя по применению, эксплуатации и установке на русском языке. Мы надеемся, она поможет вам решить возникшие у вас вопросы при эксплуатации техники.
Если остались вопросы, задайте их в комментариях после инструкции.
"Загружаем инструкцию", означает, что нужно подождать пока файл загрузится и можно будет его читать онлайн. Некоторые инструкции очень большие и время их появления зависит от вашей скорости интернета.

42
| Русский
1 609 92A 29Z | (8.8.16)
Bosch Power Tools
Нажмите кнопку разблокировки
8
, чтобы освободить Drill
Assistant
10
из его исходного положения.
Наденьте Drill Assistant
10
через сверлильный патрон на
шейку шпинделя электроинструмента.
Для фиксирования туго затяните барашковый винт
18
по
часовой стрелке.
Настройка глубины сверления (см. рис. E – F)
Монтируйте сверло (см. раздел «Замена рабочего инстру-
мента»).
При помощи установочного кольца
17
можно установить
желаемую глубину сверления
X
.
Для разблокировки поверните установочное кольцо
17
влево
. Приложите контейнер для пыли
11
или кре-
пление
26
заподлицо к стене или заготовке. Подведите
кончик сверла к стене или заготовке.
Отведите установочное кольцо
17
назад настолько, чтобы
расстояние соответствовало желаемой глубине сверле-
ния
X
, или приложите дюбель к направляющей и отведите
установочное кольцо
17
назад до дюбеля. Для фиксиро-
вания поверните установочное кольцо
17
вправо
. Убе-
рите дюбель с направляющей. Полученная глубина свер-
ления соответствует установленной длине
X
на
направляющей.
Указание:
При использовании дюбелей важна точность
глубины сверления. Если просверленное отверстие слиш-
ком глубокое, дюбель проскользнет слишком далеко в
стену или заготовку. Если отверстие слишком короткое,
дюбель будет выступать.
Опорожнение контейнера для пыли (см. рис. G)
Контейнера для пыли
11
хватает прибл. для 25 отверстий
в кирпичной кладке при глубине сверления 30 мм и диа-
метре сверла 6 мм.
– Для снятия контейнера для пыли
11
нажмите на распо-
ложенные по бокам кнопки разблокировки
12
и сними-
те контейнер для пыли, потянув его вниз.
– Опорожните контейнер для пыли
11
и вставьте его на
место (он должен отчетливо войти в зацепление).
Демонтаж Drill Assistant
– Удерживайте зажим
16
пылеулавливающего устройст-
ва
13
нажатым и снимите пылеулавливающее устрой-
ство
13
, потянув его вперед.
– Поворачивайте барашковый винт
18
против часовой
стрелки, пока дополнительная рукоятка
9
не ослабит-
ся, и снимите дополнительную рукоятку
9
с электроин-
струмента.
– Для разблокировки поверните установочное кольцо
17
влево .
– Крепко удерживайте дополнительную рукоятку
9
и по-
тяните направляющую в направлении дополнительной
рукоятки, пока она не войдет отчетливо в зацепление.
Отсос пыли/контейнер для пыли
Пыль некоторых материалов, как напр., красок с
содержанием свинца, некоторых сортов древесины,
минералов и металлов, может быть вредной для здоро-
вья. Прикосновение к пыли и попадание пыли в дыха-
тельные пути может вызвать аллергические реакции
и/или заболевания дыхательных путей оператора или
находящегося вблизи персонала.
Определенные виды пыли, напр., дуба и бука, считают-
ся канцерогенными, особенно совместно с присадка-
ми для обработки древесины (хромат, средство для за-
щиты древесины). Материал с содержанием асбеста
разрешается обрабатывать только специалистам.
– Используйте пригодный для материала пылесос.
– Хорошо проветривайте рабочее место.
– Рекомендуется пользоваться респираторной ма-
ской с фильтром класса Р2.
Соблюдайте действующие в Вашей стране предписа-
ния для обрабатываемых материалов.
Избегайте скопления пыли на рабочем месте.
Пыль
может легко воспламеняться.
Используйте контейнер для пыли только при работе
с бетоном и камнем.
Древесная или пластмассовая
стружка могут легко привести к забиванию контейнера.
Внимание: опасность возгорания! Не работайте ни с
какими металлическими материалами при монтиро-
ванном контейнере для пыли.
Горячая металличе-
ская стружка может воспламенить части контейнера
для пыли.
Для оптимального использования контейнера для пыли
следуйте поданным ниже указаниям:
– Следите за тем, чтобы контейнер для пыли прилегал к
заготовке или стене заподлицо. При этом одновремен-
но облегчается сверление под прямым углом.
– После достижения желаемой глубины отверстия снача-
ла выньте сверло из отверстия и после этого выключите
ударную дрель.
– Особенно при работе со сверлами большого диаметра
возможен быстрый износ пылезадерживающего коль-
ца
15
. При повреждении замените это кольцо.
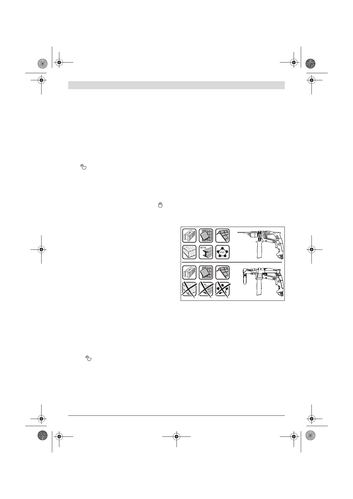
Замена рабочего инструмента
Быстрозажимной сверлильный патрон
(EasyImpact 500/550/550 + Drill Assistant/5500)
(см. рис. Н)
Крепко охватите заднюю гильзу
2
быстрозажимного па-
трона
3
рукой и поворачивайте переднюю гильзу
1
в на-
правлении
настолько, чтобы можно было вставить ра-
бочий инструмент. Вставьте инструмент.
OBJ_BUCH-2913-001.book Page 42 Monday, August 8, 2016 9:40 AM
Содержание
- 37 Указания по безопасности
- 38 Указания по технике безопасности для дрелей; Описание продукта и услуг; Применение по назначению
- 39 Изображенные составные части
- 40 Данные по шуму и вибрации
- 41 Сборка
- 42 Отсос пыли/контейнер для пыли; Замена рабочего инструмента
- 43 Смена сверлильного патрона; Работа с инструментом; Включение электроинструмента
- 44 Техобслуживание и сервис; Техобслуживание и очистка; Утилизация













