Roda KRAFTER R TP 50 УТ000007305 - Инструкция по эксплуатации

Roda KRAFTER R TP 50 УТ000007305

Котел Roda KRAFTER R TP 50 УТ000007305 - инструкция пользователя по применению, эксплуатации и установке на русском языке. Мы надеемся, она поможет вам решить возникшие у вас вопросы при эксплуатации техники.

Если остались дополнительные вопросы — свяжитесь с нами через контактную форму.

1 Страница 1
2 Страница 2
3 Страница 3
4 Страница 4
5 Страница 5
6 Страница 6
7 Страница 7
8 Страница 8
9 Страница 9
10 Страница 10
11 Страница 11
12 Страница 12
13 Страница 13
14 Страница 14
15 Страница 15
16 Страница 16
17 Страница 17
18 Страница 18
19 Страница 19
Страница: / 19

Содержание:

  • Страница 2 – Содержание
  • Страница 3 – ТЕХНИЧЕСКОЕ РЕГУЛИРОВАНИЕ
  • Страница 5 – RÖDA Krafter RTP
  • Страница 7 – ИНСТРУКЦИЯ ПО ОБСЛУЖИВАНИЮ
  • Страница 8 – ВКЛЮЧЕНИЕ КОТЛА И ЕГО РАБОТА; квалифицированным; Включение котла
  • Страница 9 – Эксплуатация газового отопительного прибора.
  • Страница 10 – Запах газа
  • Страница 11 – руководство
  • Страница 13 – Подключение к системе отопления
  • Страница 14 – Подключение к системе водоснабжения; Подключение комнатного термостата
  • Страница 16 – СХЕМА ЭЛЕКТРИЧЕСКИХ ПОДКЛЮЧЕНИЙ
  • Страница 18 – Давление газа на горелке
Загрузка инструкции

1






Krafter 16, 24, 32, 40, 50, 60 RTP













РУКОВОДСТВО ПО МОНТАЖУ

ОБСЛУЖИВАНИЮ И ЭКСПЛУАТАЦИИ


НАПОЛЬНЫЙ ГАЗОВЫЙ КОТЕЛ С

ЧУГУННЫМ ТЕПЛООБМЕННИКОМ

ЭНЕРГОНЕЗАВИСИМЫЙ,

ПЬЕЗОЭЛЕКТРИЧЕСКИЙ РОЗЖИГ (RTP)













"Загрузка инструкции" означает, что нужно подождать пока файл загрузится и можно будет его читать онлайн. Некоторые инструкции очень большие и время их появления зависит от вашей скорости интернета.

Краткое содержание

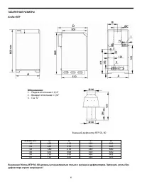
Страница 2 - Содержание

2 Содержание Техническое регулирование 3 Важные сведения 3 Общее описание 4 Важные функции безопасности при работе котла 4 Конструктивные особенности 4 Отвод продуктов сгорания 4 Описание электросистемы 4 Технические данные KRAFTER RTP 5 Габаритные размеры 6 Инструкция по обслуживанию 7 Панель управ...

Страница 3 - ТЕХНИЧЕСКОЕ РЕГУЛИРОВАНИЕ

3 ТЕХНИЧЕСКОЕ РЕГУЛИРОВАНИЕ Котлы серии Krafter сертифицированы по следующим европейским нормативам:  Газовый норматив 90/396/CEE  Норматив по производительности 92/42/CEE  Норматив по электромагнитной совместимости 89/336/CEE  Норматив по низким напряжениям 73/23/CEE Котлы сертифицированы на те...

Страница 5 - RÖDA Krafter RTP

5 ТЕХНИЧЕСКИЕ ХАРАКТЕРИСТИКИ RÖDA KRAFTER RTP RÖDA Krafter RTP Ед. 16 24 32 40 50 60 Технические параметры Номинальная потребляемая мощность кВт 16 24 32 40,5 48,9 57,4 Номинальная полезная мощность кВт 14 22 29,3 36,8 44,4 52 КПД % 90,5 91 90,9 90,8 90,7 90,6 Класс энергоэффективности согласно Eu.D...

Характеристики

Другие модели - Котлы Roda

Все котлы Roda